Pregled stanova:
Napomena:
- Rok useljenja: 31.05.2027.
- uz kupnju stana obvezna je i kupovina parkirnog mjesta
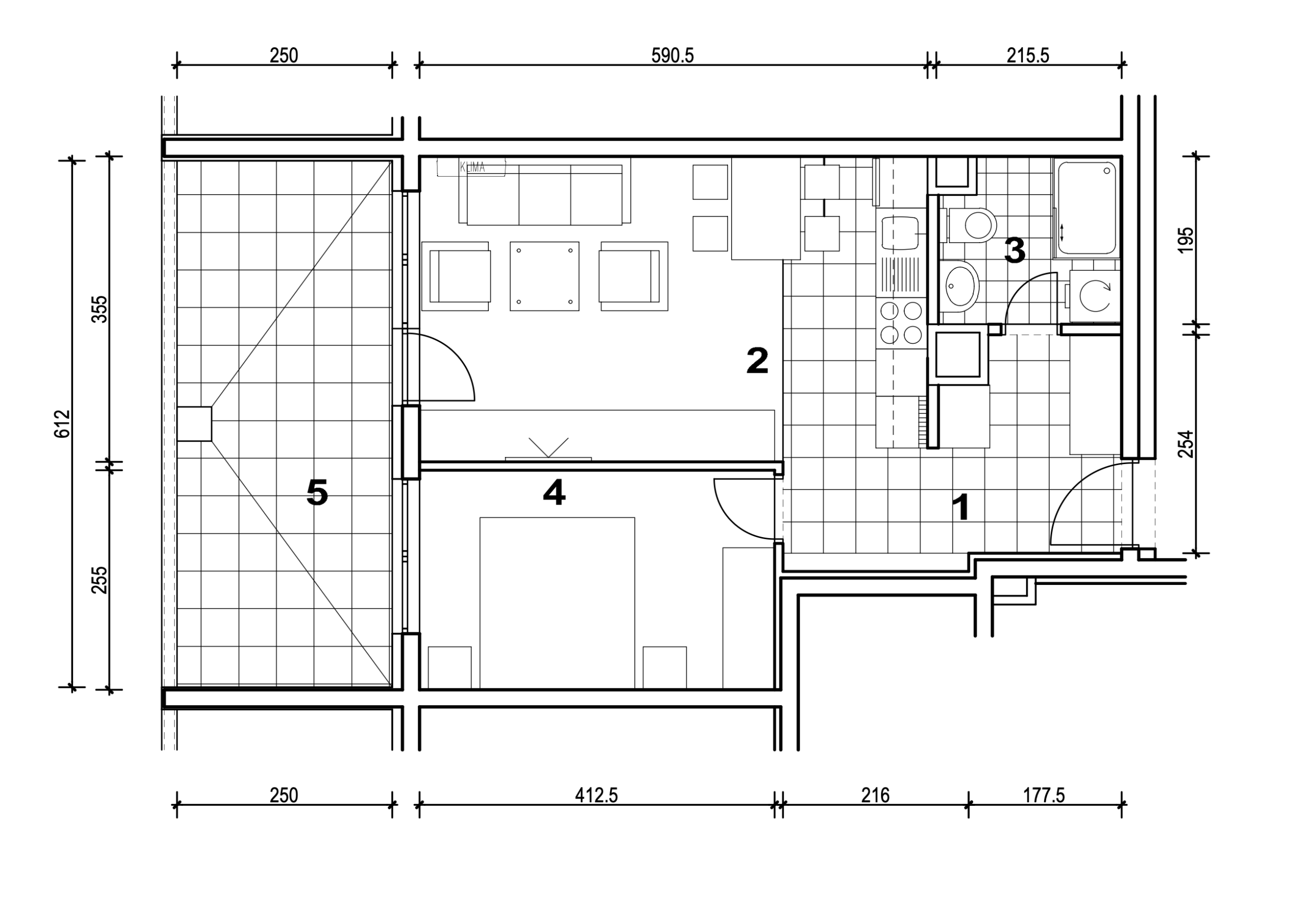
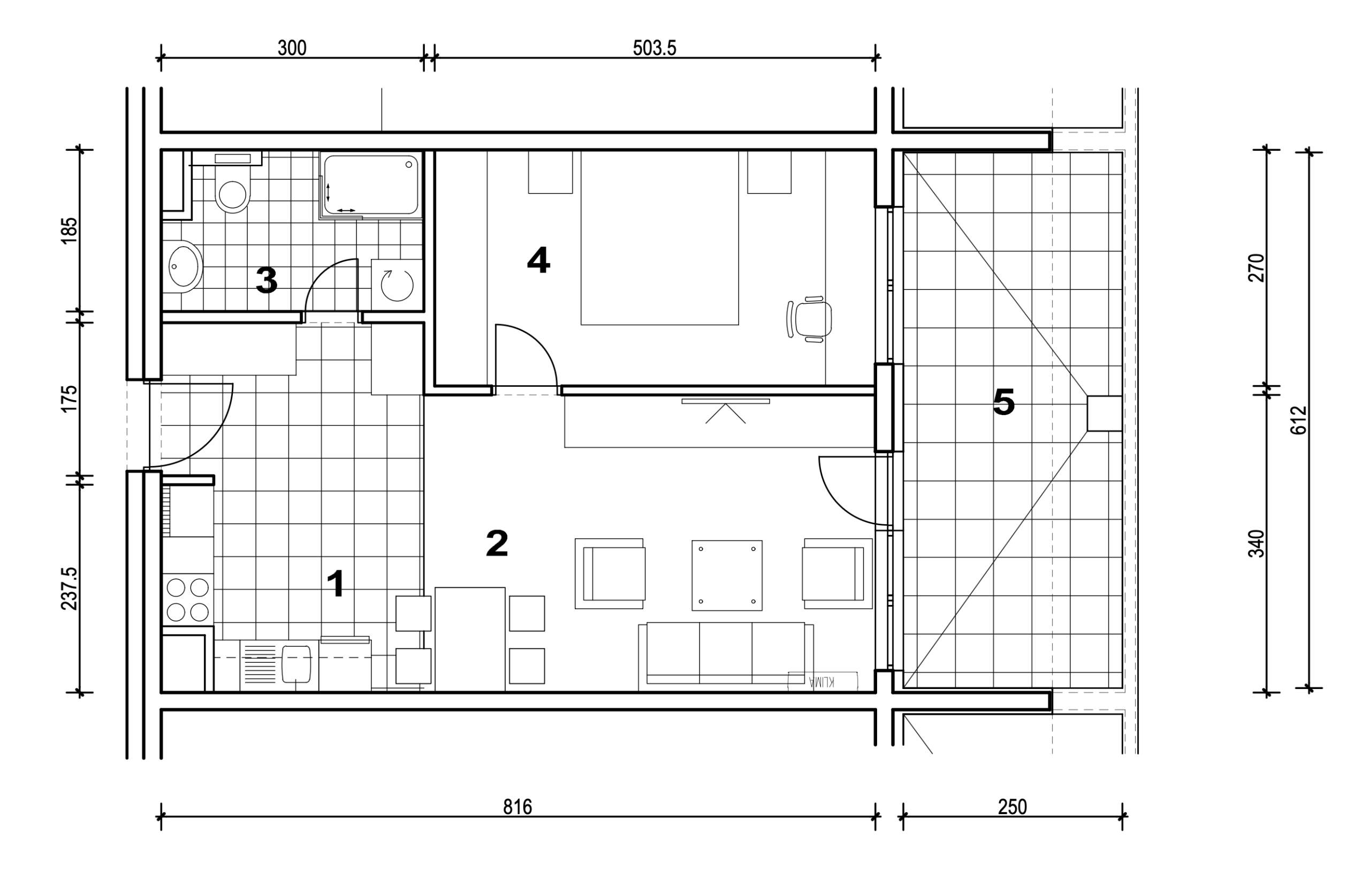
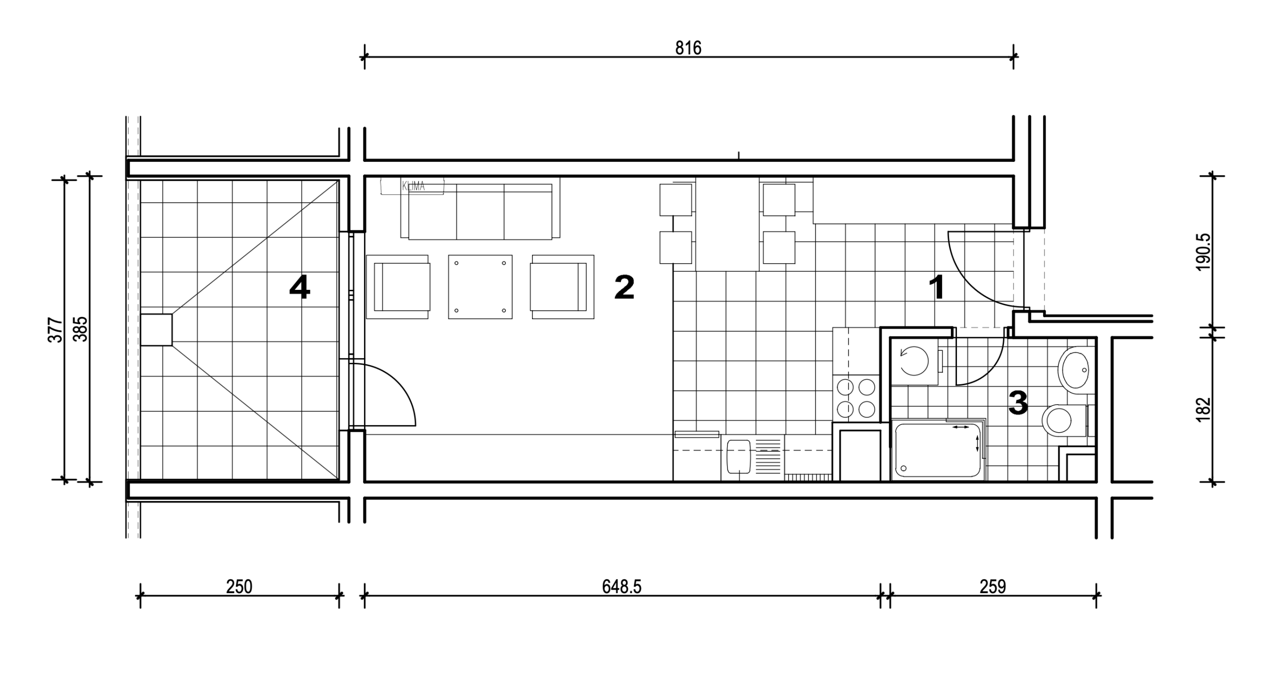
STAN M3B-70 | 2-soban | 54,38 m2 | PRODANO
Kvadratura:
| Ulaz | 7,47 m2 |
| Kuhinja + dnevni boravak | 20,96 m2 |
| Kupaonica | 3,95 m2 |
| Soba | 10,52 m2 |
| Loggia 0,75×15,30 | 11,48 m2 |
| 54,38 m2 |
Tlocrt:
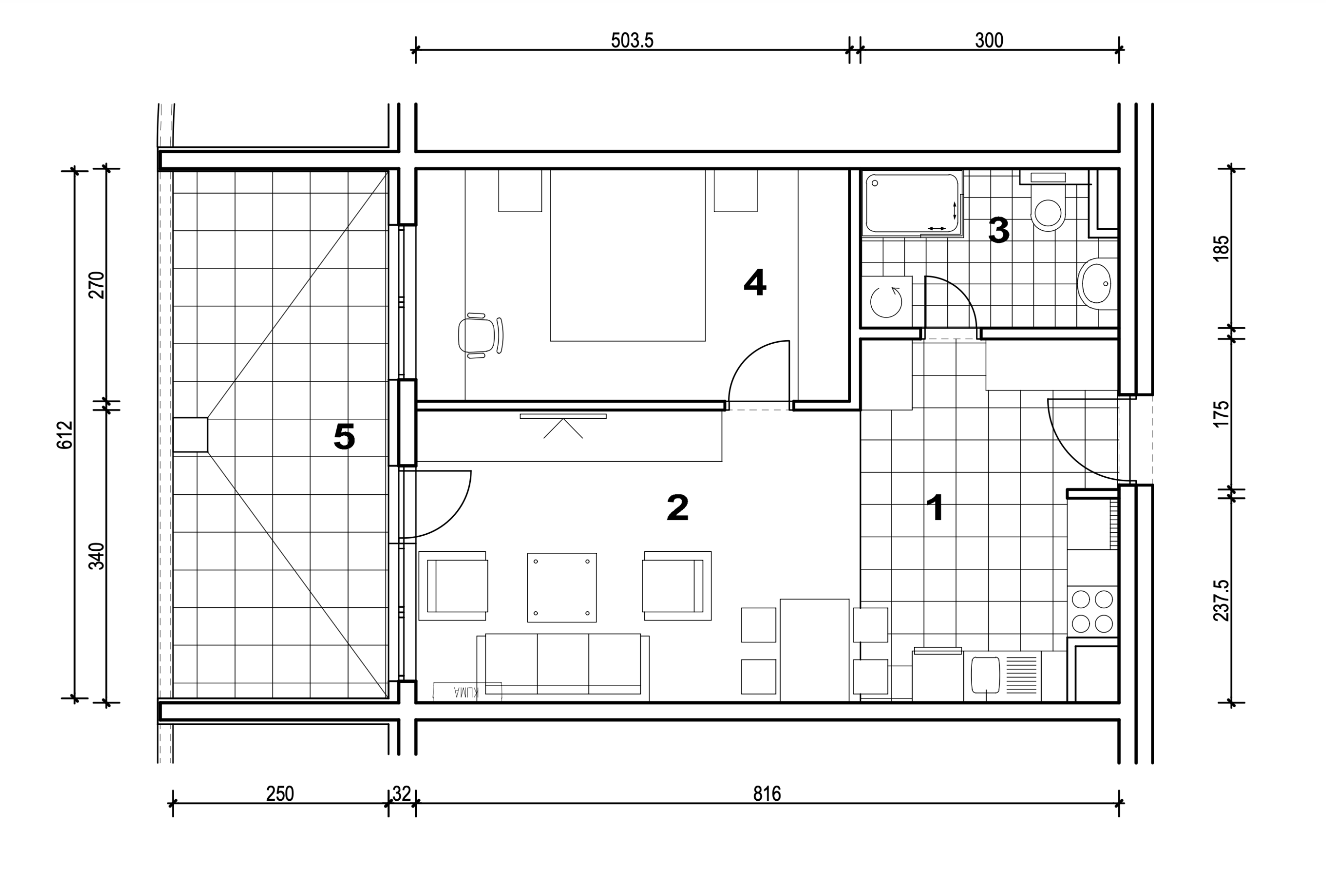
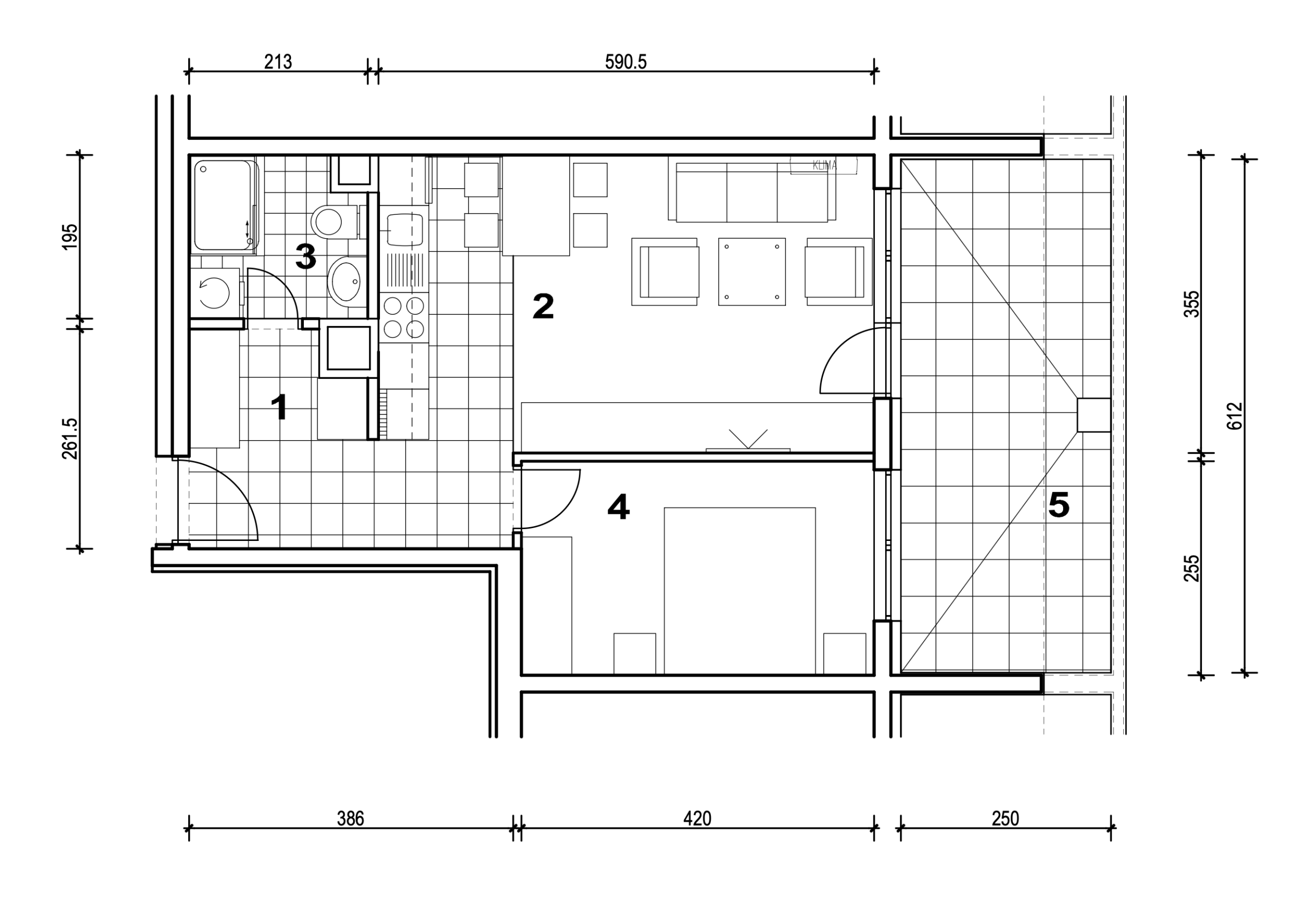
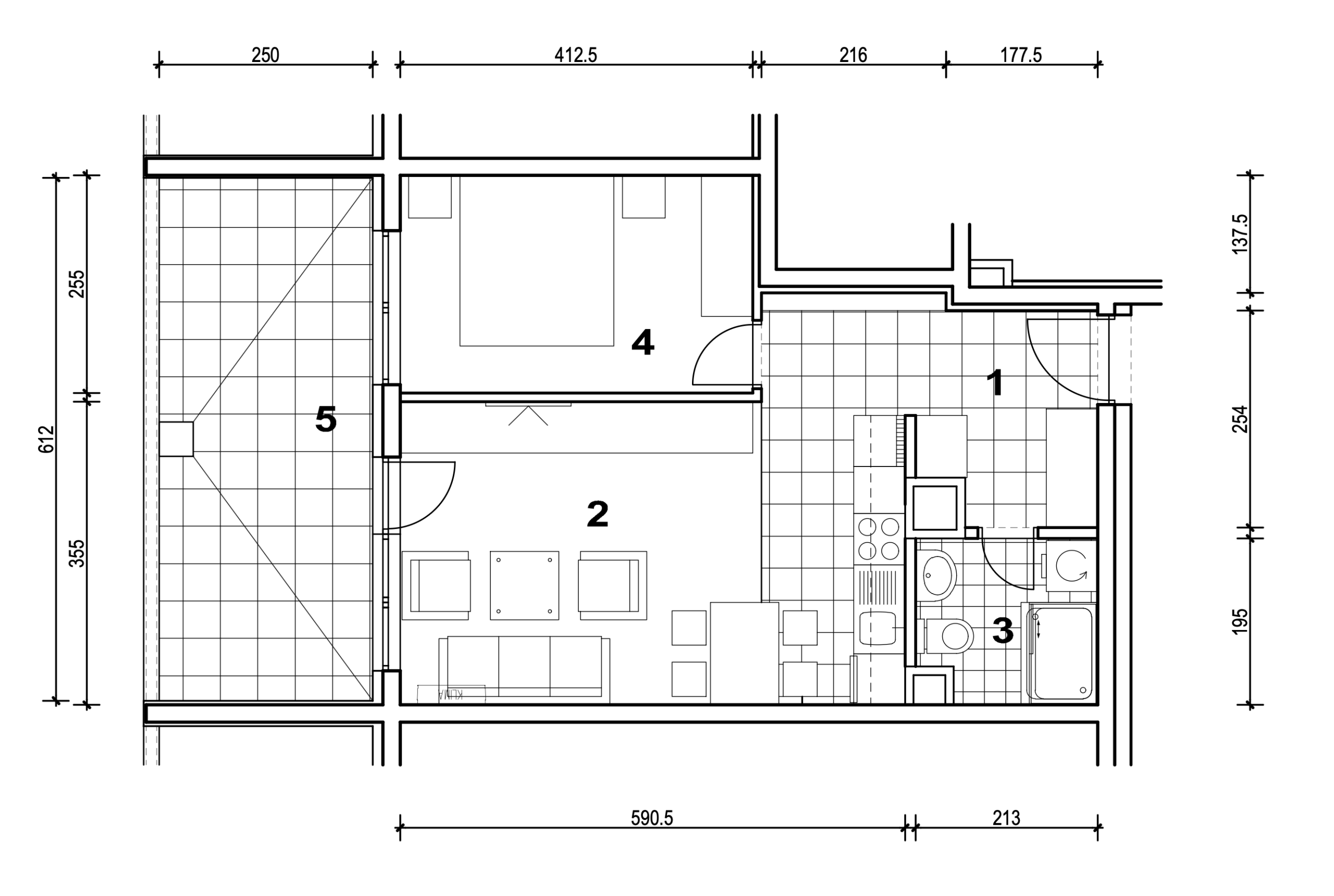
STAN M3B-71 | 2-soban | 60,04 m2 |
Kvadratura:
| Ulaz + kuhinja | 12,16 m2 |
| Dnevni boravak | 17,54 m2 |
| Kupaonica | 5,27 m2 |
| Soba | 13,59 m2 |
| Loggia 0,75×15,30 | 11,48 m2 |
| 60,04 m2 |
Tlocrt:
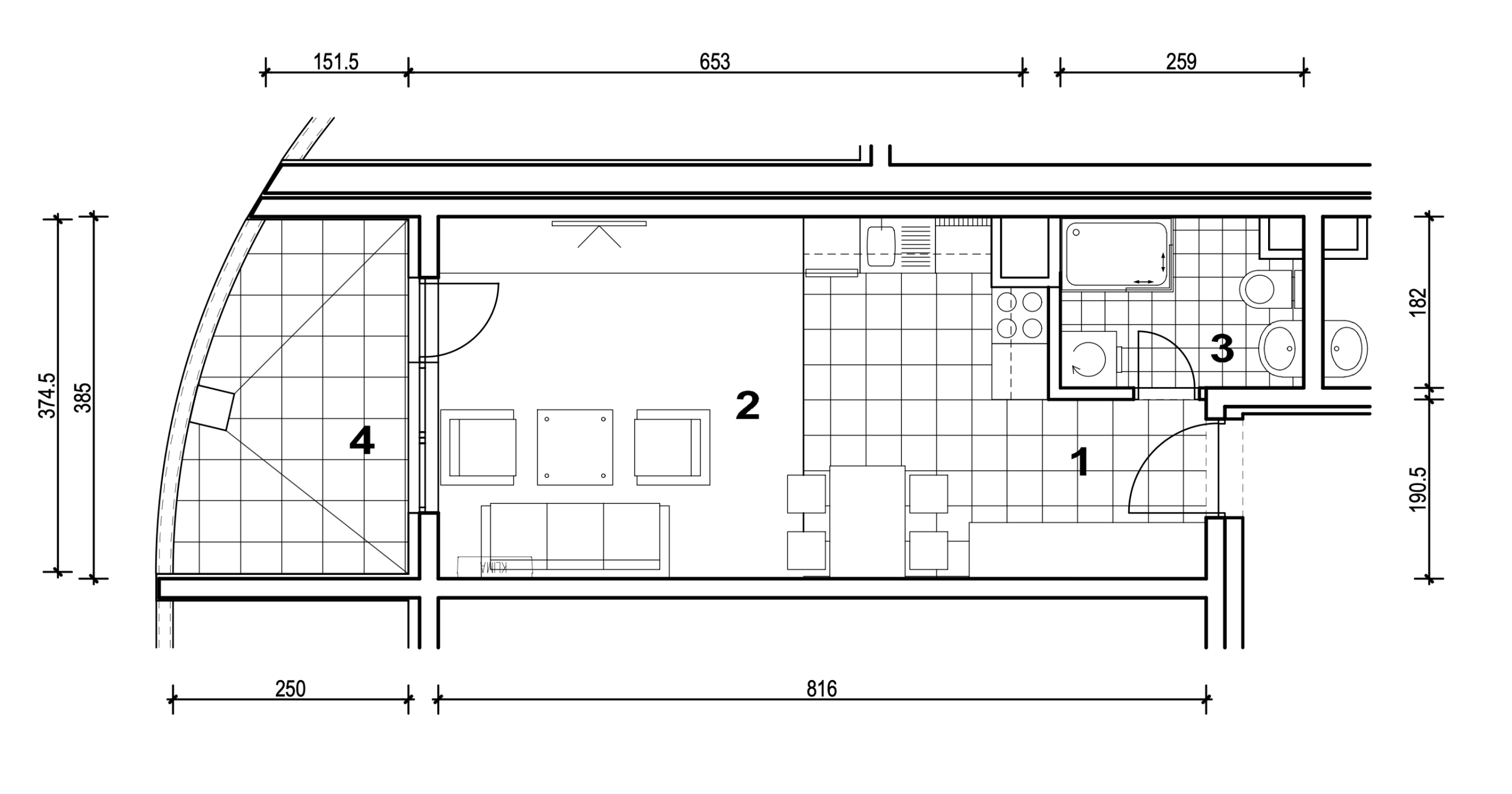
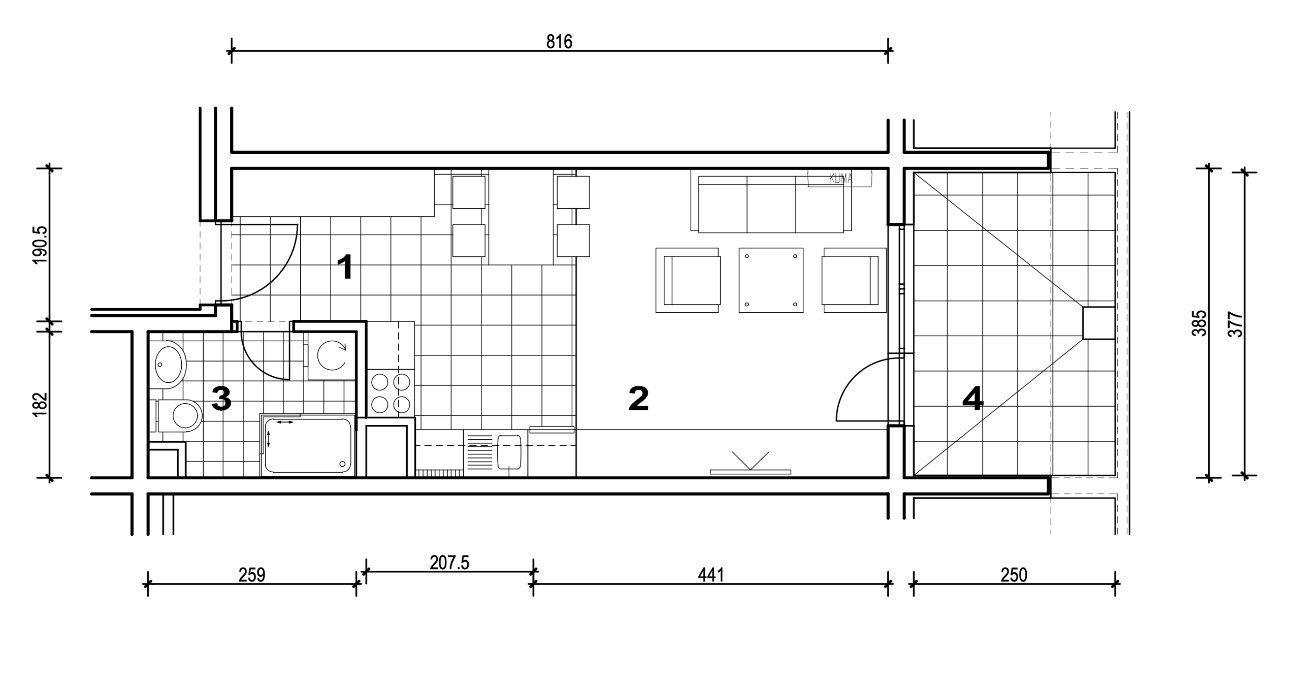
STAN M3B-72 | 1-soban | 37,74 m2 |
Kvadratura:
| Ulaz | 3,19 m2 |
| Kuhinja + dnevni boravak | 24,51 m2 |
| Kupaonica | 4,50 m2 |
| Loggia 0,75×5,72+0,5×2,50 | 5,54 m2 |
| 37,74 m2 |
Tlocrt:
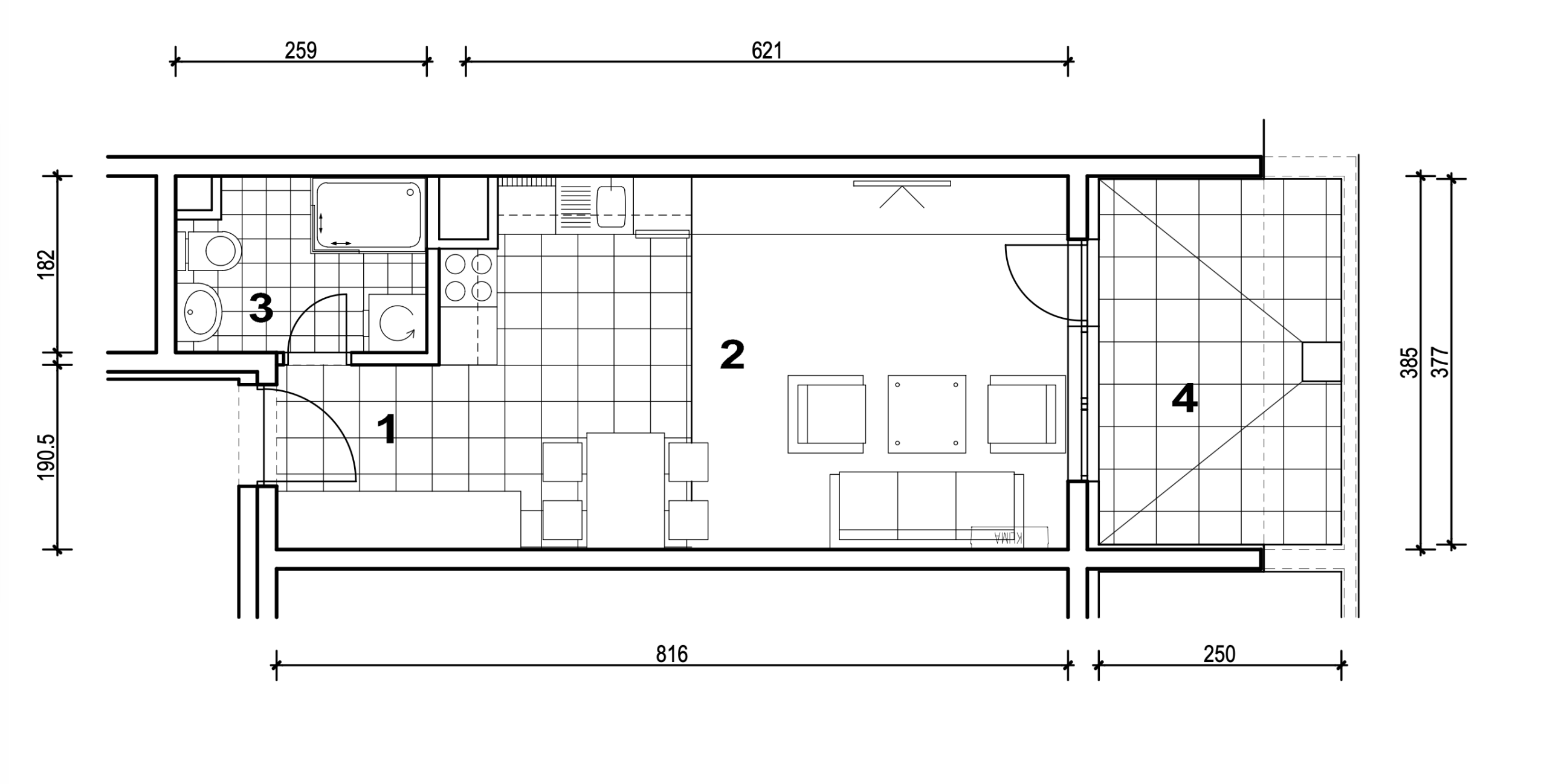
STAN M3B-73 | 1-soban | 39,27 m2 |
Kvadratura:
| Ulaz | 3,19 m2 |
| Kuhinja + dnevni boravak | 24,51 m2 |
| Kupaonica | 4,50 m2 |
| Loggia 0,75×9,42 | 7,07 m2 |
| 39,27 m2 |
Tlocrt:
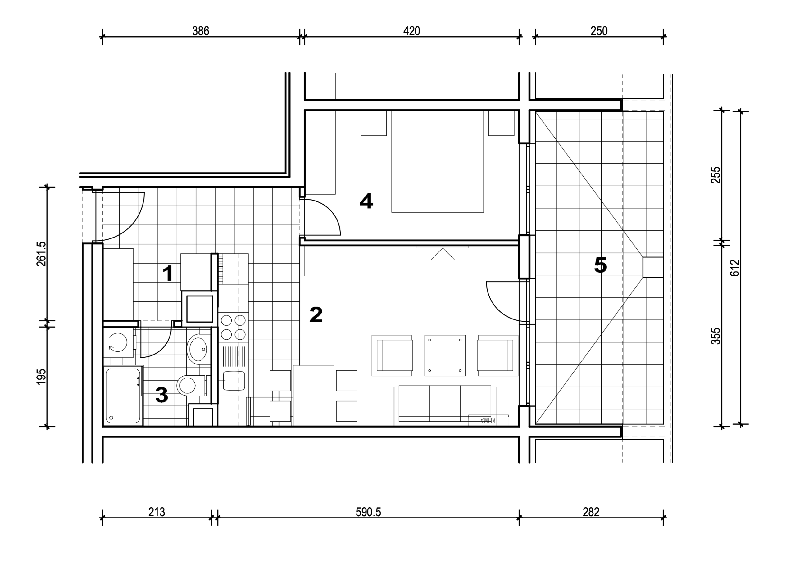
STAN M3B-74 | 2-soban | 60,04 m2 | PRODANO
Kvadratura:
| Ulaz + kuhinja | 12,16 m2 |
| Dnevni boravak | 17,54 m2 |
| Kupaonica | 5,27 m2 |
| Soba | 13,59 m2 |
| Loggia 0,75×15,30 | 11,48 m2 |
| 60,04 m2 |
Tlocrt:
STAN M3B-75 | 2-soban | 54,33 m2 | PRODANO
Kvadratura:
| Ulaz | 7,23 m2 |
| Kuhinja + dnevni boravak | 20,96 m2 |
| Kupaonica | 3,95 m2 |
| Soba | 10,71 m2 |
| Loggia 0,75×15,30 | 11,48 m2 |
| 54,33 m2 |
Tlocrt:
STAN M3B-76 | 2-soban | 54,29 m2 | PRODANO
Kvadratura:
| Ulaz | 7,22 m2 |
| Kuhinja + dnevni boravak | 20,96 m2 |
| Kupaonica | 3,92 m2 |
| Soba | 10,71 m2 |
| Loggia 0,75×15,30 | 11,48 m2 |
| 54,29 m2 |
Tlocrt:
STAN M3B-77 | 1-soban | 39,27 m2 |
Kvadratura:
| Ulaz | 3,19 m2 |
| Kuhinja + dnevni boravak | 24,51 m2 |
| Kupaonica | 4,50 m2 |
| Loggia 0,75×9,43 | 7,07 m2 |
| 39,27 m2 |
Tlocrt:
STAN M3B-78 | 1-soban | 39,27 m2 |
Kvadratura:
| Ulaz | 3,19 m2 |
| Kuhinja + dnevni boravak | 24,51 m2 |
| Kupaonica | 4,50 m2 |
| Loggia 0,75×9,43 | 7,07 m2 |
| 39,27 m2 |
Tlocrt:
STAN M3B-79 | 2-soban | 54,38 m2 | PRODANO
Kvadratura:
| Ulaz | 7,47 m2 |
| Kuhinja + dnevni boravak | 20,96 m2 |
| Kupaonica | 3,95 m2 |
| Soba | 10,52 m2 |
| Loggia 0,75×15,30 | 11,48 m2 |
| 54,38 m2 |
Tlocrt:









