Pregled stanova:
Napomena:
- Rok useljenja: 31.05.2027.
- uz kupnju stana obvezna je i kupovina parkirnog mjesta
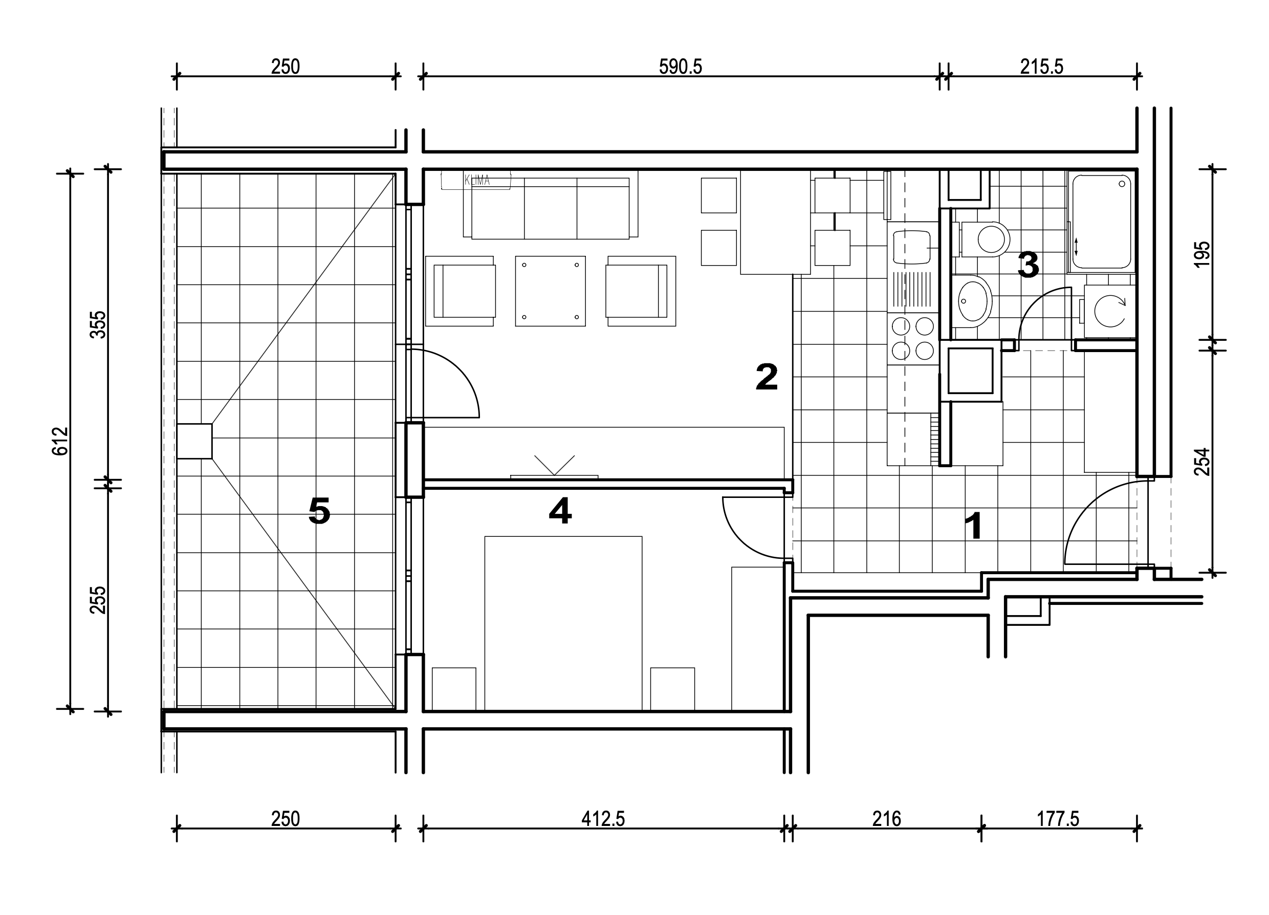
STAN M3B-60 | 2-soban | 54,38 m2 | PRODANO
Kvadratura:
| Ulaz | 7,47 m2 |
| Kuhinja + dnevni boravak | 20,96 m2 |
| Kupaonica | 3,95 m2 |
| Soba | 10,52 m2 |
| Loggia 0,75×15,30 | 11,48 m2 |
| 54,38 m2 |
Tlocrt:
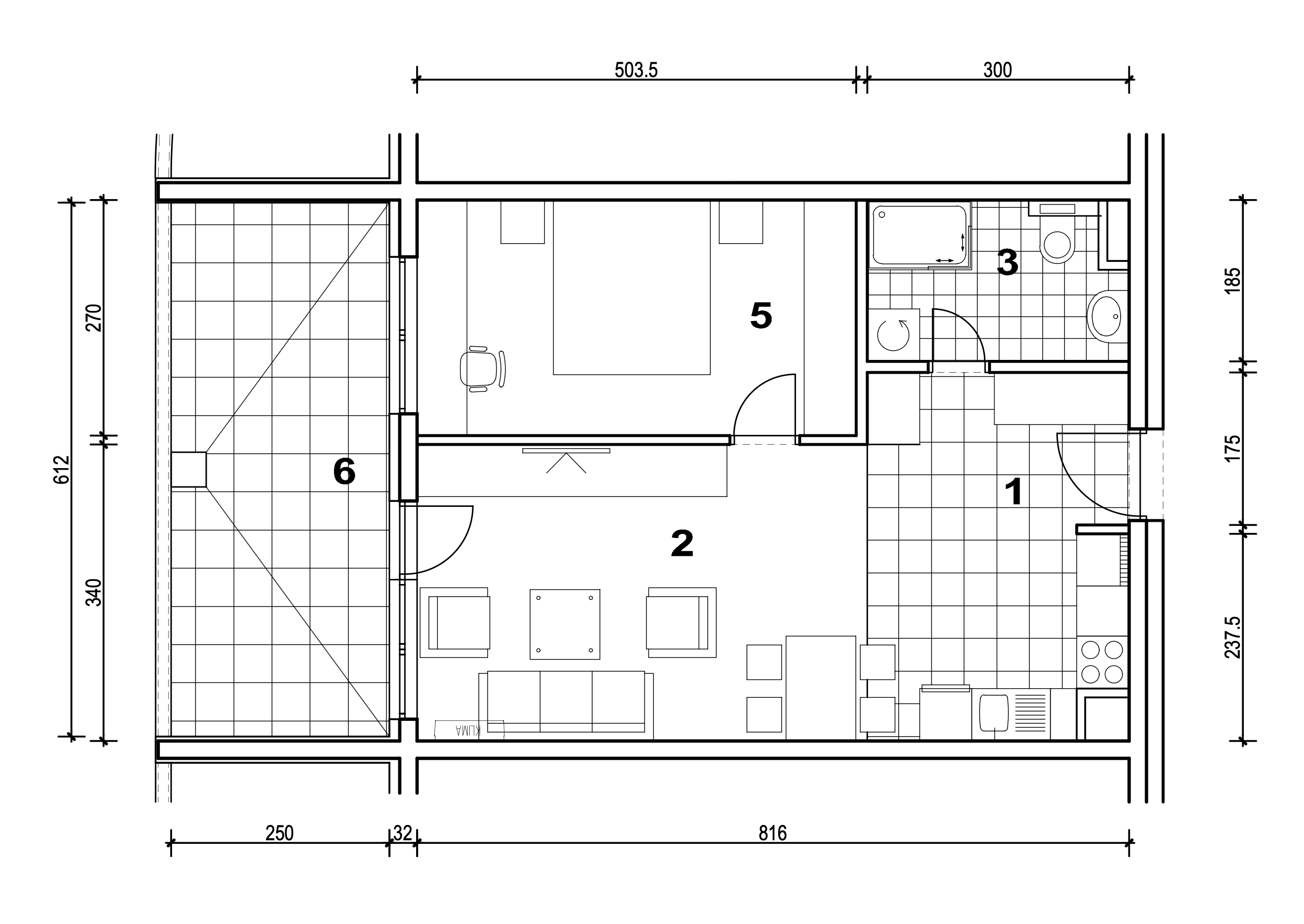
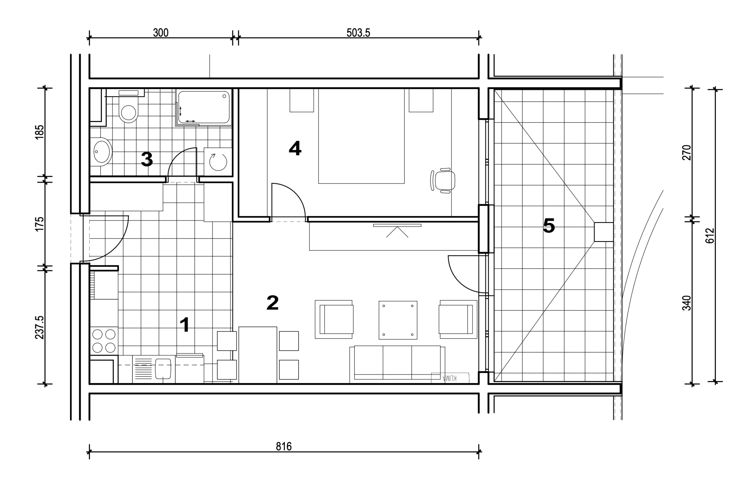
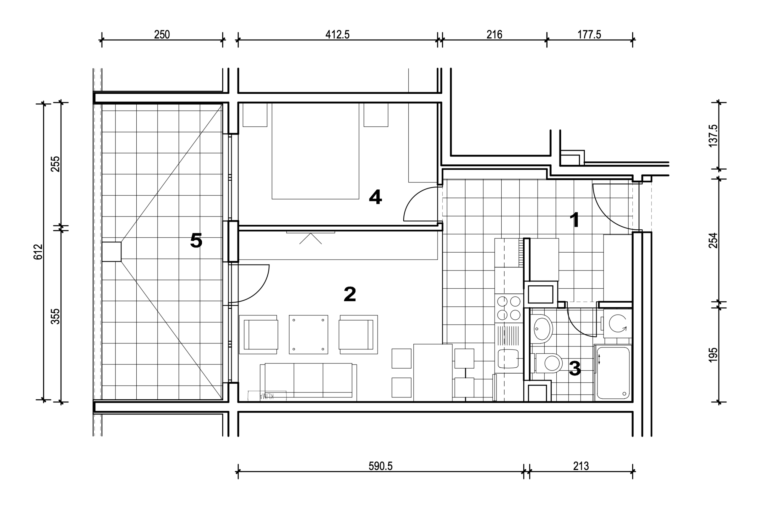
STAN M3B-61 | 2-soban | 60,14 m2 |
Kvadratura:
| Ulaz + kuhinja | 12,26 m2 |
| Dnevni boravak | 17,54 m2 |
| Kupaonica | 5,27 m2 |
| Soba | 13,59 m2 |
| Loggia 0,75×15,30 | 11,48 m2 |
| 60,14 m2 |
Tlocrt:
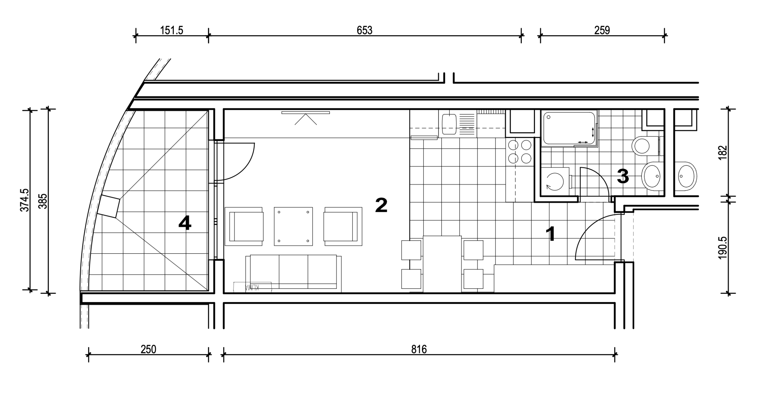
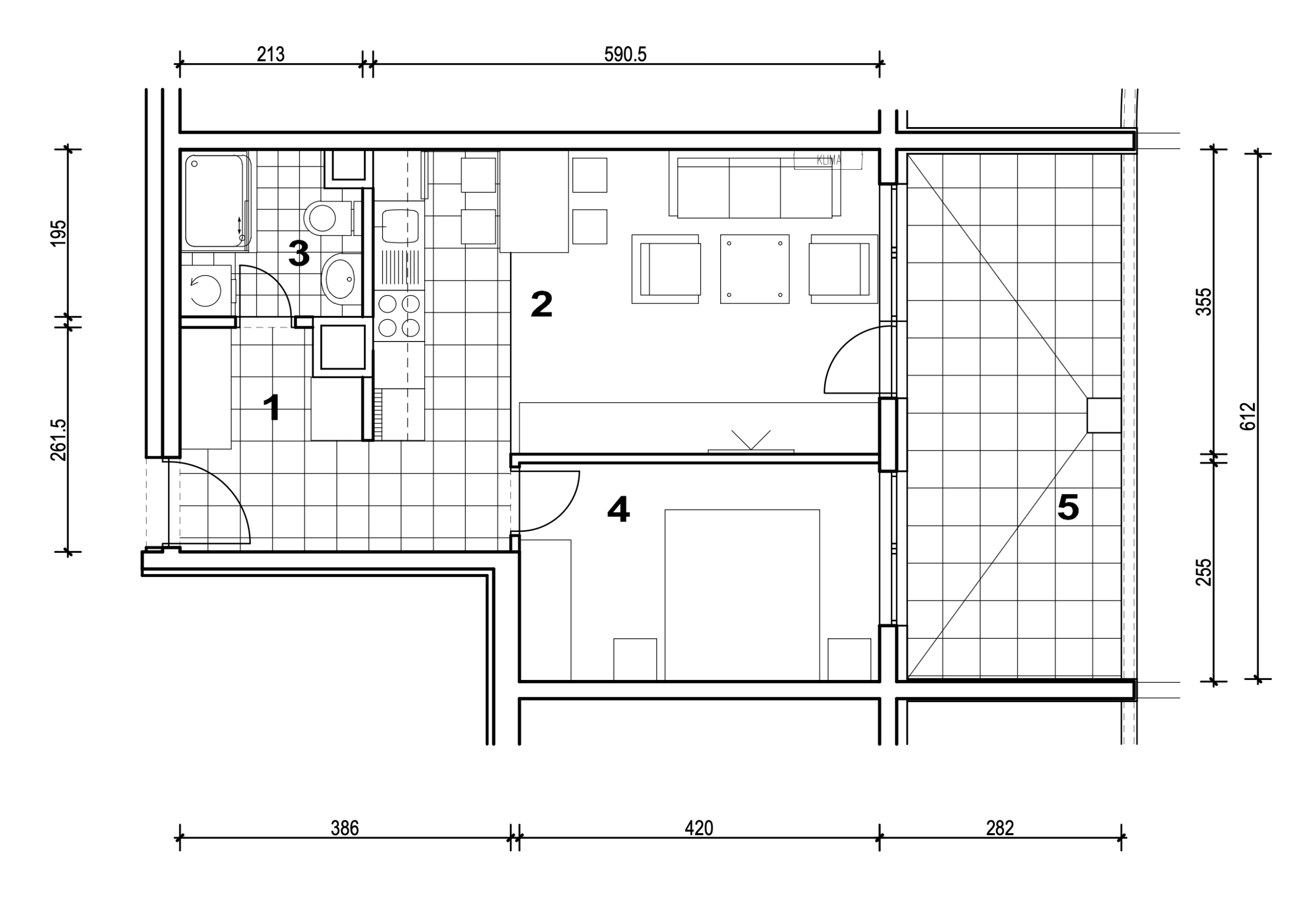
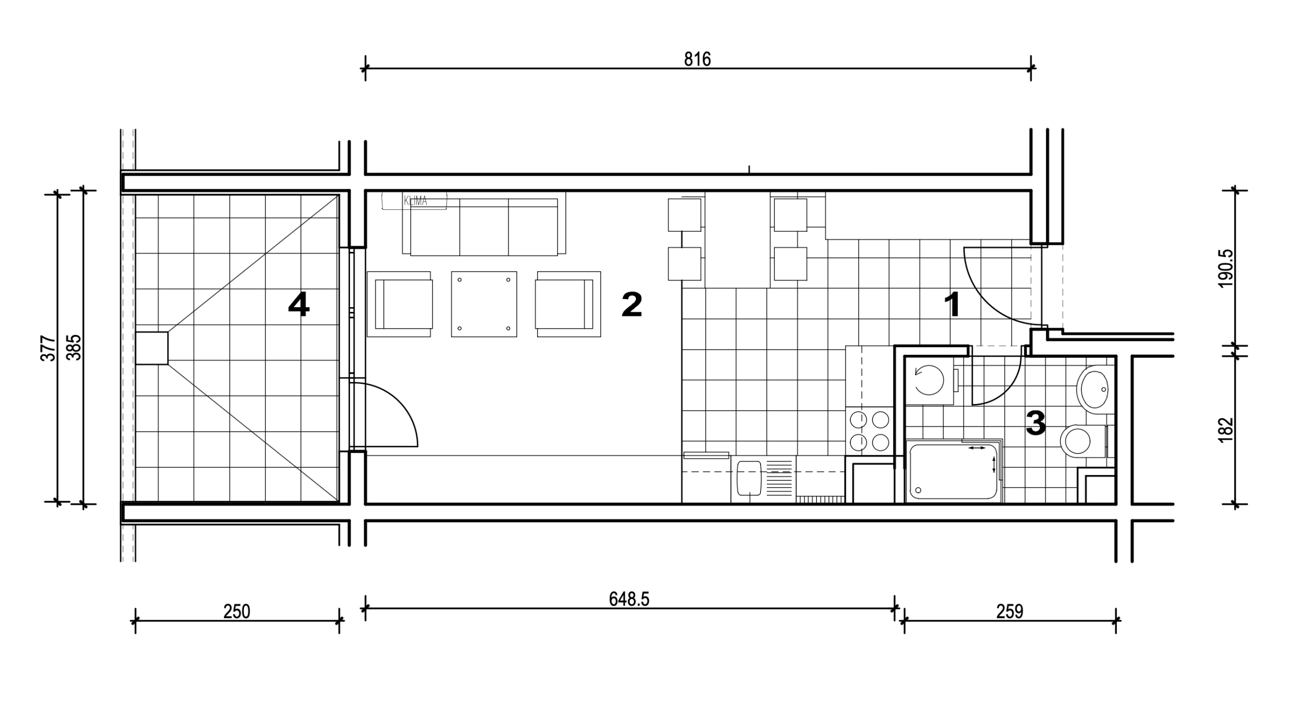
STAN M3B-62 | 1-soban | 37,84 m2 |
Kvadratura:
| Ulaz | 3,19 m2 |
| Kuhinja + dnevni boravak | 24,61 m2 |
| Kupaonica | 4,50 m2 |
| Loggia 0,75×5,72+0,5×2,50 | 5,54 m2 |
| 37,84 m2 |
Tlocrt:
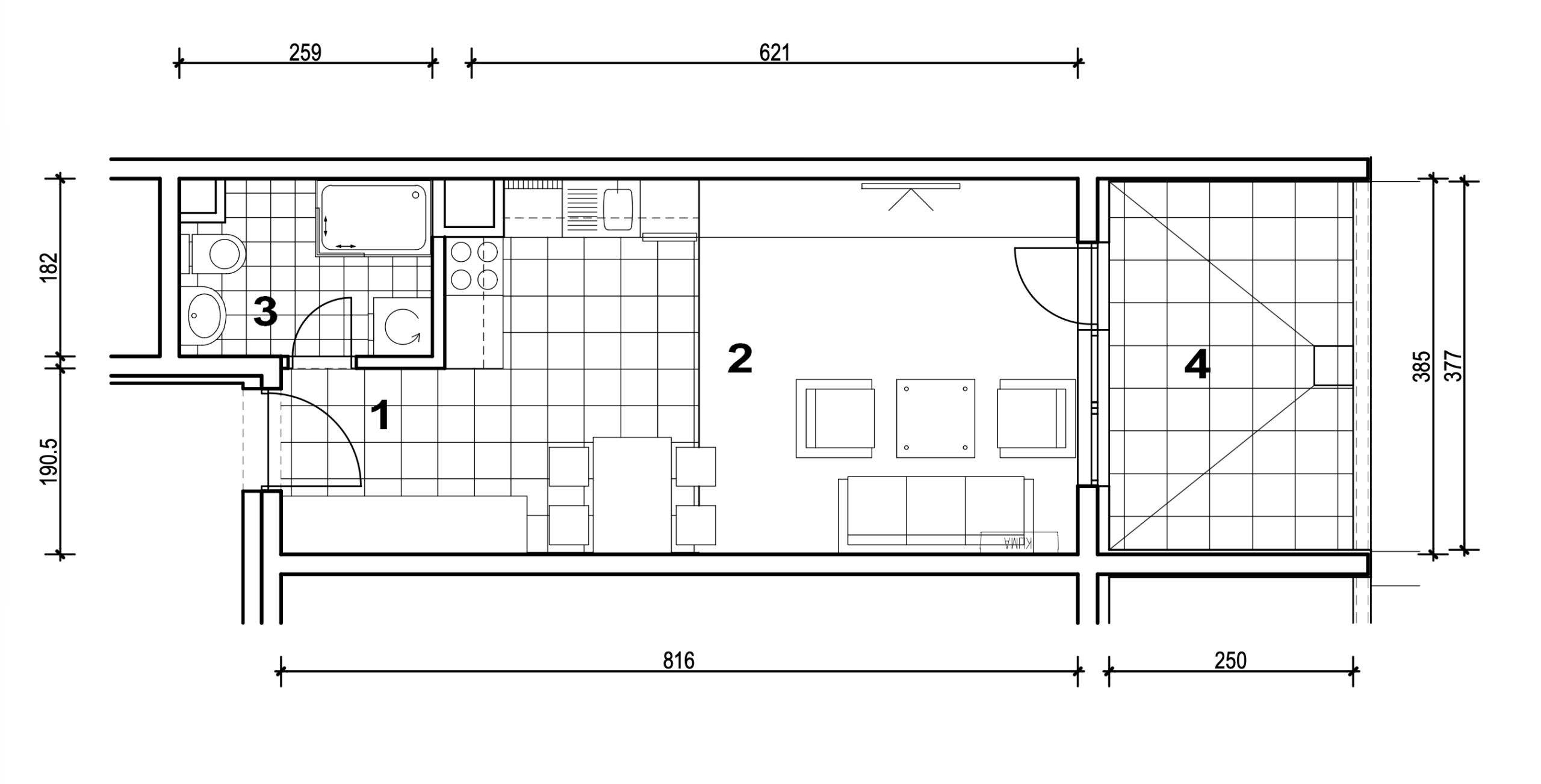
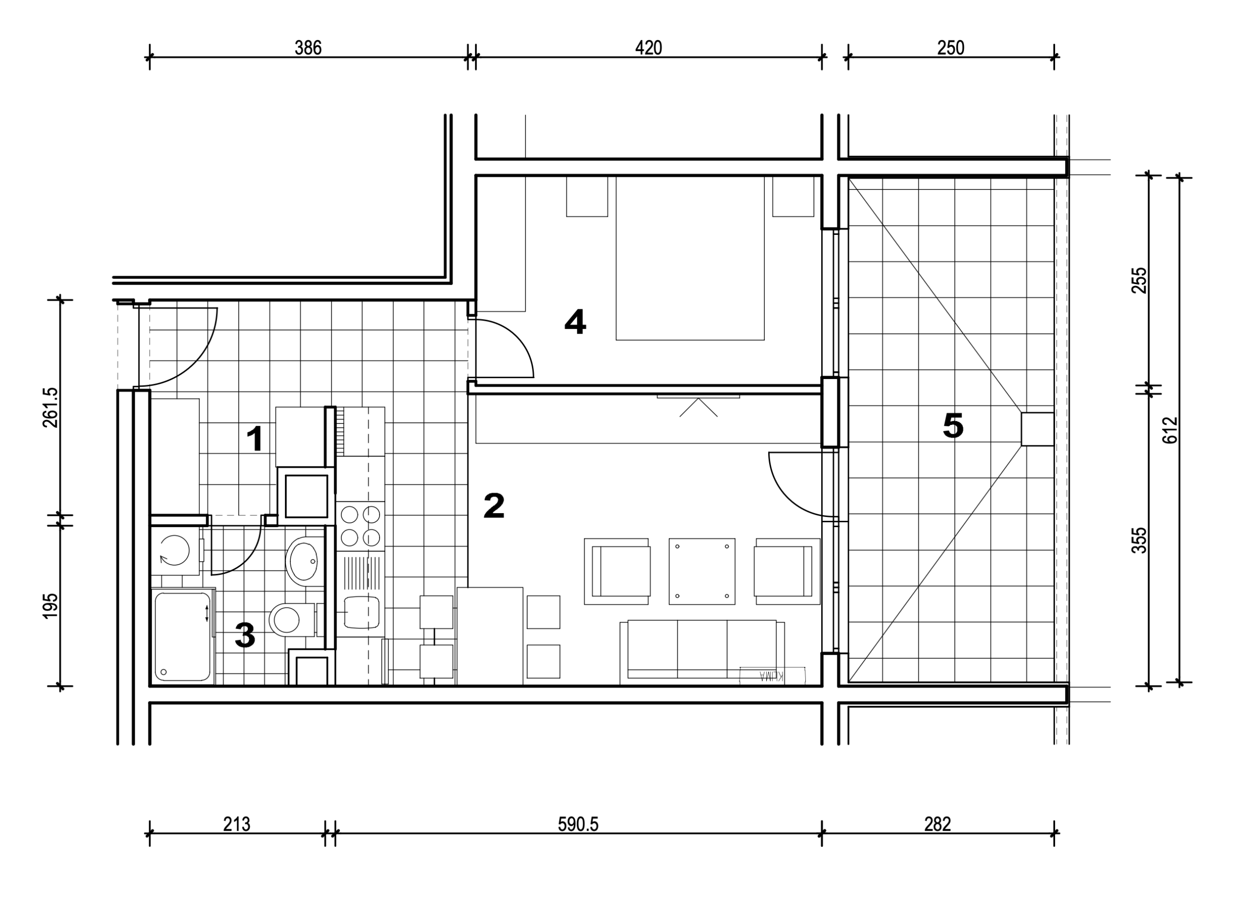
STAN M3B-63 | 1-soban | 39,37 m2 |
Kvadratura:
| Ulaz | 3,19 m2 |
| Kuhinja + dnevni boravak | 24,61 m2 |
| Kupaonica | 4,50 m2 |
| Loggia 0,75×9,42 | 7,07 m2 |
| 39,37 m2 |
Tlocrt:
STAN M3B-64 | 2-soban | 60,14 m2 | PRODANO
Kvadratura:
| Ulaz + kuhinja | 12,26 m2 |
| Dnevni boravak | 17,54 m2 |
| Kupaonica | 5,27 m2 |
| Soba | 13,59 m2 |
| Loggia 0,75×15,30 | 11,48 m2 |
| 60,14 m2 |
Tlocrt:
STAN M3B-65 | 2-soban | 54,33 m2 | PRODANO
Kvadratura:
| Ulaz | 7,23 m2 |
| Kuhinja + dnevni boravak | 20,96 m2 |
| Kupaonica | 3,95 m2 |
| Soba | 10,71 m2 |
| Loggia 0,75×15,30 | 11,48 m2 |
| 54,33 m2 |
Tlocrt:
STAN M3B-66 | 2-soban | 54,29 m2 | PRODANO
Kvadratura:
| Ulaz | 7,22 m2 |
| Kuhinja + dnevni boravak | 20,96 m2 |
| Kupaonica | 3,92 m2 |
| Soba | 10,71 m2 |
| Loggia 0,75×15,30 | 11,48 m2 |
| 54,29 m2 |
Tlocrt:
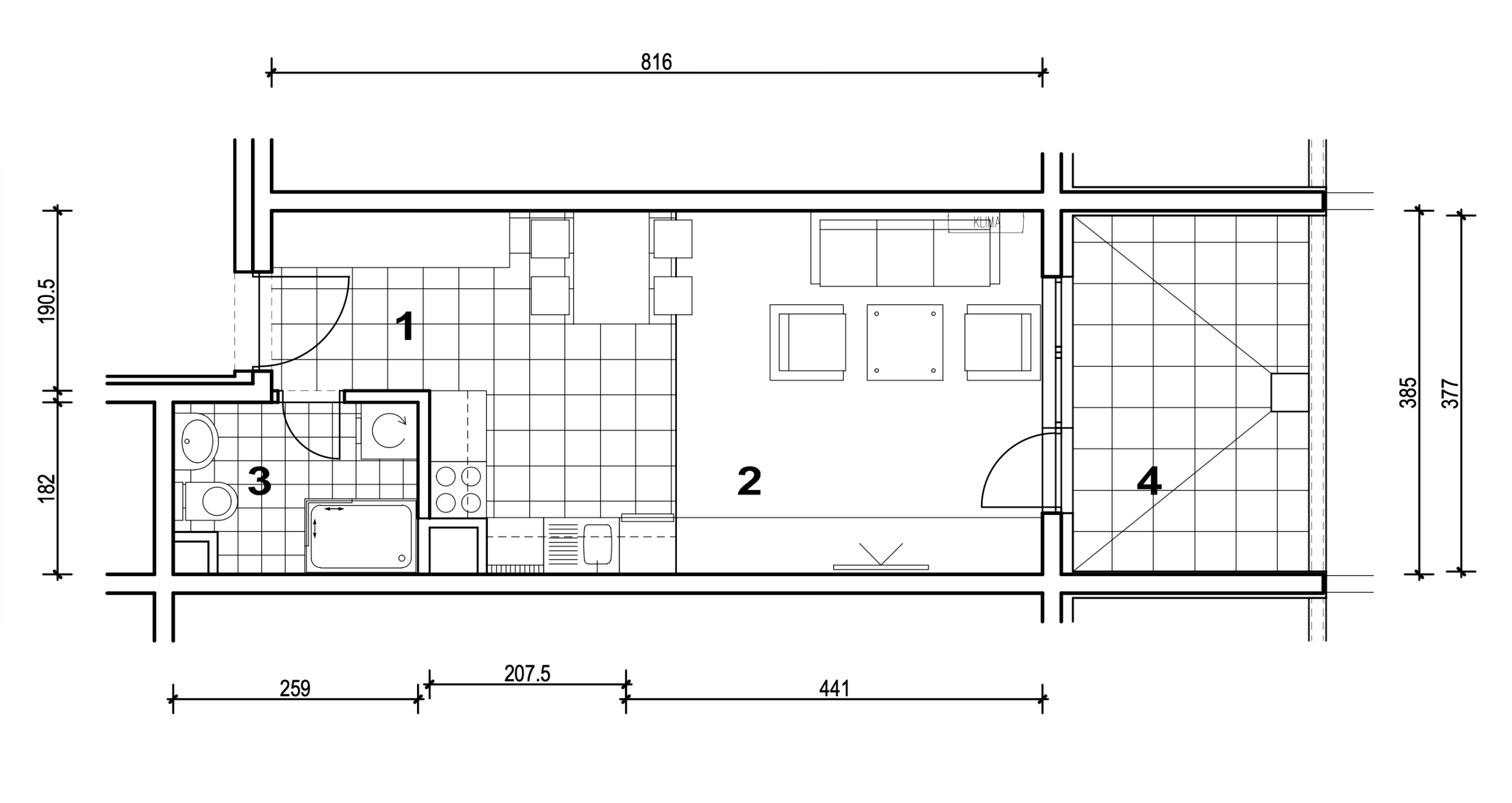
STAN M3B-67 | 1-soban | 39,37 m2 |
Kvadratura:
| Ulaz | 3,19 m2 |
| Kuhinja + dnevni boravak | 24,61 m2 |
| Kupaonica | 4,50 m2 |
| Loggia 0,75×9,43 | 7,07 m2 |
| 39,37 m2 |
Tlocrt:
STAN M3B-68 | 1-soban | 39,37 m2 |
Kvadratura:
| Ulaz | 3,19 m2 |
| Kuhinja + dnevni boravak | 24,61 m2 |
| Kupaonica | 4,50 m2 |
| Loggia 0,75×9,43 | 7,07 m2 |
| 39,37 m2 |
Tlocrt:
STAN M3B-69 | 2-soban | 54,47 m2 | PRODANO
Kvadratura:
| Ulaz | 7,56 m2 |
| Kuhinja + dnevni boravak | 20,96 m2 |
| Kupaonica | 3,95 m2 |
| Soba | 10,52 m2 |
| Loggia 0,75×15,30 | 11,48 m2 |
| 54,47 m2 |
Tlocrt:









