Pregled stanova:
Napomena:
- Rok useljenja: 31.05.2027.
- uz kupnju stana obvezna je i kupovina parkirnog mjesta
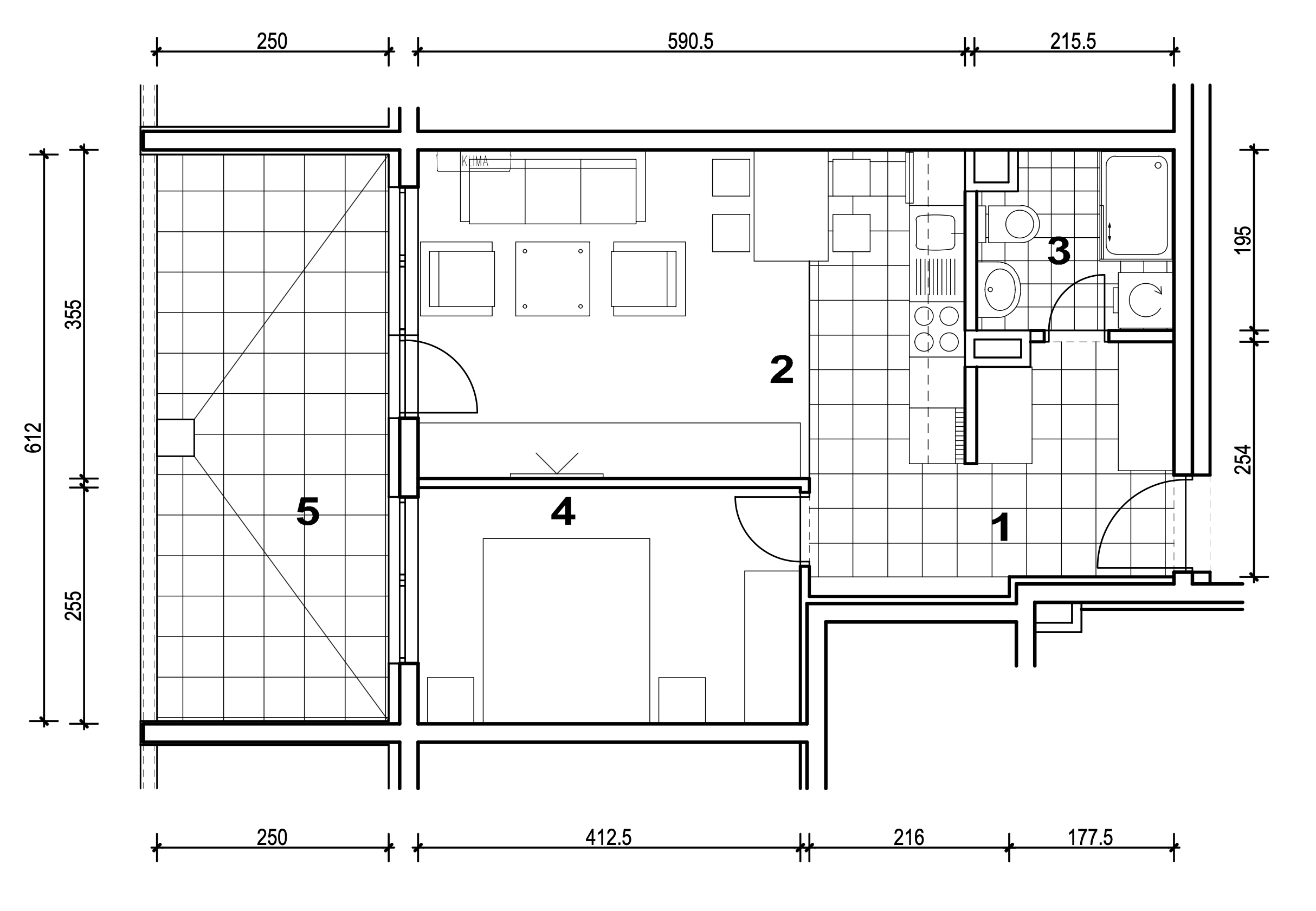
STAN M3B-20 | 2-soban | 54,56 m2 |
Kvadratura:
| Ulaz | 7,65 m2 |
| Kuhinja + dnevni boravak | 20,96 m2 |
| Kupaonica | 3,95 m2 |
| Soba | 10,52 m2 |
| Loggia 0,75×15,30 | 11,48 m2 |
| 54,56 m2 |
Tlocrt:
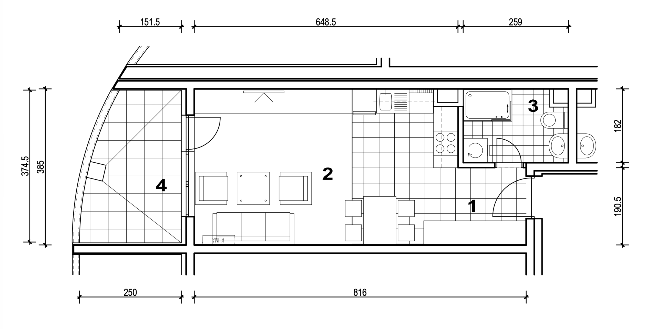
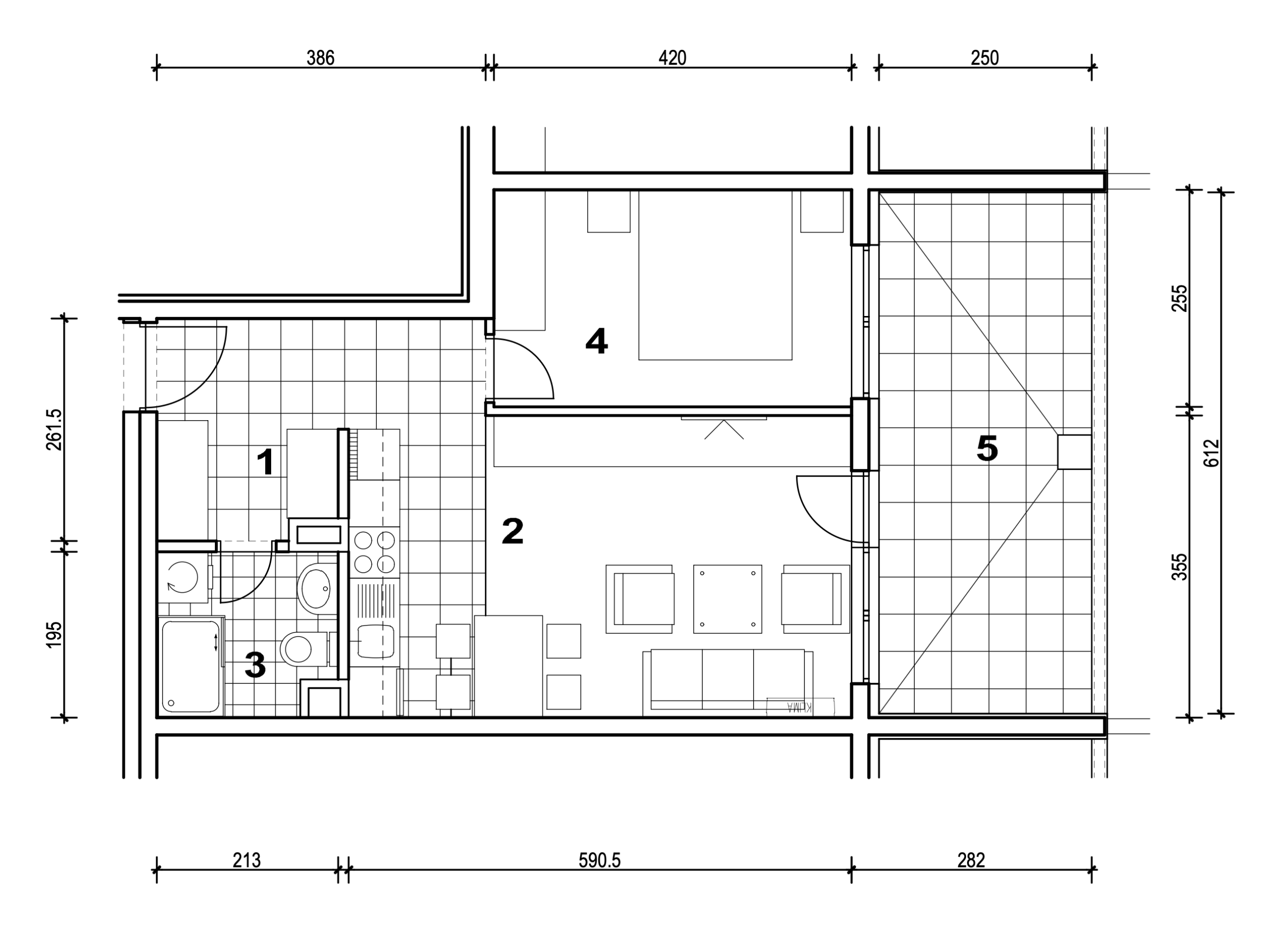
STAN M3B-21 | 2-soban | 60,23 m2 |
Kvadratura:
| Ulaz + kuhinja | 12,35 m2 |
| Dnevni boravak | 17,54 m2 |
| Kupaonica | 5,27 m2 |
| Soba | 13,59 m2 |
| Loggia 0,75×15,30 | 11,48 m2 |
| 60,23 m2 |
Tlocrt:
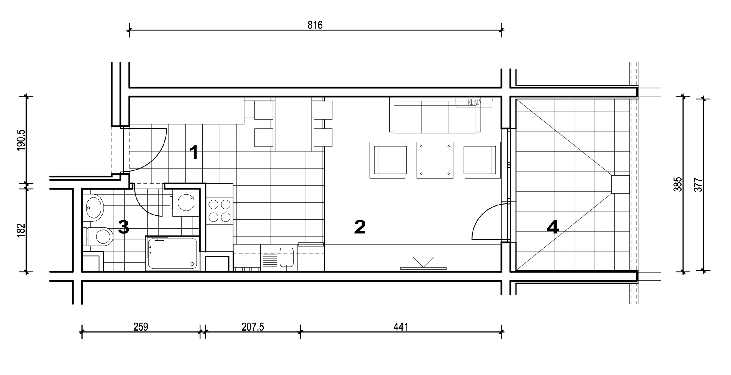
STAN M3B-22 | 1-soban | 37,93 m2 | REZERVIRANO
Kvadratura:
| Ulaz | 3,19 m2 |
| Kuhinja + dnevni boravak | 24,70 m2 |
| Kupaonica | 4,50 m2 |
| Loggia 0,75×5,72+0,5×2,50 | 5,54 m2 |
| 37,93 m2 |
Tlocrt:
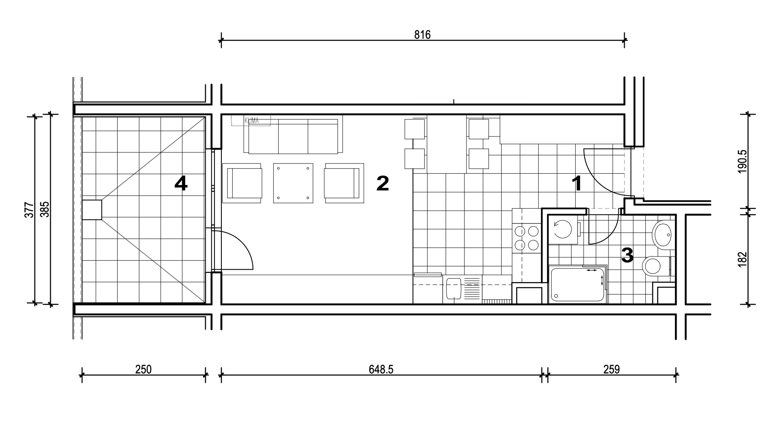
STAN M3B-23 | 1-soban | 51,96 m2 |
Kvadratura:
| Ulaz | 3,19 m2 |
| Kuhinja + dnevni boravak | 33,21 m2 |
| Kupaonica | 4,50 m2 |
| Loggia 0,75×11,95+0,5×4,19 | 11,06 m2 |
| 51,96 m2 |
Tlocrt:
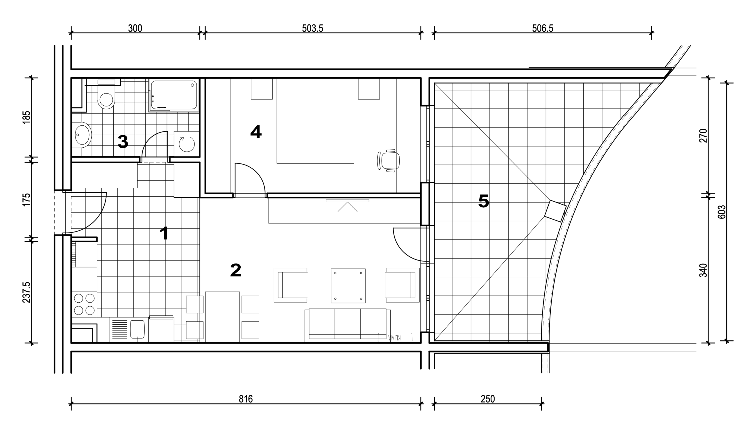
STAN M3B-24 | 2-soban | 62,50 m2 |
Kvadratura:
| Ulaz + kuhinja | 12,35 m2 |
| Dnevni boravak | 17,54 m2 |
| Kupaonica | 5,27 m2 |
| Soba | 13,59 m2 |
| Loggia/balkon 0,75×15,07+0,5×4,90 | 13,75 m2 |
| 62,50 m2 |
Tlocrt:
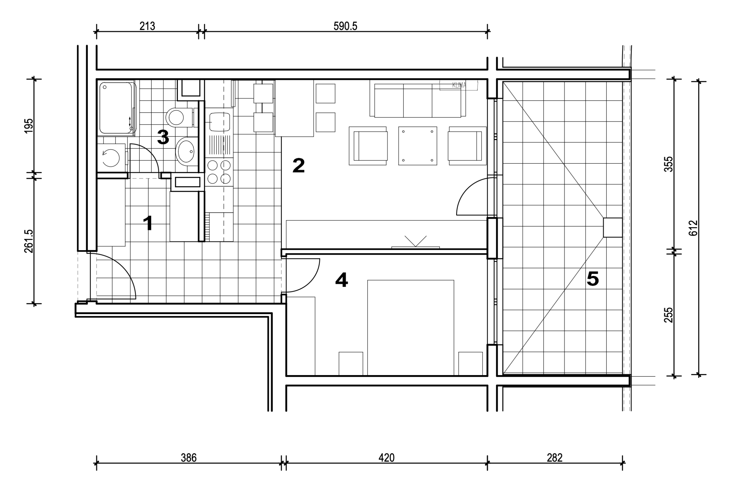
STAN M3B-25 | 2-soban | 54,51 m2 |
Kvadratura:
| Ulaz | 7,41 m2 |
| Kuhinja + dnevni boravak | 20,96 m2 |
| Kupaonica | 3,92 m2 |
| Soba | 10,71 m2 |
| Loggia 0,75×15,30 | 11,48 m2 |
| 54,51 m2 |
Tlocrt:
STAN M3B-26 | 2-soban | 54,48 m2 |
Kvadratura:
| Ulaz | 7,41 m2 |
| Kuhinja + dnevni boravak | 20,96 m2 |
| Kupaonica | 3,92 m2 |
| Soba | 10,71 m2 |
| Loggia 0,75×15,30 | 11,48 m2 |
| 54,48 m2 |
Tlocrt:
STAN M3B-27 | 1-soban | 39,46 m2 | PRODANO
Kvadratura:
| Ulaz | 3,19 m2 |
| Kuhinja + dnevni boravak | 24,70 m2 |
| Kupaonica | 4,50 m2 |
| Loggia 0,75×9,43 | 7,07 m2 |
| 39,46 m2 |
Tlocrt:
STAN M3B-28 | 1-soban | 39,46 m2 |
Kvadratura:
| Ulaz | 3,19 m2 |
| Kuhinja + dnevni boravak | 24,70 m2 |
| Kupaonica | 4,50 m2 |
| Loggia 0,75×9,43 | 7,07 m2 |
| 39,46 m2 |
Tlocrt:
STAN M3B-29 | 2-soban | 54,56 m2 |
Kvadratura:
| Ulaz | 7,65 m2 |
| Kuhinja + dnevni boravak | 20,96 m2 |
| Kupaonica | 3,95 m2 |
| Soba | 10,52 m2 |
| Loggia 0,75×15,30 | 11,48 m2 |
| 54,56 m2 |
Tlocrt:









