Prizemlje

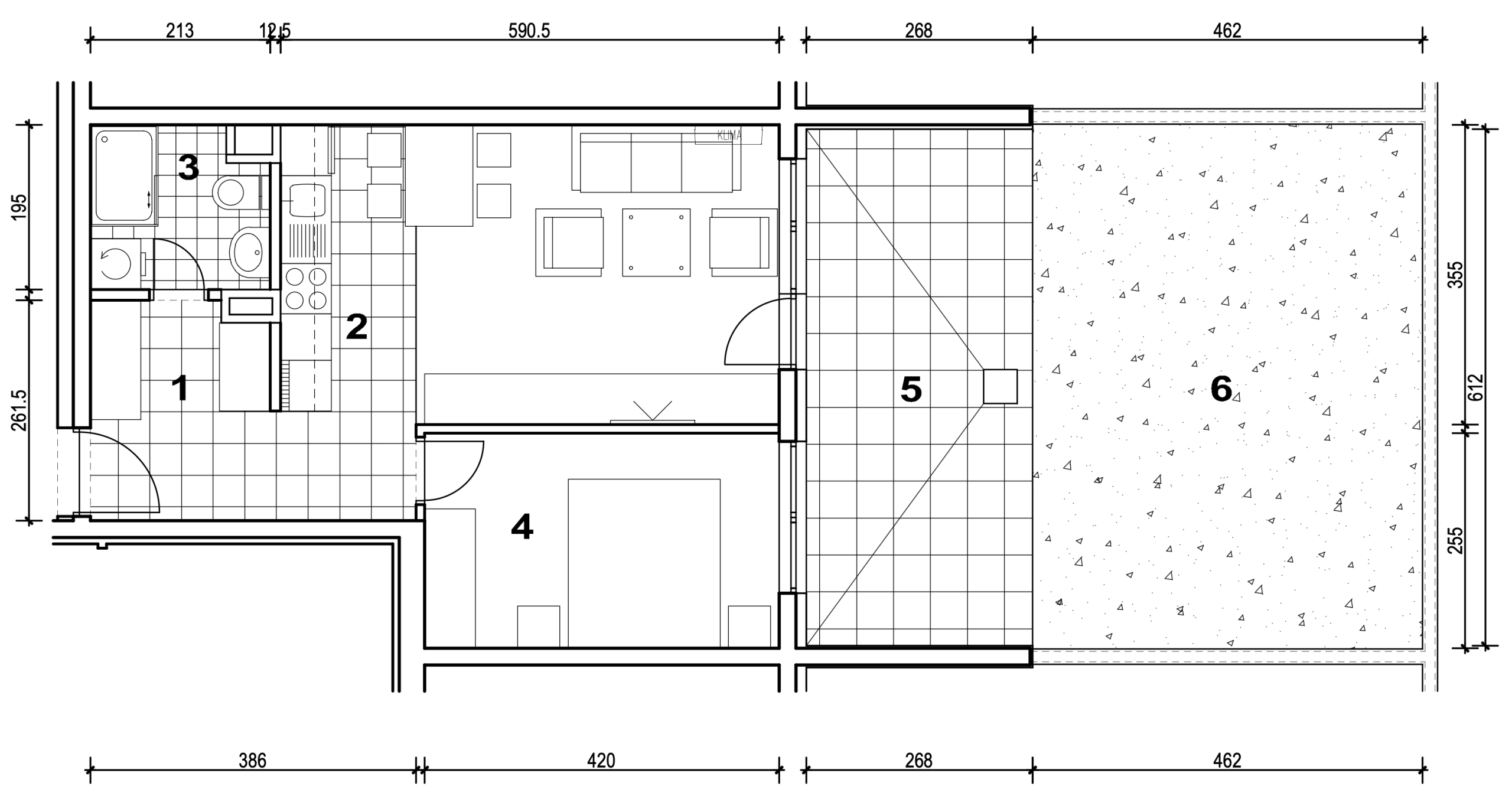
STAN M3A-1 | 1-soban | 43,86 m2 |

Kvadratura: 


Ulaz4,42 m2
Kuhinja + dnevni boravak29,62 m2
Kupaonica3,92 m2
Loggia 0,75×7,865,90 m2
 43,86 m2

Preuzmite katalog stana – PDF

Tlocrt:


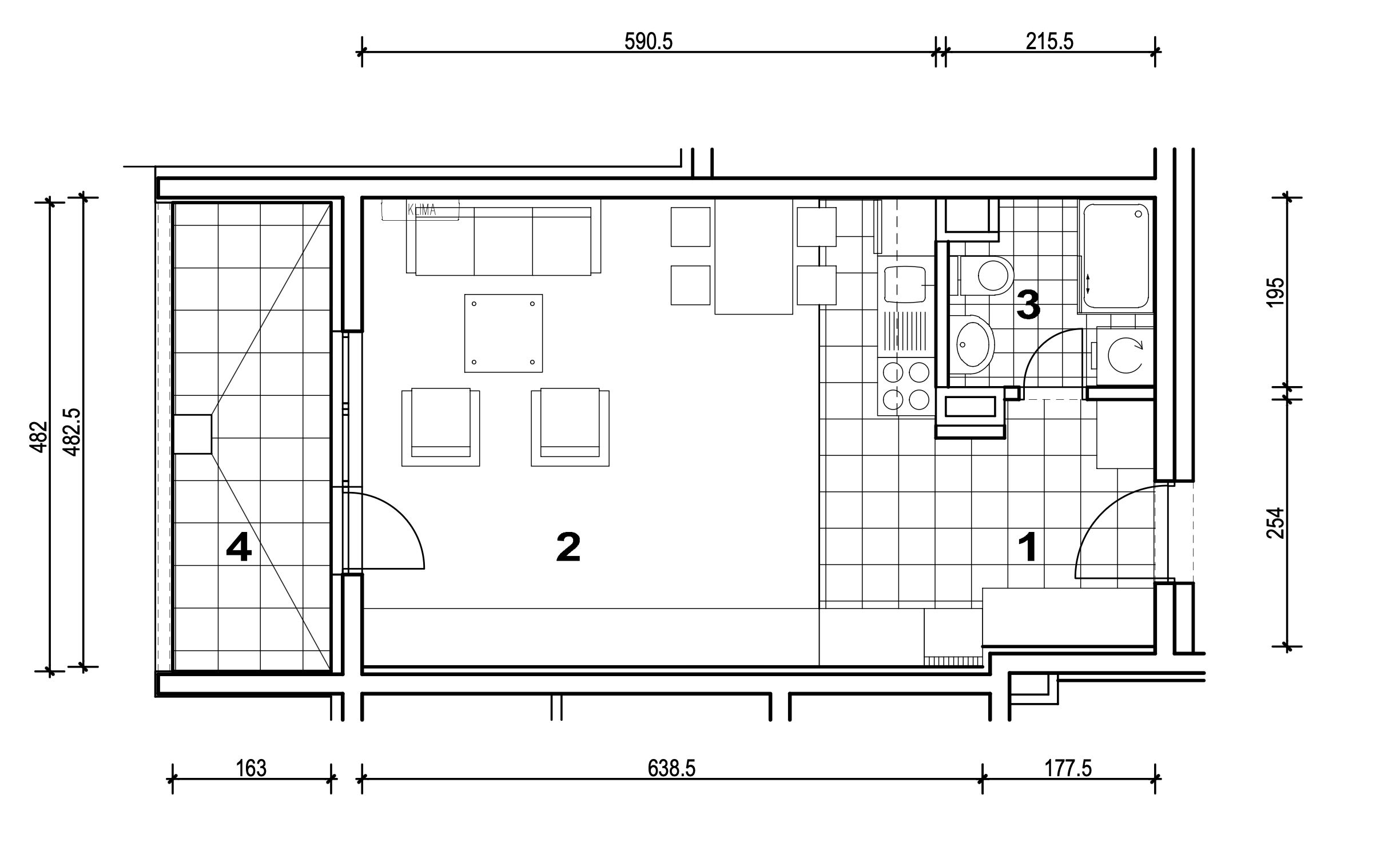
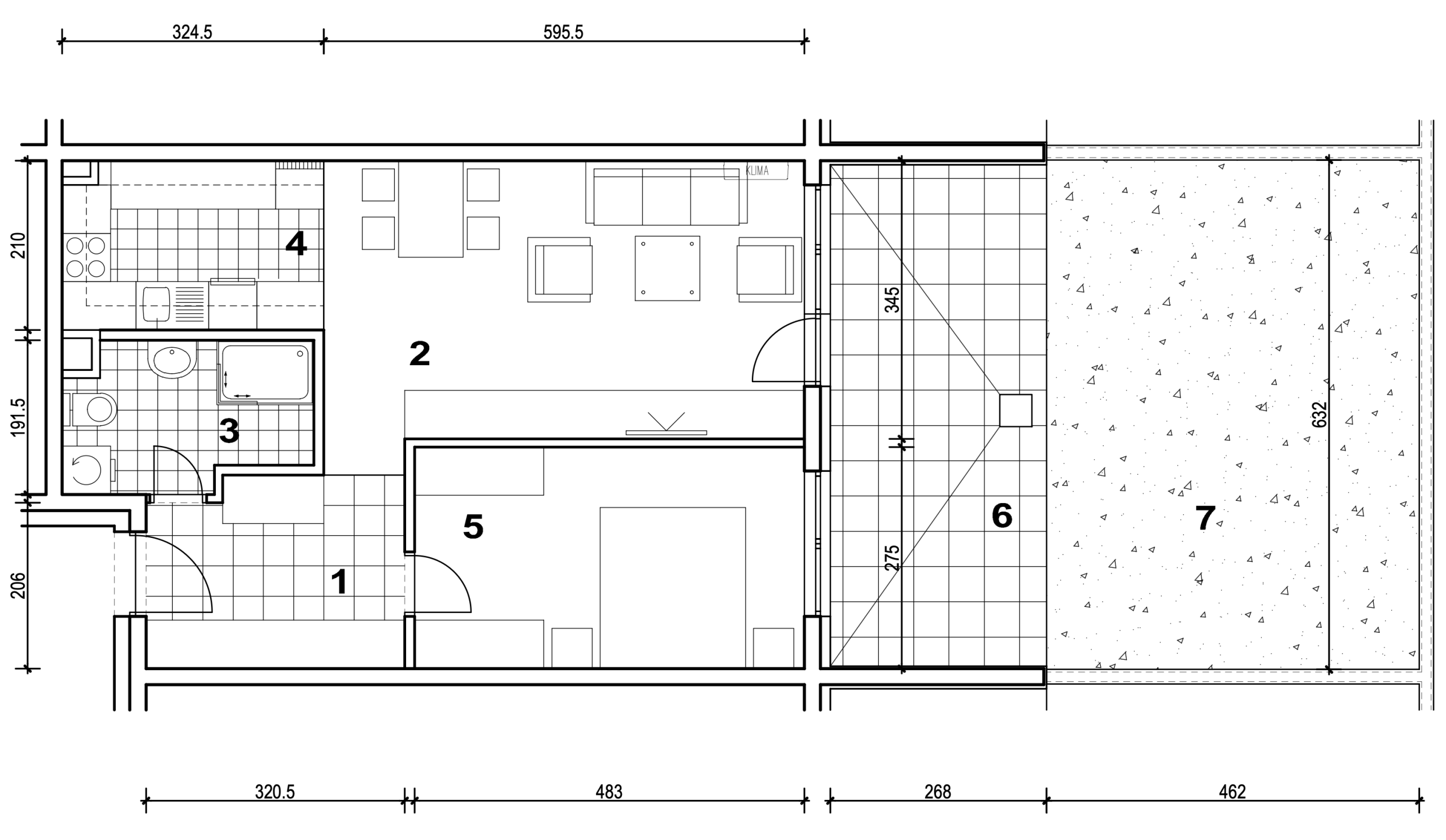
STAN M3A-2 | 2-soban | 66,12 m2 + Vrt |

Kvadratura: 


Ulaz7,37 m2
Dnevni boravak20,99 m2
Kupaonica5,30 m2
Kuhinja6,68 m2
Soba13,28 m2
Loggia 0,75×16,6712,50 m2
 66,12 m2
  
Vrt29,20 m2

Preuzmite katalog stana – PDF

Tlocrt:


STAN M3A-3 | 2-soban | 55,30 m2 + Vrt |

Kvadratura: 


Ulaz7,41 m2
Kuhinja + dnevni boravak20,96 m2
Kupaonica3,92 m2
Soba10,71 m2
Loggia 0,75×16,4012,30 m2
 55,30 m2
  
Vrt28,74 m2

Preuzmite katalog stana – PDF

Tlocrt:


STAN M3A-4 | 2-soban | 55,21 m2 + Vrt | PRODANO

Kvadratura: 


Ulaz7,32 m2
Kuhinja + dnevni boravak20,96 m2
Kupaonica3,92 m2
Soba10,71 m2
Loggia 0,75×16,4012,30 m2
 55,21 m2
  
Vrt28,74 m2

Preuzmite katalog stana – PDF

Tlocrt:


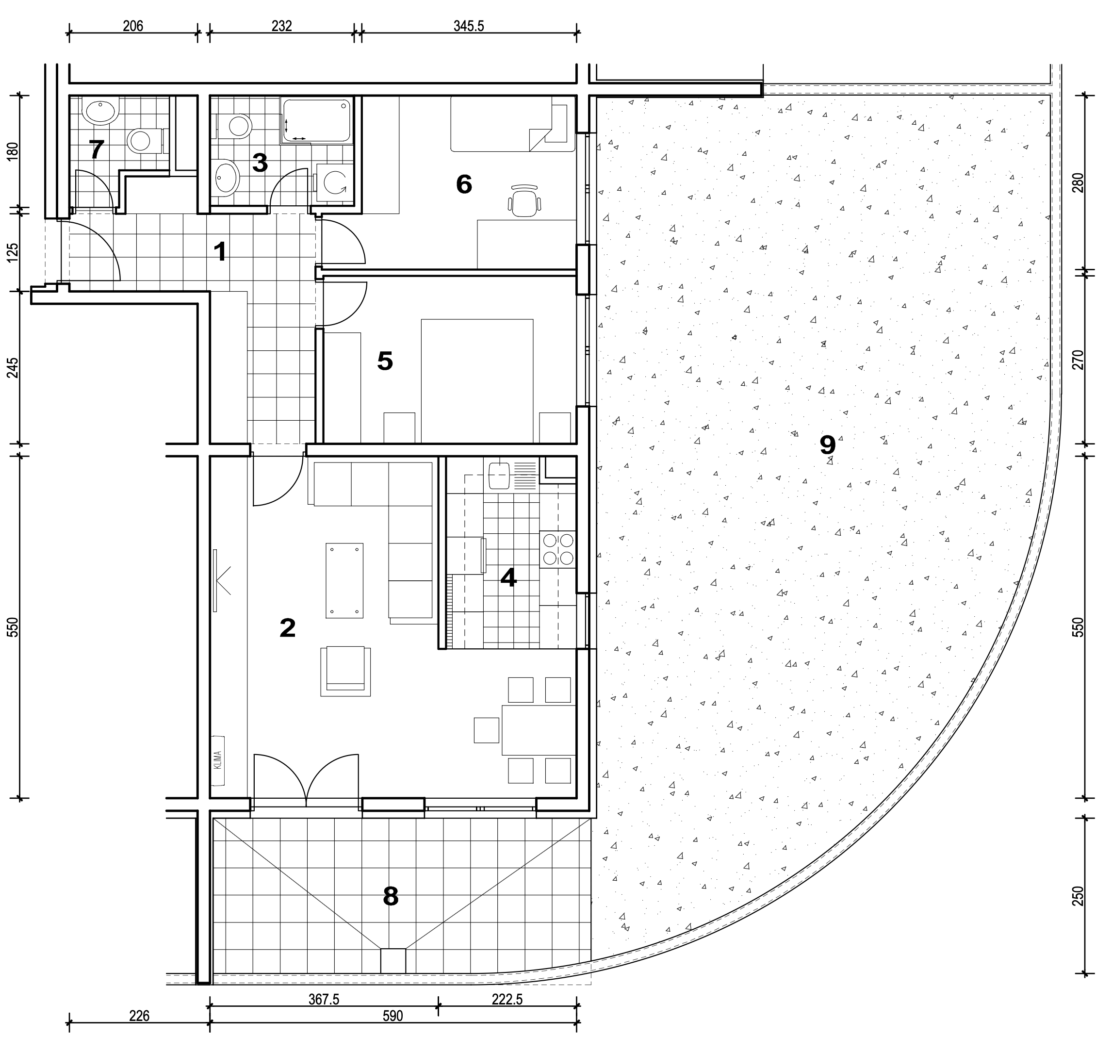
STAN M3A-5 | 3-soban + VP | 76,92 m2 + Vrt | REZERVIRANO

Kvadratura: 


Ulaz9,81 m2
Dnevni boravak25,55 m2
Kupaonica4,12 m2
Kuhinja6,24 m2
Soba11,00 m2
Soba10,25 m2
Wc2,41 m2
Balkon 0,5×15,077,54 m2
 76,92 m2
  
VP-1612,51 m2
Vrt84,66 m2
A1 spremište A1 (prizemlje)11,27 m2

Preuzmite katalog stana – PDF

Tlocrt:


STAN M3A-6 | 2-soban | 60,56 m2 |

Kvadratura: 


Ulaz/kuhinja10,00 m2
Dnevni boravak18,56 m2
Kupaonica4,06 m2
Soba16,09 m2
Loggia 0,75×15,8011,85 m2
 60,56 m2

Preuzmite katalog stana – PDF

Tlocrt:


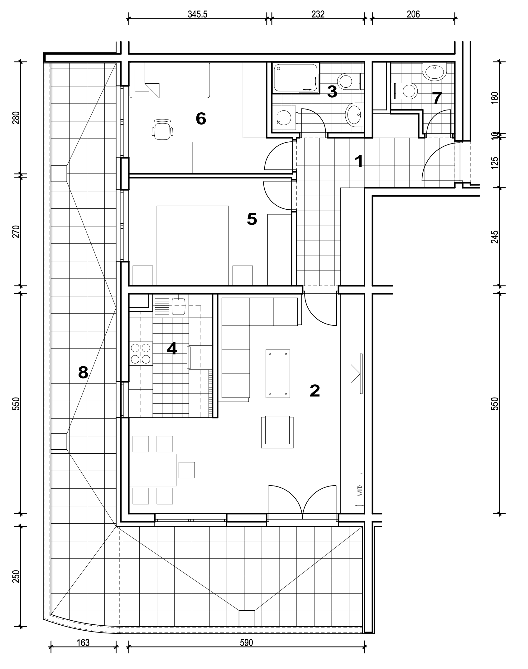
STAN M3A-7 | 3-soban + VP | 82,73 m2 |

Kvadratura: 


Ulaz9,81 m2
Dnevni boravak25,55 m2
Kupaonica4,12 m2
Kuhinja6,24 m2
Soba11,00 m2
Soba10,25 m2
Wc2,41 m2
Balkon/terasa 0,5×15,20 + 0,25×23,0213,25 m2
 82,73 m2
  
VP-1512,50 m2

Preuzmite katalog stana – PDF

Tlocrt:


Mijenjati se mogu samo keramičke pločice s napomenom da su vaše istih dimenzija kao i naše, u protivnom imamo pravo zaračunati dodatak za postavu ili odbiti postavljanje pločica.

Kupac je dužan, preinake vezane uz keramičke pločice, na vrijeme dogovoriti s voditeljem gradilišta, u protivnom izmjena keramike više nije moguća.

Prodavatelj isključivo prodaje nekretninu prema projektu nekretnine, a predmet kupoprodaje ne mogu biti nikakvi dodatni radovi ili izmjena opreme ili izmjene tlocrta nekretnine izvan standarda Prodavatelja.

Svaka promjena u stanu neovlašteno izvršena od strane Kupca će za posljedicu imati obvezu vraćanja u prvobitno stanje o trošku Kupca, uz naknadu tom promjenom sve prouzročene štete.

Obavijest

Trenutno nema dostupnih obavijesti.

Kontakt osobe:


Naziv poslovniceVoditelj poslovniceAdresa
TelefonRadno vrijeme poslovnice
SveticeAna KopajtićDivka Budaka 1D, 10 000 Zagreb091/ 494 1454Ponedjeljak – 12:00-19:00
Utorak – 9:00-16:00
Srijeda – 12:00-19:00
Četvrtak – 9:00-16:00
Petak – 9:00-16:00
Subota – Ne radi
Nedjelja – Ne radi
ŠpanskoMihovil LeticaFranceska Tenchinija 2A, 10 000 Zagreb091/ 219 1761Ponedjeljak – 12:00-19:00
Utorak – 9:00-16:00
Srijeda – 12:00-19:00
Četvrtak – 9:00-16:00
Petak – 9:00-16:00
Subota – Ne radi
Nedjelja – Ne radi
Mobilna poslovnica- bank@workAndrea TroharUlica grada Vukovara 284, 10 000 Zagreb091/ 219 1332Ponedjeljak – 8:00-16:00
Utorak – 8:00-16:00
Srijeda – 8:00-16:00
Četvrtak – 8:00-16:00
Petak – 8:00-16:00
Subota – Ne radi
Nedjelja – Ne radi

Mijenjati se mogu samo keramičke pločice s napomenom da su vaše istih dimenzija kao i naše, u protivnom imamo pravo zaračunati dodatak za postavu ili odbiti postavljanje pločica.

Kupac je dužan, preinake vezane uz keramičke pločice, na vrijeme dogovoriti s voditeljem gradilišta, u protivnom izmjena keramike više nije moguća.

Prodavatelj isključivo prodaje nekretninu prema projektu nekretnine, a predmet kupoprodaje ne mogu biti nikakvi dodatni radovi ili izmjena opreme ili izmjene tlocrta nekretnine izvan standarda Prodavatelja.

Svaka promjena u stanu neovlašteno izvršena od strane Kupca će za posljedicu imati obvezu vraćanja u prvobitno stanje o trošku Kupca, uz naknadu tom promjenom sve prouzročene štete.

Poštovani Kupci,

Od dana 28.04.2022. godine na snazi su nova pravila za izmjene/preinake u stanovima.

Mijenjati se mogu keramičke pločice s napomenom da su vaše istih dimenzija kao i naše, u protivnom imamo pravo zaračunati dodatak za postavu ili odbiti postavljanje pločica.

Kupac je dužan, preinake vezane uz keramičke pločice, na vrijeme dogovoriti s voditeljem gradilišta, u protivnom u slučaju kasne reakcije izmjena keramike više nije moguća.

Prodavatelj isključivo prodaje nekretninu prema projektu nekretnine, a predmet kupoprodaje ne mogu biti nikakvi dodatni radovi ili izmjena opreme ili izmjene tlocrta nekretnine izvan standarda Prodavatelja.

Svaka promjena u stanu neovlašteno izvršena od strane Kupca će za posljedicu imati obvezu vraćanja u prvobitno stanje o trošku Kupca, uz naknadu tom promjenom sve prouzročene štete.

GIP PIONIR d.o.o.

Kontakt osobe:

CentarAdresaGradDirektor CentraMobitelMail
REGIONALNI CENTAR SREDIŠNJA HRVATSKA
JurišićevaJurišićeva ulica 4ZagrebEdita Jasprica091 480 0280Edita.Jasprica@hpb.hr
VaršavskaVaršavska ulica 9ZagrebIvana Peraić091/607 2648Ivana.Peraic@hpb.hr
Velika GoricaTrg kralja Petra Krešimira IV br 1Velika GoricaNikolina Mlinarić i Ivan Čeh091 4800 197nikolina.mlinaric@hpb.hr ivan.ceh@hpb.hr
Velika Gorica 2Slavka Kolara 2Velika GoricaValentina Matković091 4800 406Valentina.Matkovic@hpb.hr
HOTOHoto trg 1StrmecIvana Vrdoljak091 4800 087ivana.vrdoljak@hpb.hr
VMDStrojarska cesta 16ZagrebLara Crnički091 4800 147Lara.Crnički@hpb.hr
DubravaAvenija Dubrava 47ZagrebFilip Krajinović091 4800 150Filip.Krajinovic@hpb.hr
ZaprešićTrg žrtava fašizma 8ZaprešićDavorka Sudar091 488 8362Davorka.Sudar@hpb.hr
Britanski trgIlica 81ZagrebGabrijela Jurlina091 4804 437Gabrijela.Jurlina@hpb.hr
IlicaIlica 304ZagrebDejan Novosel091/4801 295Dejan.Novosel@hpb.hr
GajniceArgentinska ulica 4ZagrebIvan Stojaković091 6202 618ivan.stojakovic@hpb.hr
VrbaniHorvaćanska cesta 75ZagrebIvona Bungić091 4800 374Ivona.Bungic@hpb.hr
SesveteTrg Dragutina Domjanića 8SesveteJela Gašpar091 6072 643Jela.Gaspar@hpb.hr
MaksimirMaksimirska cesta 105ZagrebIvana Lozančić091 4801 827Ivana.Lozancic@hpb.hr
SavskaSavska cesta 58ZagrebPetra Stipaničev091 4801 147Petra.Stipanicev@hpb.hr
KarlovacUlica dr. Vladka Mačeka 1KarlovacIrena Mirić091 607 2629Irena.Miric@hpb.hr
ŠpanskoTrg Ivana Kukuljevića 5ZagrebAnna Maria Brleković091 4800 283AnnaMaria.Brlekovic@hpb.hr
SredišćeUlica Ivana Šibla 15ZagrebDino Bandalo091 4800 407Dino.Bandalo@hpb.hr
Novi ZagrebResselova b.b.ZagrebIvana Komarac091 4800 173Ivana.Komarac@hpb.hr
Dugo SeloUlica Josipa Zorića 28Dugo SeloDomagoj Zeleničić091/6393-427Domagoj.Zelenicic@hpb.hr
SisakUlica Stjepana i Antuna Radića 34SisakKarmen Hideg091 4800 770Karmen.Hideg@hpb.hr
REGIONALNI CENTAR SJEVERNA HRVATSKA
VaraždinIvana Kukuljevića 9aVaraždinTanja Novak091 6072 899Tanja.Novak@hpb.hr
BjelovarTrg Eugena Kvaternika 1BjelovarAlemka Golić091 4800 641Alemka.Golic@hpb.hr
ČakovecOtokara Keršovanija 1ČakovecMihaela Obrstar091 6072 947Mihaela.Obrstar@hpb.hr
ZabokZivtov trg 11ZabokDanijela Kunštić Maček091/4801-310Danijela.Kunsticmacek@hpb.hr
KriževciTrg svetog Florijana 15KriževciZoran Jurkić091 480 0108Zoran.Jurkic@hpb.hr
KoprivnicaFlorijanski trg 13KoprivnicaĐorđe Obranović091 6072 979Dorde.Obranovic@hpb.hr
REGIONALNI CENTAR SLAVONIJA
OsijekUlica Hrvatske Republike 21OsijekSenka Mažar091 480 1400Senka.Mazar@hpb.hr
Osijek 2Prolaz J. Benešića 2OsijekStanko Kolarević091 4801 601Stanko.Kolarevic@hpb.hr
Ispoatava Beli ManastirTrg Slobode 38Beli ManastirStanko Kolarević091 4801 602Stanko.Kolarevic@hpb.hr
VinkovciTrg dr. Franje Tuđmana 2VinkovciMiroslav Madžarac091 6072 606Miroslav.Madzarac@hpb.hr
VukovarJ. J. Strossmayera 16VukovarŽeljka Horvatin Horvat091 4805 051Zeljka.HorvatinHorvat@hpb.hr
ValpovoTrg Kralja Tomislava 17ValpovoMaja Degiacinto091 607 2006Maja.Degicinto@hpb.hr
Ispostava Donji MiholjacVukovarska 4Donji MiholjacMaja Degiacinto091 607 2006Maja.Degicinto@hpb.hr
ViroviticaTrg Kralja Zvonimira 3ViroviticaTanja Fašajić091 6072 931Tanja.Fasajic@hpb.hr
ĐakovoBana Josipa Jelačića 8ĐakovoGabrijela Prša091 6072 614Gabrijela.Prsa@hpb.hr
Ispostava NašiceJ. J. Strossmayera 2NašiceGabrijela Prša091 6072 614Gabrijela.Prsa@hpb.hr
PožegaCehovska 8PožegaMatija Lovrić091 2539 001Matija.Lovric@hpb.hr
Slavonski BrodKralja Petra Krešimira IV br. 3Slavonski BrodIvana Pinojtić091 639 3418Ivana.Pinojtic@hpb.hr
REGIONALNI CENTAR ISTRA I KVARNER
PulaAnticova 7PulaAleksandra Pliško098 299 481Aleksandra.Plisko@hpb.hr
PorečTrg Slobode 14PorečIva Grabrović091 480 0125Iva.grabrovic@hpb.hr
Rijeka 2Uljarska 4aRijekaZdenka Tupanjac091 4804 426Zdenka.Tupanjac@hpb.hr
REGIONALNI CENTAR DALMACIJA – SJEVER
ZadarPut Murvice 12 DZadarTomislav Milin091 4800 037Tomislav.Milin@hpb.hr
Zadar 2Ulica Andrije Hebranga 2ZadarBranka Sorić091 480 0035Branka.Soric@hpb.hr
Zadar 3112. brigade 1ZadarJure Milat091 6393-438Jure.Milat@hpb.hr
GospićTrg Stjepana Radića 18GospićIvana Pavelić Šaban091 607 2891Ivana.Pavelic@hpb.hr
ŠibenikAnte Starčevića 4ŠibenikNikolina Šarin098 590 156Nikolina.Sarin@hpb.hr
VidiciStjepana Radića 137ŠibenikBranka Čović098 238 222Branka.Covic@hpb.hr
VodiceHerfordska ulica b.b.VodiceHelena Milošević099 8068 637Helena.Milosevic@hpb.hr
DalmareVelimira Škorpika 23ŠibenikMartina Barišić091 480 0029Martina.Barisic@hpb.hr
KninUl. Gospe Vel. Hrv. Krsnog Zavjeta 9KninIvan Stjepan Bajan091 6072 602Ivan-Stjepan.Bajan@hpb.hr
REGIONALNI CENTAR DALMACIJA – JUG
Split 1Domovinskog rata 49SplitKristina Prkačin091 607 2013Kristina.Prkacin@hpb.hr
Split 3Ruđera Boškovića 18aSplitRose-Anne Omrčen091 559 5524Rose-Anne.Omrcen@hpb.hr
Split 4Poljička cesta 12SplitSlađana Bakota091 4801 149Mirela.Prajo@hpb.hr
TrogirKardinala Alojzija Stepinca 42TrogirMartin Prcela091 6072 689Martin.Prcela@hpb.hr
SolinKralja Zvonimira 87aSolinDarija Milas091 6072 689Darija.Milas@hpb.hr
Kaštel StariIvana Danila 12Kaštel StariMartin Prcela091 6072 935Martin.Prcela@hpb.hr
SinjTrg Kralja Tomislava 1SinjZoran Klepo091 6072 662Zoran.Klepo@hpb.hr
TriljBana Josipa Jelačića 8TriljTomislav Marić091 607 2837Tomislav.Maric@hpb.hr
ImotskiŠetalište Stjepana Radića 19ImotskiRužica Lončar091 4804 431Ruzica.Loncar@hpb.hr
MakarskaTrg 4. Svibnja 533 1MakarskaSanja Beus091 4801 349Sanja.Beus@hpb.hr
MetkovićSplitska ulica 3/3MetkovićMarina Odak091/4801-407Marina.Odak@hpb.hr
DubrovnikDr. Ante Starčevića 24DubrovnikNagorka Šarić091 4800 425Nagorka.Saric@hpb.hr
KonavleGruda 43GrudaIvana Antonijević091 607 2967Ivana.Antonijevic@hpb.hr
Ispostava CavtatTrumbićev put 10CavtatIvana Antonijević091 607 2967Ivana.Antonijevic@hpb.hr
PločeUlica Vladimira Nazora 53PločeTiana Šunjić091 4800 719Tiana.Sunjic@hpb.hr