Pregled stanova:
Napomena:
- Rok useljenja: 31.05.2027.
- uz kupnju stana obvezna je i kupovina parkirnog mjesta
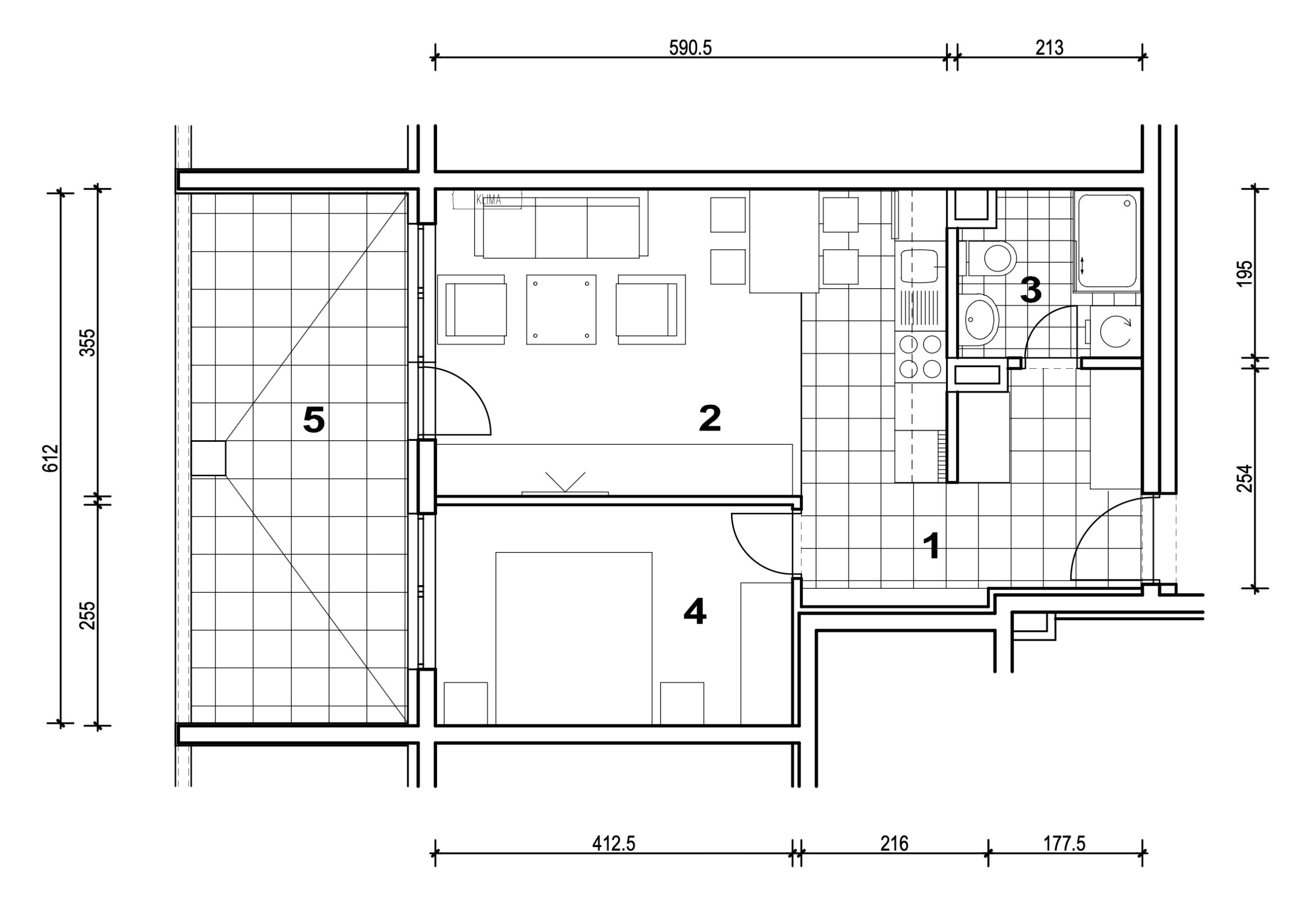
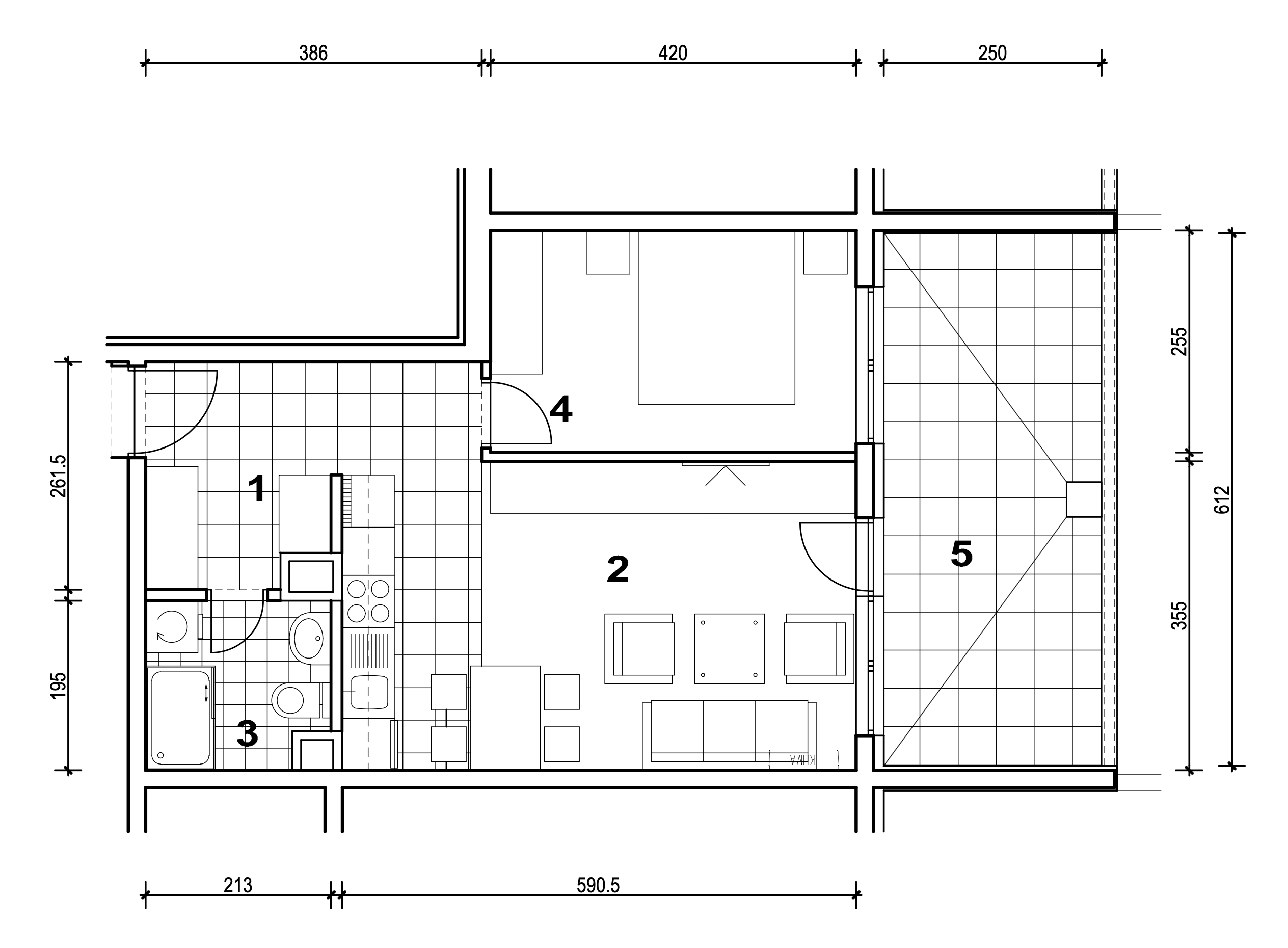
STAN M3A-17 | 2-soban | 54,56 m2 |
Kvadratura:
| Ulaz | 7,65 m2 |
| Kuhinja + dnevni boravak | 20,96 m2 |
| Kupaonica | 3,95 m2 |
| Soba | 10,52 m2 |
| Loggia 0,75×15,30 | 11,48 m2 |
| 54,56 m2 |
Tlocrt:
STAN M3A-18 | 2-soban | 65,23 m2 |
Kvadratura:
| Ulaz | 7,37 m2 |
| Dnevni boravak | 20,99 m2 |
| Kupaonica | 5,30 m2 |
| Kuhinja | 6,63 m2 |
| Soba | 13,28 m2 |
| Loggia 0,75×15,55 | 11,66 m2 |
| 65,23 m2 |
Tlocrt:
STAN M3A-19 | 2-soban | 65,23 m2 |
Kvadratura:
| Ulaz | 7,37 m2 |
| Dnevni boravak | 20,99 m2 |
| Kupaonica | 5,30 m2 |
| Kuhinja | 6,63 m2 |
| Soba | 13,28 m2 |
| Loggia 0,75×15,55 | 11,66 m2 |
| 65,23 m2 |
Tlocrt:
STAN M3A-20 | 2-soban | 54,51 m2 |
Kvadratura:
| Ulaz | 7,41 m2 |
| Kuhinja + dnevni boravak | 20,96 m2 |
| Kupaonica | 3,95 m2 |
| Soba | 10,71 m2 |
| Loggia 0,75×15,30 | 11,48 m2 |
| 54,51 m2 |
Tlocrt:
STAN M3A-21 | 2-soban | 54,42 m2 |
Kvadratura:
| Ulaz | 7,32 m2 |
| Kuhinja + dnevni boravak | 20,96 m2 |
| Kupaonica | 3,95 m2 |
| Soba | 10,71 m2 |
| Loggia 0,75×15,30 | 11,48 m2 |
| 54,42 m2 |
Tlocrt:
STAN M3A-22 | 3-soban + VP | 80,35 m2 | REZERVIRANO
Kvadratura:
| Ulaz | 9,81 m2 |
| Dnevni boravak | 25,55 m2 |
| Kupaonica | 4,12 m2 |
| Kuhinja | 6,24 m2 |
| Soba | 11,00 m2 |
| Soba | 10,25 m2 |
| Wc | 2,47 m2 |
| Loggia 0,75×14,55 | 10,91 m2 |
| 80,35 m2 | |
| VP-12 | 12,50 m2 |
| A4 spremište A4 (prizemlje) | 4,53 m2 |
Tlocrt:
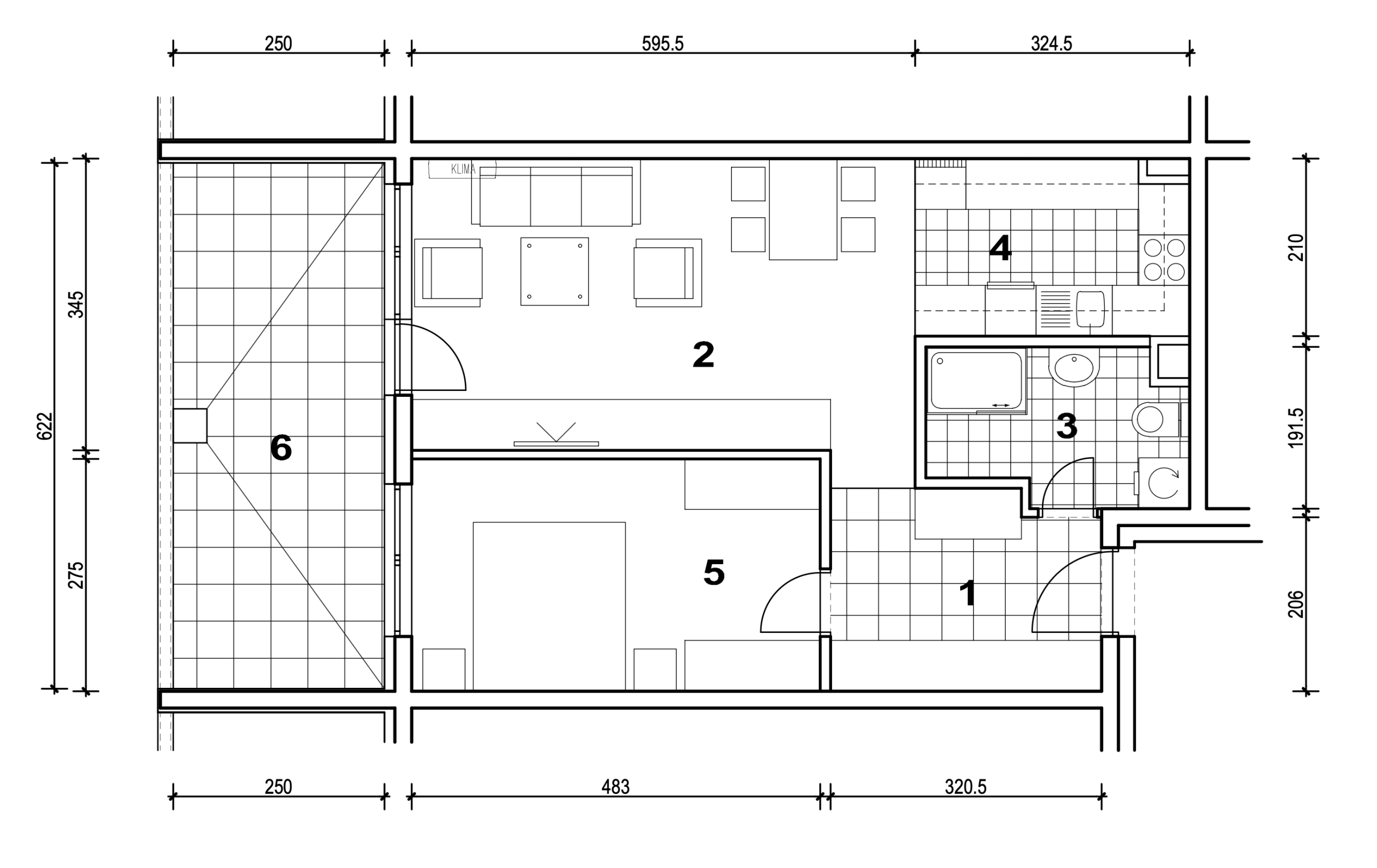
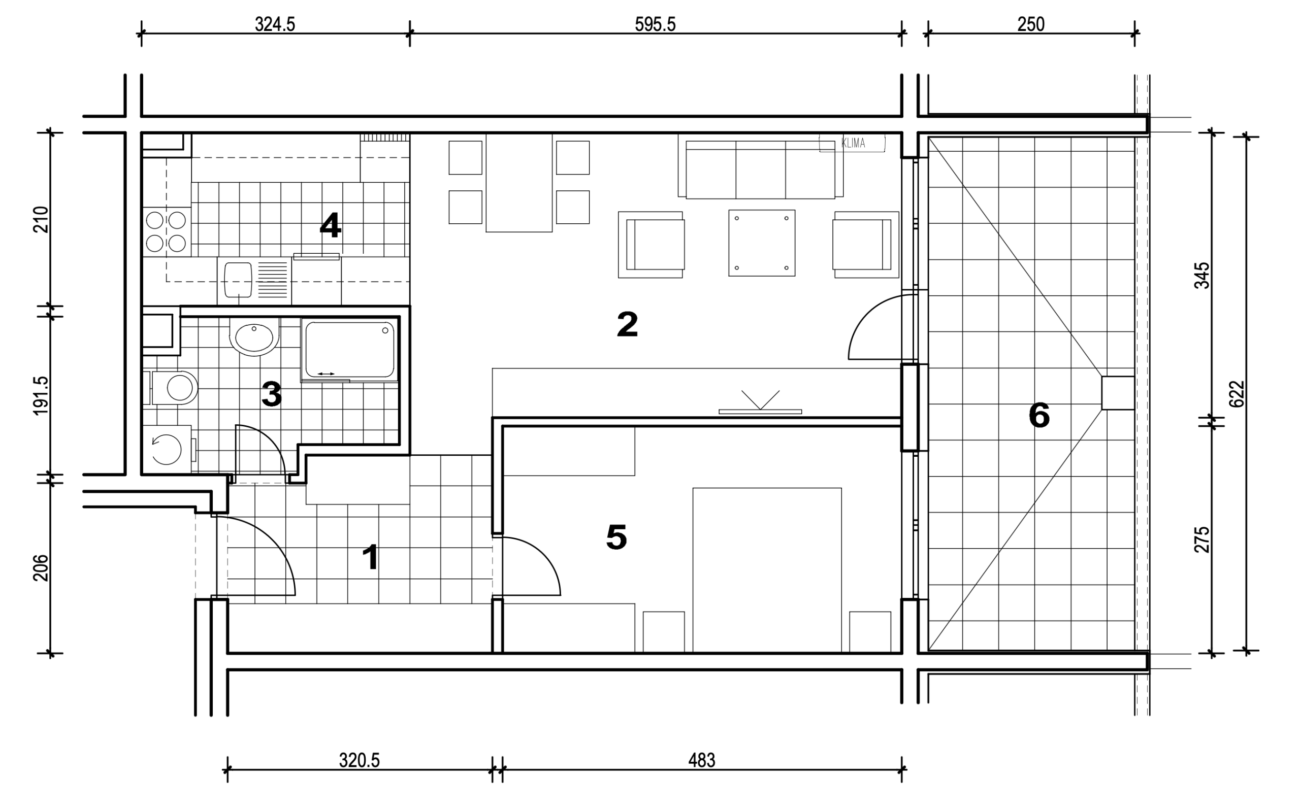
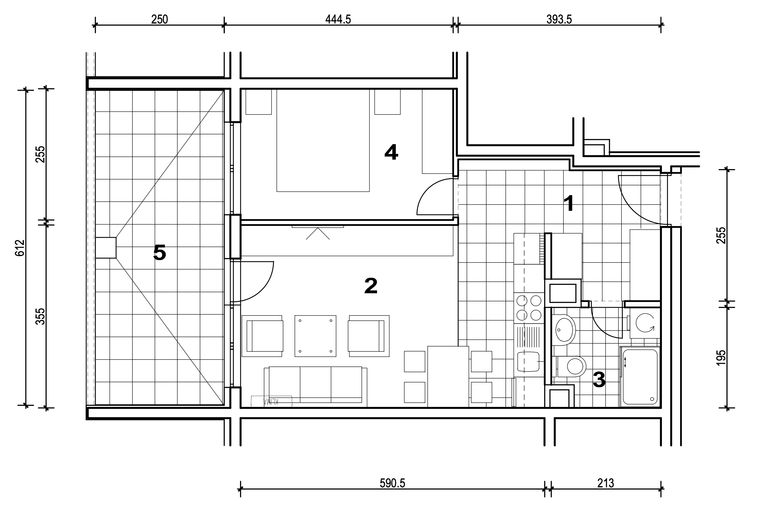
STAN M3A-23 | 2-soban | 60,57 m2 |
Kvadratura:
| Ulaz/kuhinja | 10,01 m2 |
| Dnevni boravak | 18,56 m2 |
| Kupaonica | 4,06 m2 |
| Soba | 16,09 m2 |
| Loggia 0,75×15,80 | 11,85 m2 |
| 60,57 m2 |
Tlocrt:
STAN M3A-24 | 3-soban + VP | 80,35 m2 | REZERVIRANO
Kvadratura:
| Ulaz | 9,81 m2 |
| Dnevni boravak | 25,55 m2 |
| Kupaonica | 4,14 m2 |
| Kuhinja | 6,24 m2 |
| Soba | 11,00 m2 |
| Soba | 10,25 m2 |
| Wc | 2,47 m2 |
| Loggia 0,75×14,55 | 10,91 m2 |
| 80,35 m2 | |
| VP-11 | 16,00 m2 |
| A5 spremište A5 (prizemlje) | 4,53 m2 |
Tlocrt:
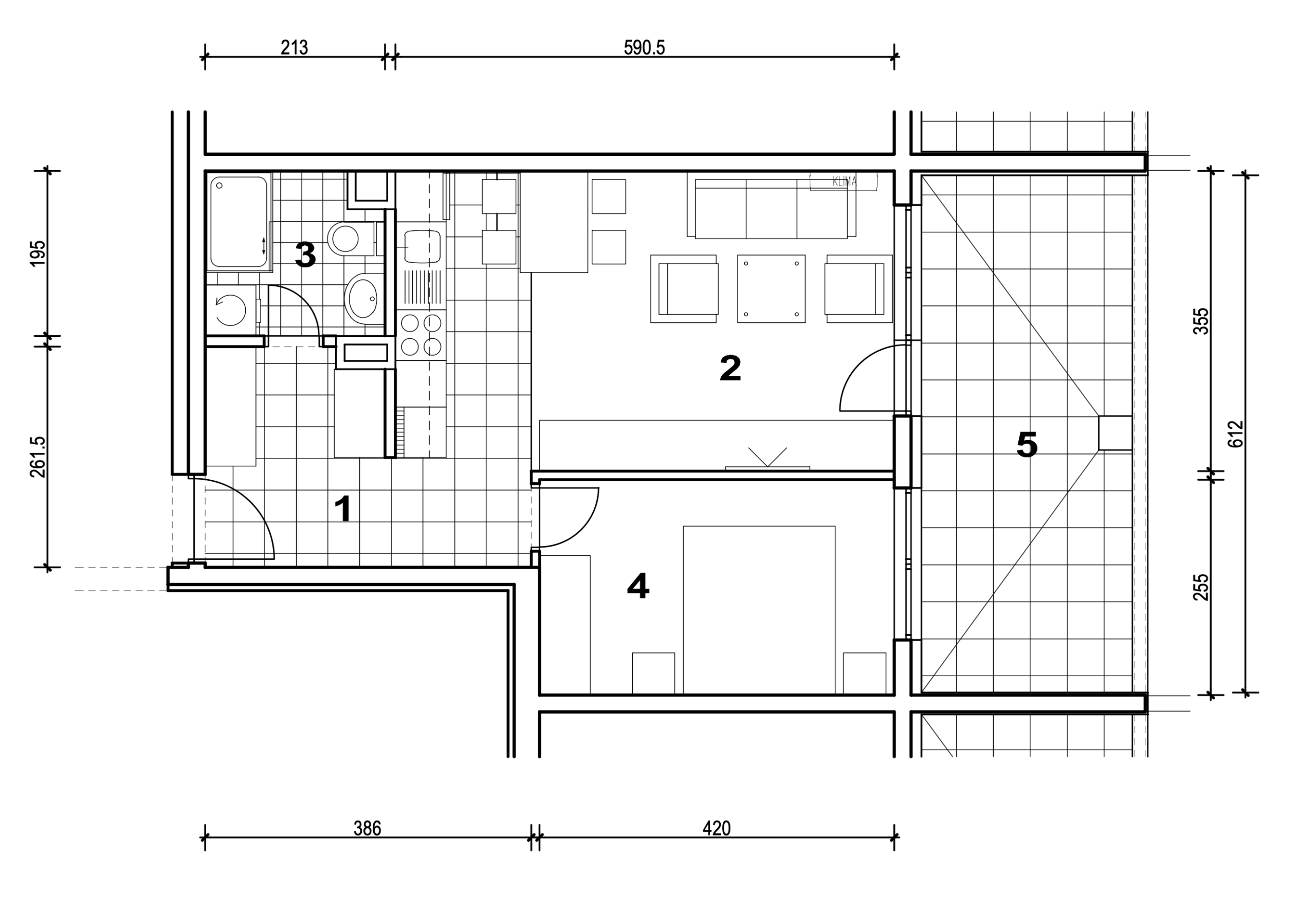
STAN M3A-25 | 2-soban | 54,47 m2 |
Kvadratura:
| Ulaz | 7,56 m2 |
| Kuhinja + dnevni boravak | 20,96 m2 |
| Kupaonica | 3,95 m2 |
| Soba | 10,52 m2 |
| Loggia 0,75×15,30 | 11,48 m2 |
| 54,47 m2 |
Tlocrt:








