Pregled stanova:
Dokumentacija:
- Rok useljenja: 31.05.2027.
- uz kupnju stana obvezna je i kupovina parkirnog mjesta
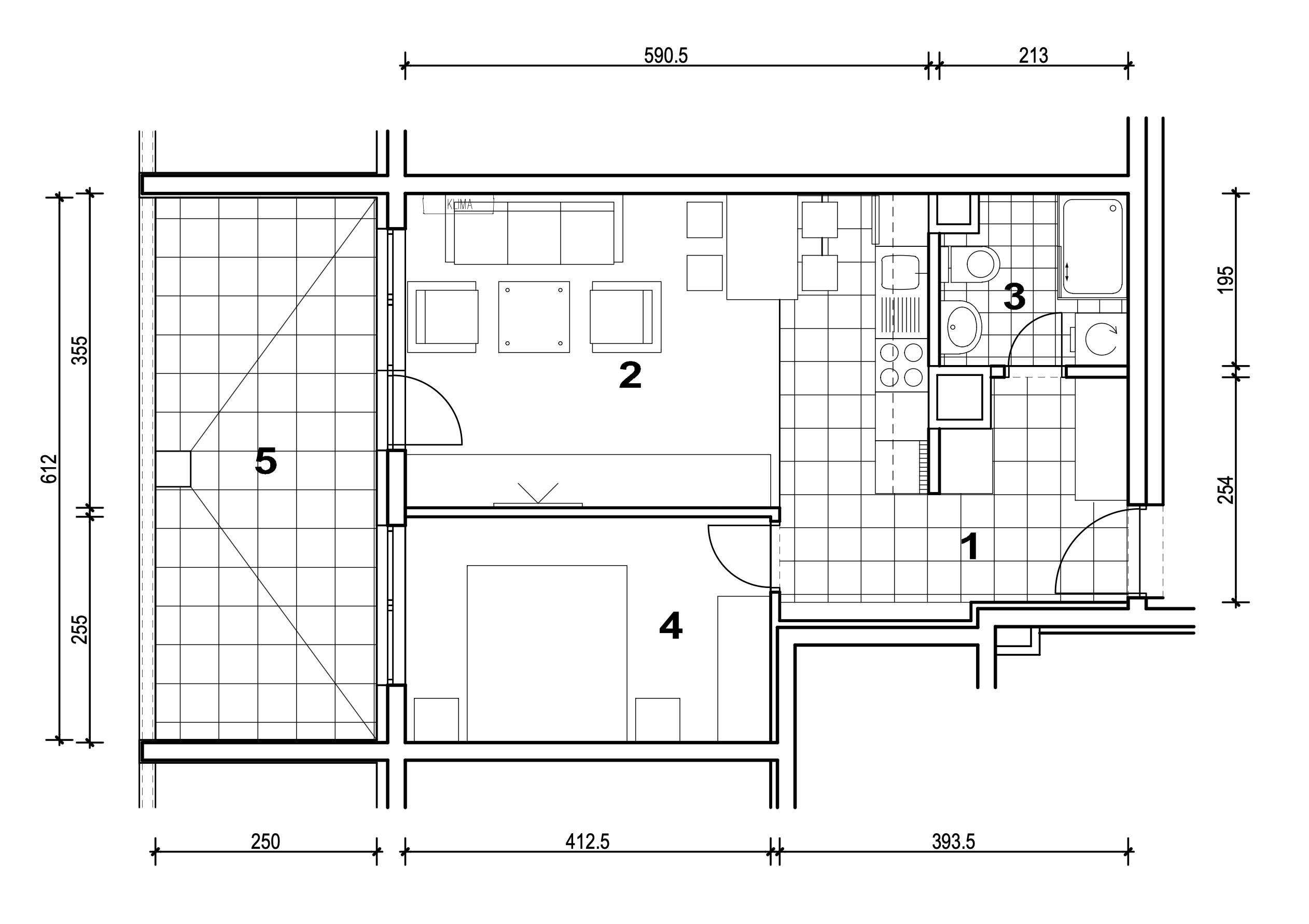
STAN M3A-62 | 2-soban | 54,38 m2 | REZERVIRANO
Kvadratura:
| Ulaz | 7,47 m2 |
| Kuhinja + dnevni boravak | 20,96 m2 |
| Kupaonica | 3,95 m2 |
| Soba | 10,52 m2 |
| Loggia 0,75×15,30 | 11,48 m2 |
| 54,38 m2 |
Tlocrt:
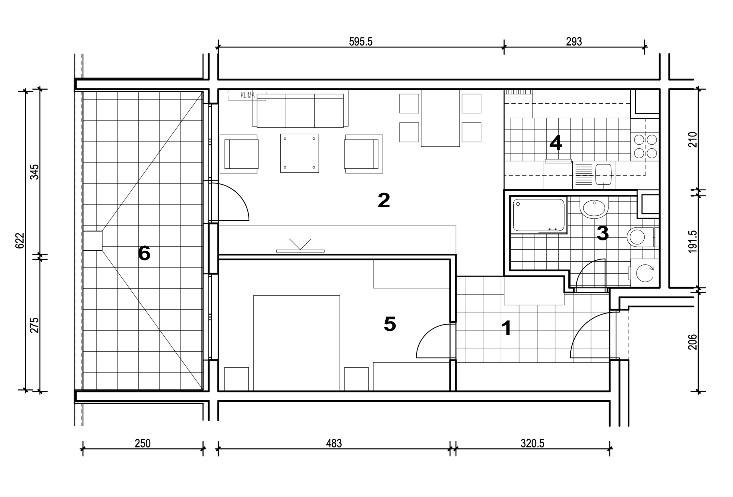
STAN M3A-63 | 2-soban | 65,05 m2 |
Kvadratura:
| Ulaz | 7,37 m2 |
| Dnevni boravak | 20,99 m2 |
| Kupaonica | 5,30 m2 |
| Kuhinja | 6,45 m2 |
| Soba | 13,28 m2 |
| Loggia 0,75×15,55 | 11,66 m2 |
| 65,05 m2 |
Tlocrt:
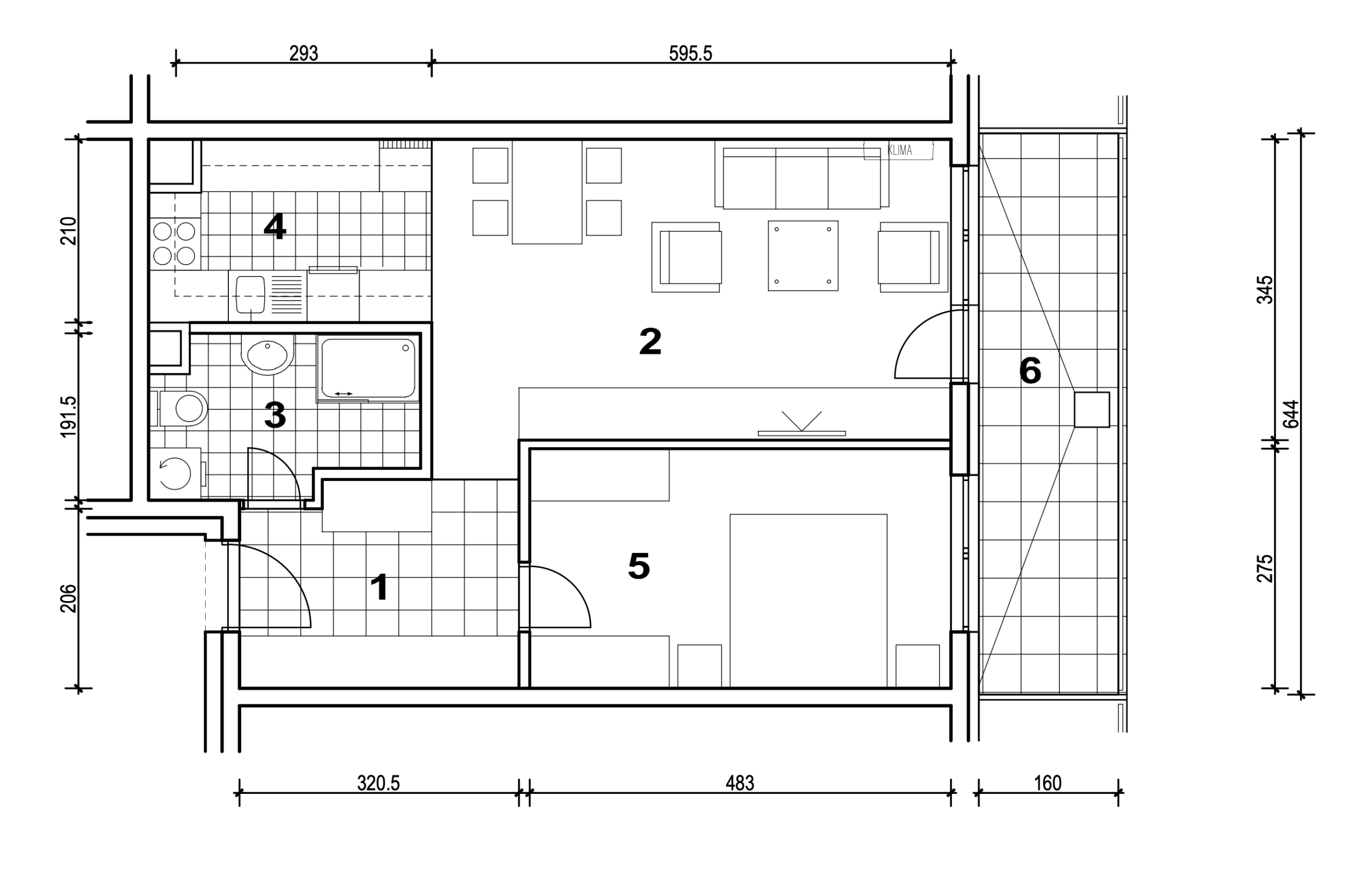
STAN M3A-64 | 2-soban | 61,12 m2 |
Kvadratura:
| Ulaz | 7,37 m2 |
| Dnevni boravak | 20,99 m2 |
| Kupaonica | 5,30 m2 |
| Kuhinja | 6,45 m2 |
| Soba | 13,28 m2 |
| Loggia 0,75×10,30 | 7,73 m2 |
| 61,12 m2 |
Tlocrt:
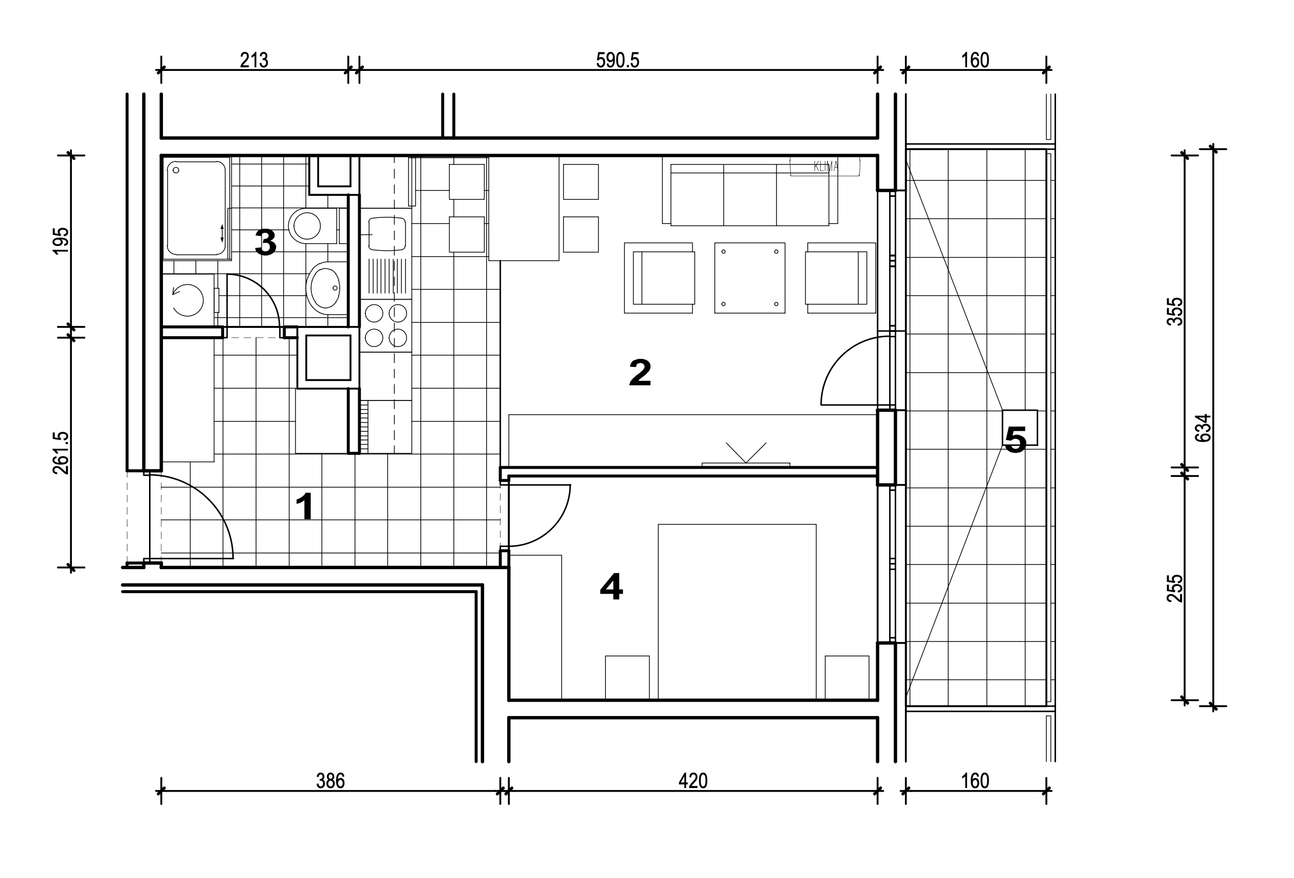
STAN M3A-65 | 2-soban | 50,46 m2 | PRODANO
Kvadratura:
| Ulaz | 7,23 m2 |
| Kuhinja + dnevni boravak | 20,96 m2 |
| Kupaonica | 3,95 m2 |
| Soba | 10,71 m2 |
| Loggia 0,75×10,14 | 7,61 m2 |
| 50,46 m2 |
Tlocrt:
STAN M3A-66 | 4-soban | 105,47 m2 | REZERVIRANO
Kvadratura:
| Ulaz | 8,68 m2 |
| Dnevni boravak | 24,56 m2 |
| Kupaonica | 4,39 m2 |
| Kuhinja | 8,21 m2 |
| Soba | 17,34 m2 |
| Soba | 12,04 m2 |
| Soba | 12,06 m2 |
| Kupaonica | 3,91 m2 |
| Loggia/balkon 0,5×10,24 | 5,12 m2 |
| Balkon 0,5×18,31 | 9,16 m2 |
| 105,47 m2 |
Tlocrt:
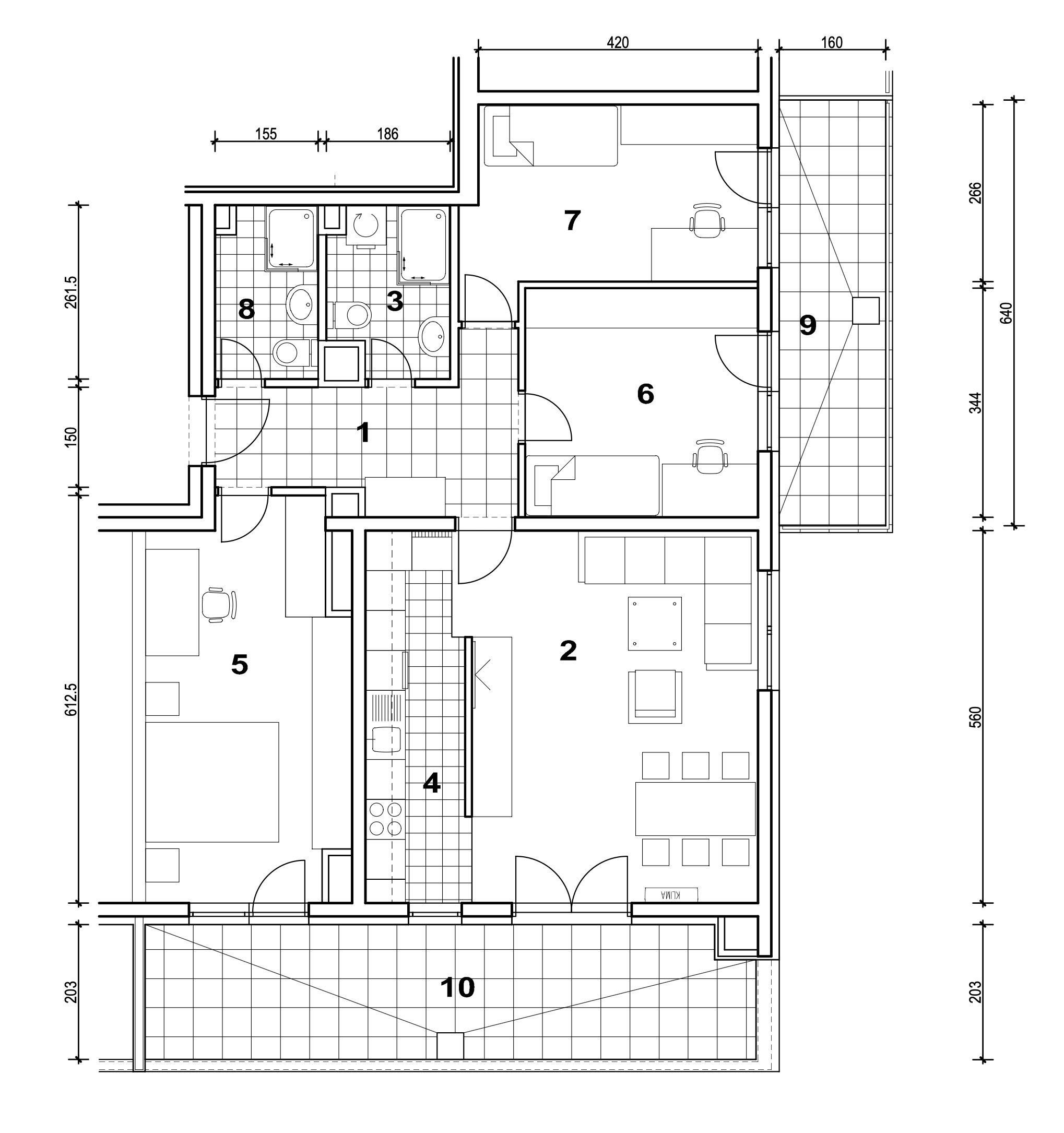
STAN M3A-67 | 4-soban | 112,09 m2 | REZERVIRANO
Kvadratura:
| Ulaz | 8,68 m2 |
| Dnevni boravak | 25,26 m2 |
| Kupaonica | 4,70 m2 |
| Kuhinja | 8,21 m2 |
| Soba | 17,29 m2 |
| Soba | 12,04 m2 |
| Soba | 11,99 m2 |
| Kupaonica | 3,91 m2 |
| Loggia 0,75×15,35 | 11,51 m2 |
| Balkon 0,5×18,31 | 9,16 m2 |
| 112,09 m2 |
Tlocrt:





