Pregled stanova:
Napomena:
- Rok useljenja: 31.05.2027.
- uz kupnju stana obvezna je i kupovina parkirnog mjesta
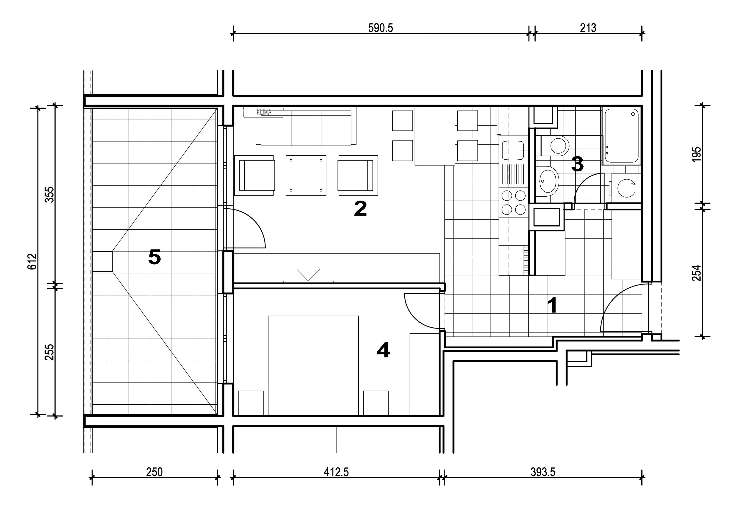
STAN M3A-44 | 2-soban | 54,47 m2 |
Kvadratura:
| Ulaz | 7,56 m2 |
| Kuhinja + dnevni boravak | 20,96 m2 |
| Kupaonica | 3,95 m2 |
| Soba | 10,52 m2 |
| Loggia 0,75×15,30 | 11,48 m2 |
| 54,47 m2 |
Tlocrt:
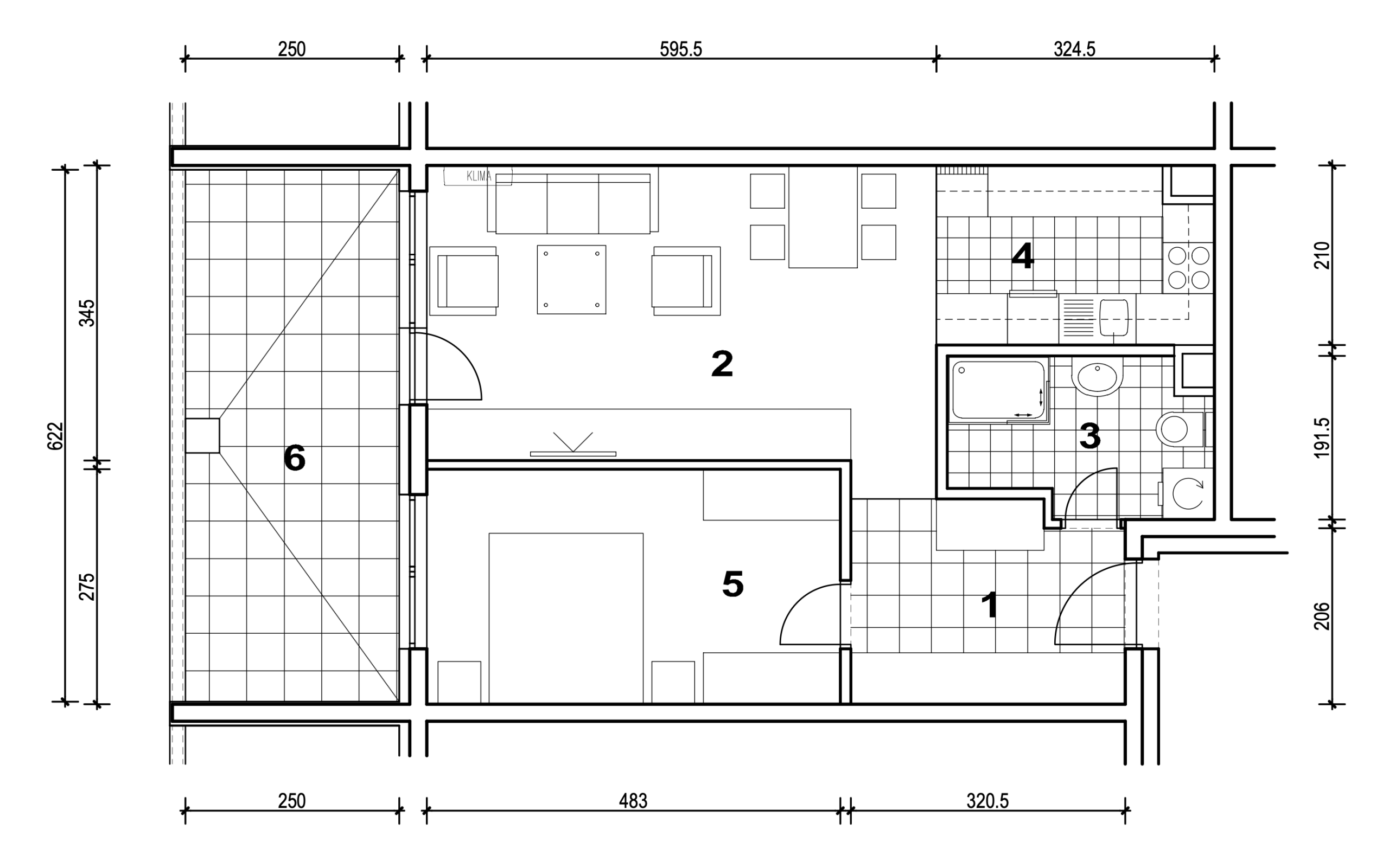
STAN M3A-45 | 2-soban | 65,14 m2 |
Kvadratura:
| Ulaz | 7,37 m2 |
| Dnevni boravak | 20,99 m2 |
| Kupaonica | 5,30 m2 |
| Kuhinja | 6,54 m2 |
| Soba | 13,28 m2 |
| Loggia 0,75×15,55 | 11,66 m2 |
| 65,14 m2 |
Tlocrt:
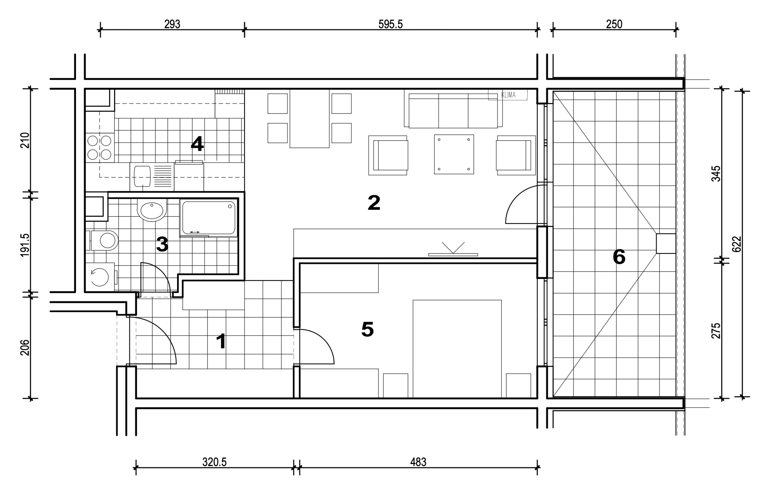
STAN M3A-46 | 2-soban | 65,14 m2 |
Kvadratura:
| Ulaz | 7,37 m2 |
| Dnevni boravak | 20,99 m2 |
| Kupaonica | 5,30 m2 |
| Kuhinja | 6,54 m2 |
| Soba | 13,28 m2 |
| Loggia 0,75×15,55 | 11,66 m2 |
| 65,14 m2 |
Tlocrt:
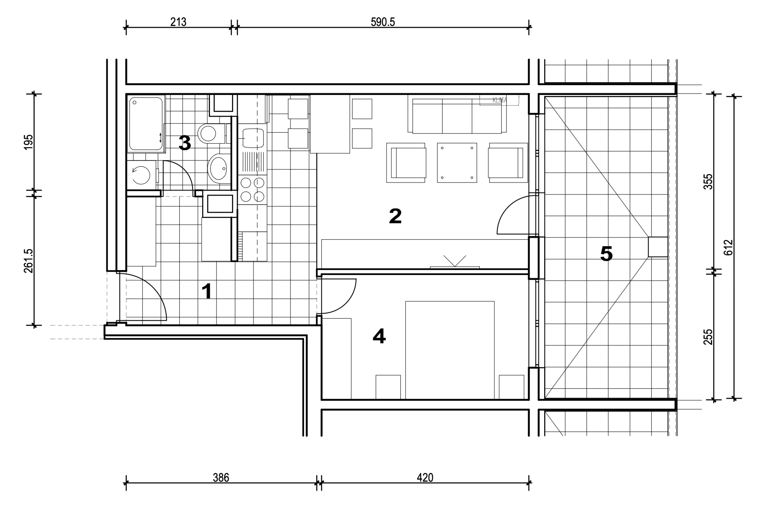
STAN M3A-47 | 2-soban | 54,42 m2 | PRODANO
Kvadratura:
| Ulaz | 7,32 m2 |
| Kuhinja + dnevni boravak | 20,96 m2 |
| Kupaonica | 3,95 m2 |
| Soba | 10,71 m2 |
| Loggia 0,75×15,30 | 11,48 m2 |
| 54,42 m2 |
Tlocrt:
STAN M3A-48 | 4-soban + VP | 119,96 m2 | REZERVIRANO
Kvadratura:
| Ulaz | 8,68 m2 |
| Dnevni boravak | 24,56 m2 |
| Kupaonica | 4,39 m2 |
| Kuhinja | 8,21 m2 |
| Soba | 17,41 m2 |
| Soba | 12,04 m2 |
| Soba | 12,06 m2 |
| Kupaonica | 3,91 m2 |
| Loggia 0,75×15,35 | 11,51 m2 |
| Balkon/terasa 0,5×19,96+0,25×28,83 | 17,19 m2 |
| 119,96 m2 | |
| VP-6 | 11,00 m2 |
Tlocrt:
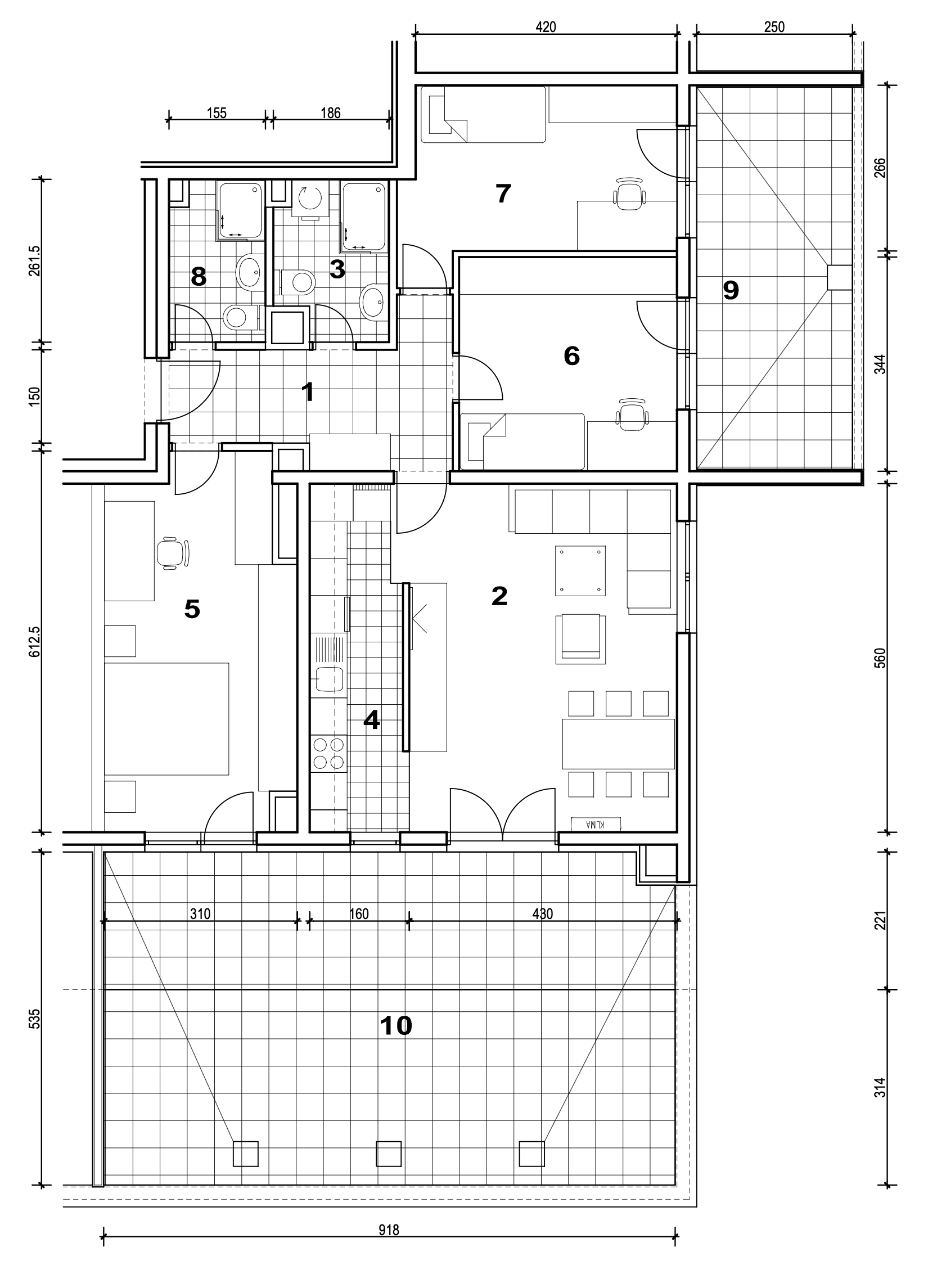
STAN M3A-49 | 4-soban + VP | 120,16 m2 | REZERVIRANO
Kvadratura:
| Ulaz | 8,68 m2 |
| Dnevni boravak | 24,56 m2 |
| Kupaonica | 4,70 m2 |
| Kuhinja | 8,21 m2 |
| Soba | 17,37 m2 |
| Soba | 12,04 m2 |
| Soba | 11,99 m2 |
| Kupaonica | 3,91 m2 |
| Loggia 0,75×15,35 | 11,51 m2 |
| Balkon/terasa 0,5×19,96+0,25×28,83 | 17,19 m2 |
| 120,16 m2 | |
| VP-5 | 11,00 m2 |
Tlocrt:





