Pregled stanova:
Dokumentacija:
- Rok useljenja: 31.05.2027.
- uz kupnju stana obvezna je i kupovina parkirnog mjesta
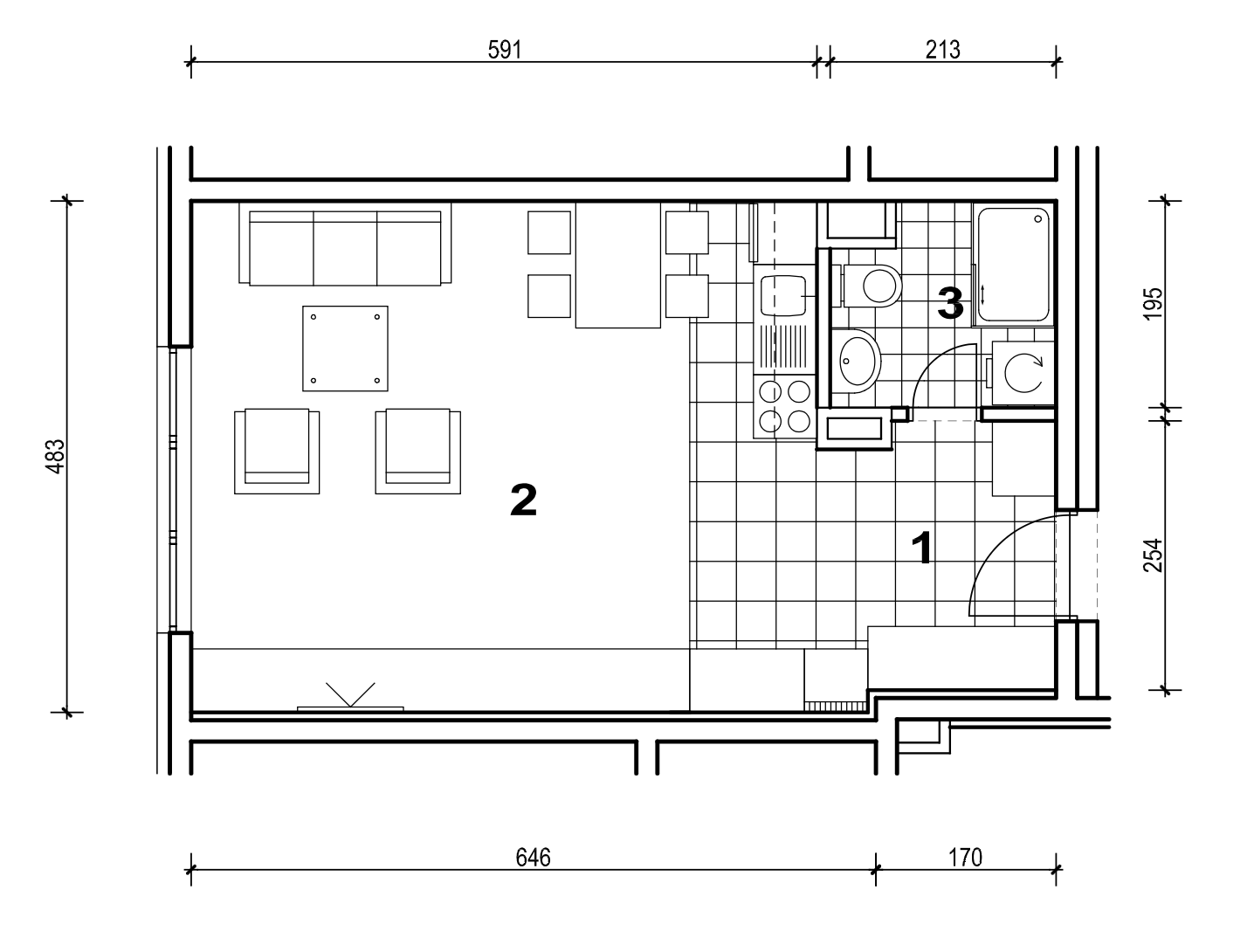
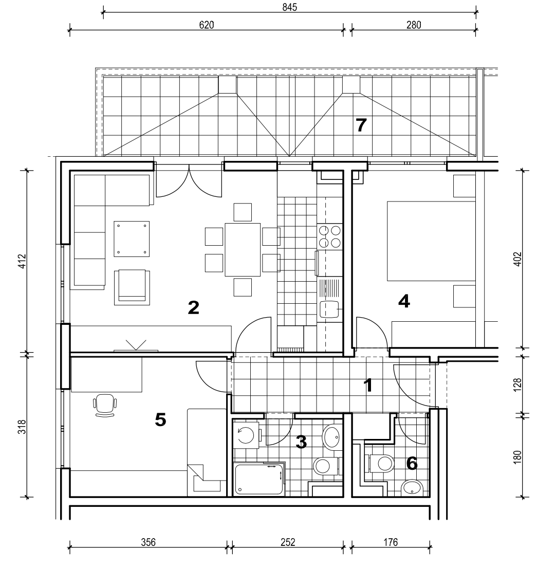
STAN M3C-1 | 1-soban | 37,91 m2 |
Kvadratura:
| Ulaz | 5,63 m2 |
| Kuhinja + dnevni boravak | 28,41 m2 |
| Kupaonica | 3,87 m2 |
| 37,91 m2 | |
Tlocrt:
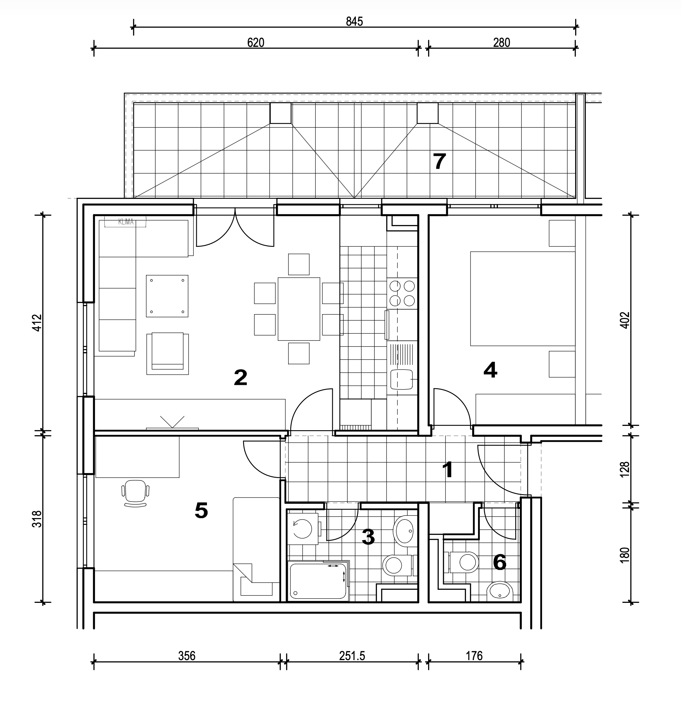
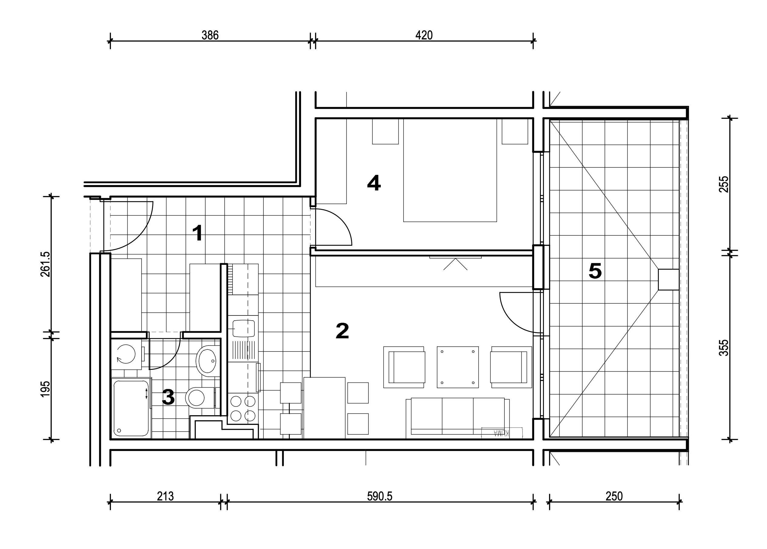
STAN M3C-2 | 3-soban | 64,34 m2 |
Kvadratura:
| Ulaz | 6,28 m2 |
| Kuhinja + dnevni boravak | 25,36 m2 |
| Kupaonica | 4,18 m2 |
| Soba | 11,26 m2 |
| Soba | 11,32 m2 |
| Wc | 2,07 m2 |
| Terasa 0,25×15,46 | 3,87 m2 |
| 64,34 m2 | |
| C1 spremište | 14,27 m2 |
Tlocrt:
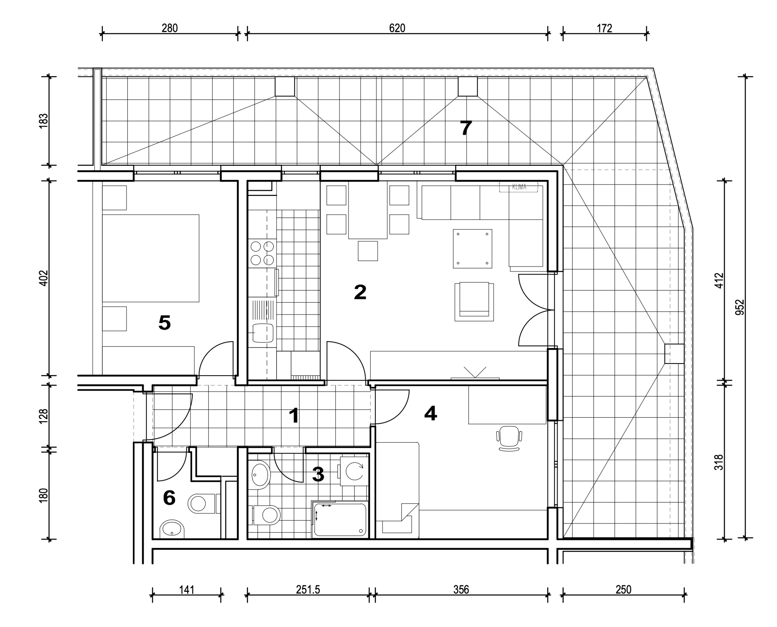
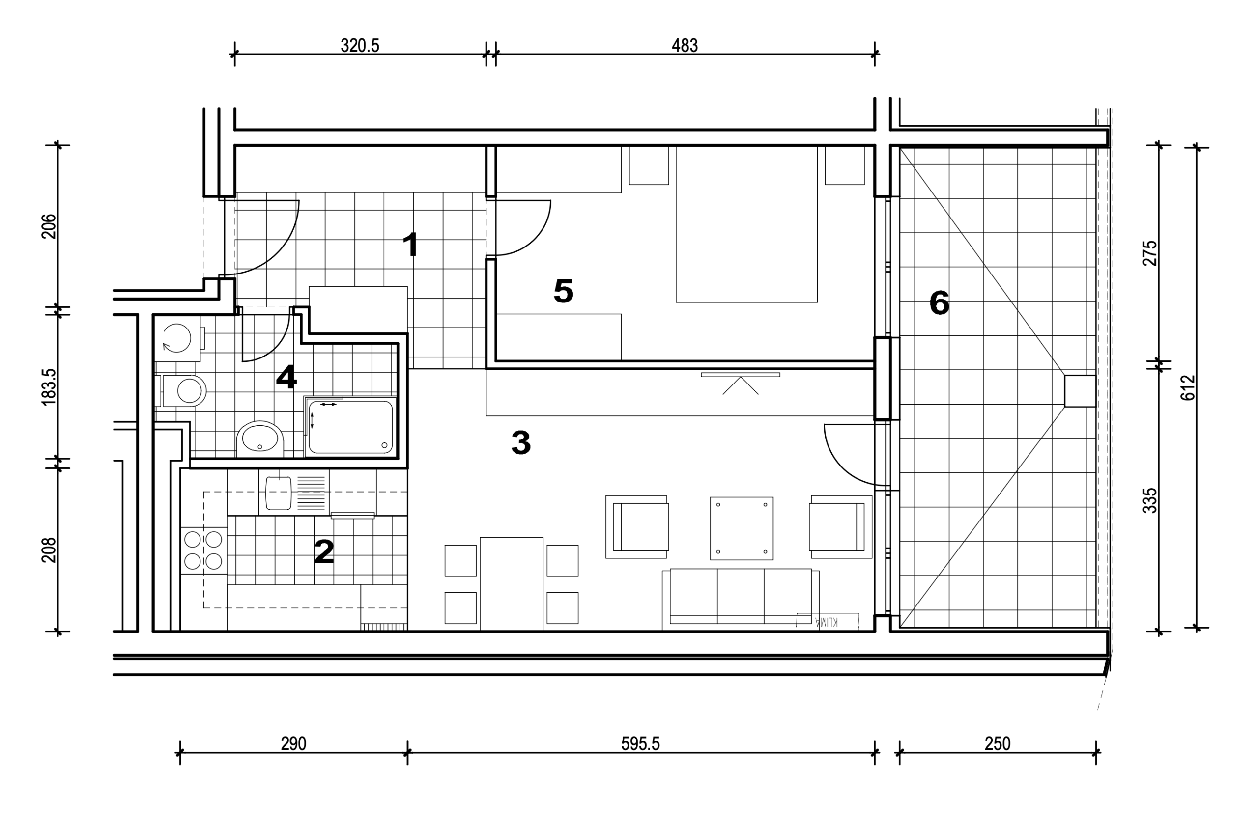
STAN M3C-3 | 3-soban | 75,06 m2 |
Kvadratura:
| Ulaz | 6,28 m2 |
| Kuhinja + dnevni boravak | 25,36 m2 |
| Kupaonica | 4,46 m2 |
| Soba | 11,26 m2 |
| Soba | 11,32 m2 |
| Wc | 2,17 m2 |
| Balkon/terasa 0,5×16,80+0,25×23,22 | 14,21 m2 |
| 75,06 m2 |
Tlocrt:
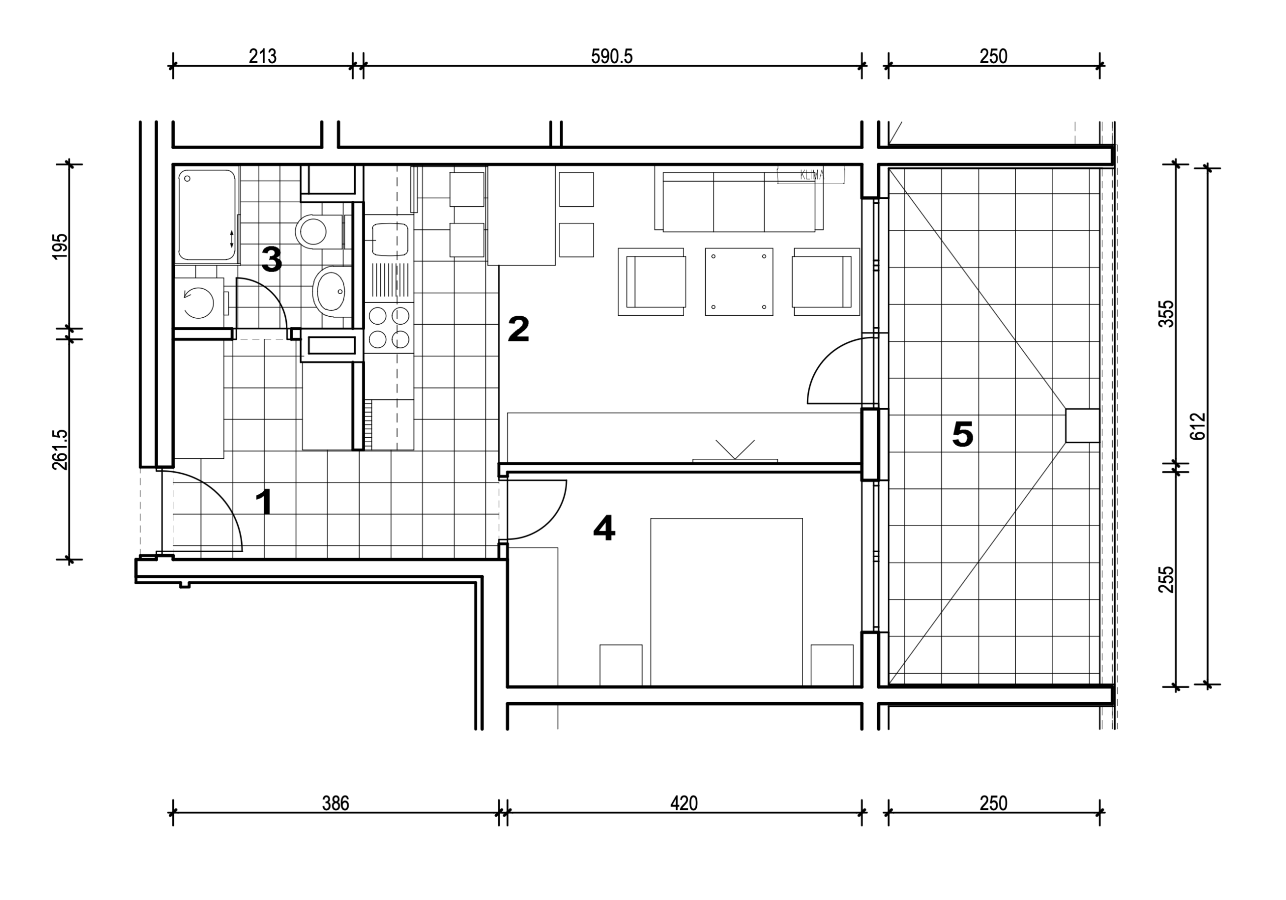
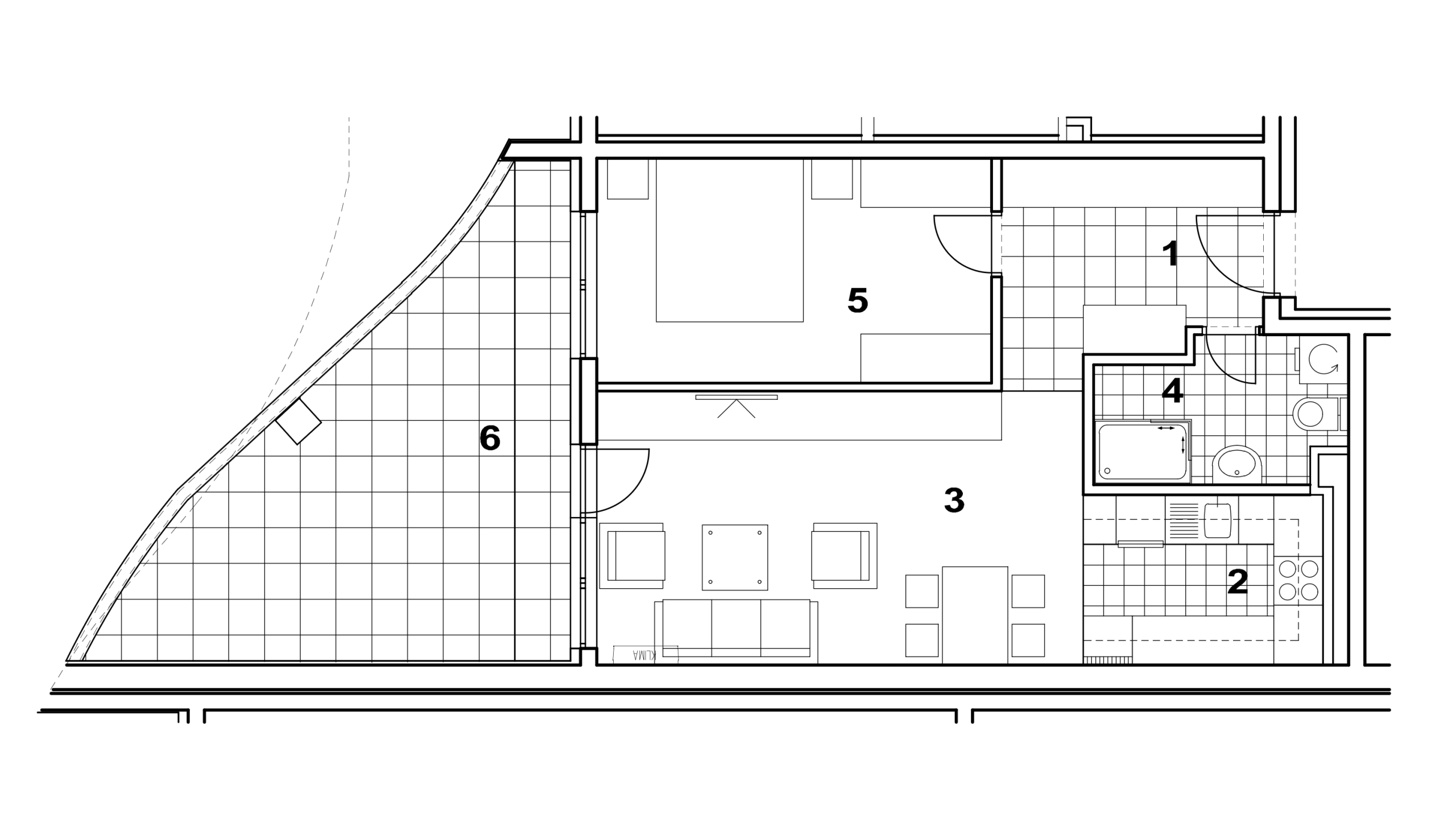
STAN M3C-4 | 2-soban | 54,41 m2 |
Kvadratura:
| Ulaz | 7,39 m2 |
| Kuhinja + dnevni boravak | 20,96 m2 |
| Kupaonica | 3,87 m2 |
| Soba | 10,71 m2 |
| Loggia 0,75×15,30 | 11,48 m2 |
| 54,41 m2 |
Tlocrt:
STAN M3C-5 | 2-soban | 54,42 m2 |
Kvadratura:
| Ulaz | 7,56 m2 |
| Kuhinja + dnevni boravak | 20,79 m2 |
| Kupaonica | 3,88 m2 |
| Soba | 10,71 m2 |
| Loggia 0,75×15,30 | 11,48 m2 |
| 54,42 m2 |
Tlocrt:
STAN M3C-6 | 2-soban | 63,62 m2 |
Kvadratura:
| Ulaz | 7,82 m2 |
| Kuhinja | 6,03 m2 |
| Dnevni boravak | 19,95 m2 |
| Kupaonica | 5,06 m2 |
| Soba | 13,28 m2 |
| Loggia 0,75×15,30 | 11,48 m2 |
| 63,62 m2 |
Tlocrt:
STAN M3C-7 | 2-soban | 63,73 m2 |
Kvadratura:
| Ulaz | 7,82 m2 |
| Kuhinja | 6,09 m2 |
| Dnevni boravak | 19,95 m2 |
| Kupaonica | 5,06 m2 |
| Soba | 13,28 m2 |
| Loggia/balkon 0,75×4,17+0,5×16,80 | 11,53 m2 |
| 63,73 m2 |
Tlocrt:






