Pregled stanova:
Napomena:
- Rok useljenja: 31.05.2027.
- uz kupnju stana obvezna je i kupovina parkirnog mjesta
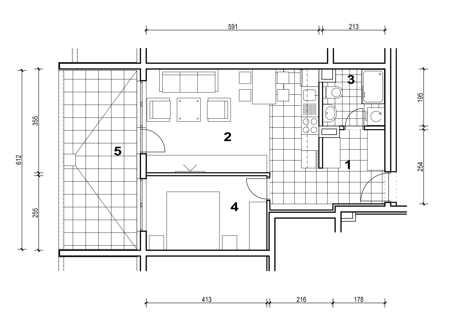
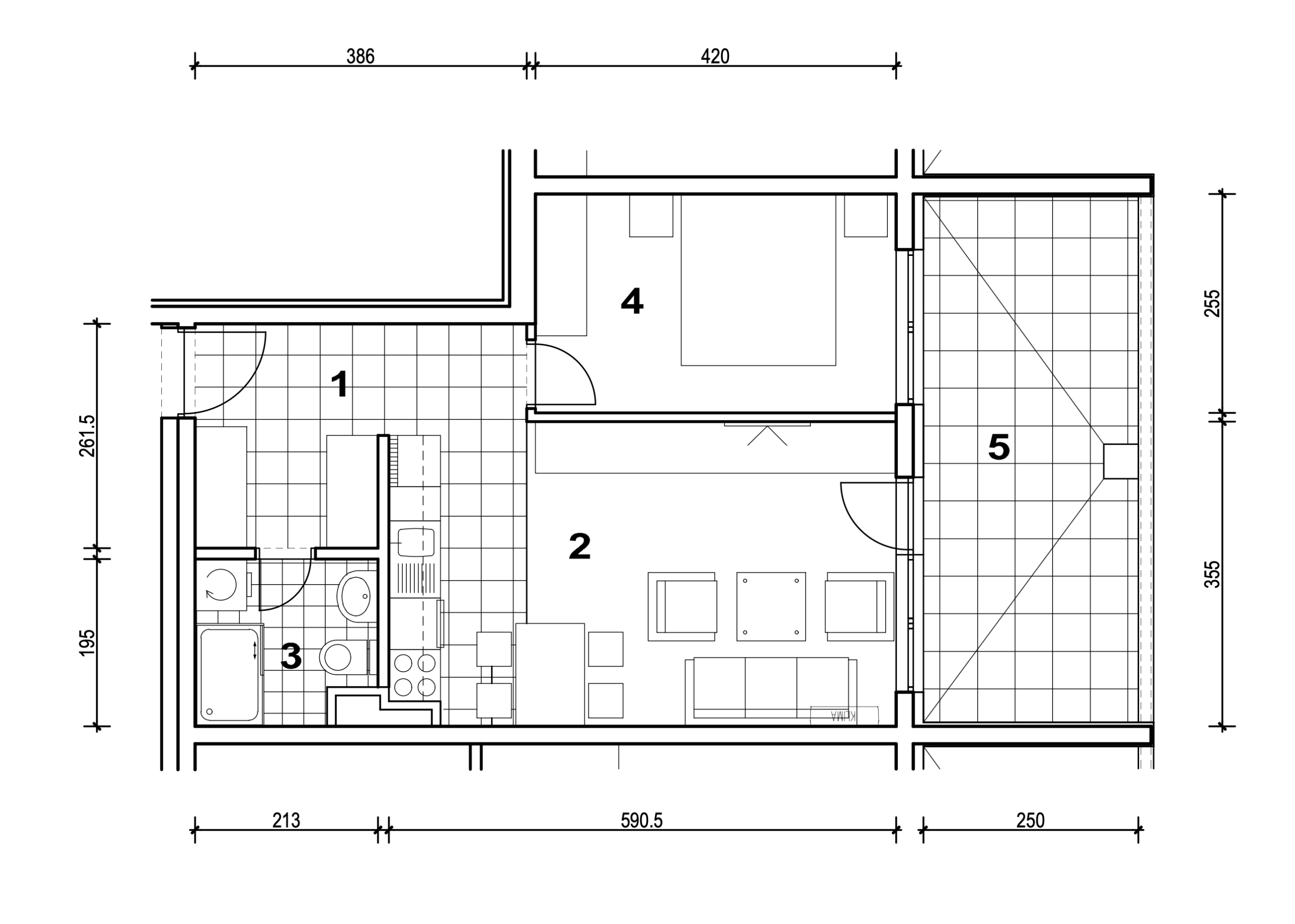
STAN M3C-16 | 2-soban | 54,56 m2 |
Kvadratura:
| Ulaz | 7,65 m2 |
| Kuhinja + dnevni boravak | 20,96 m2 |
| Kupaonica | 3,95 m2 |
| Soba | 10,52 m2 |
| Loggia 0,75×15,30 | 11,48 m2 |
| 54,56 m2 |
Tlocrt:
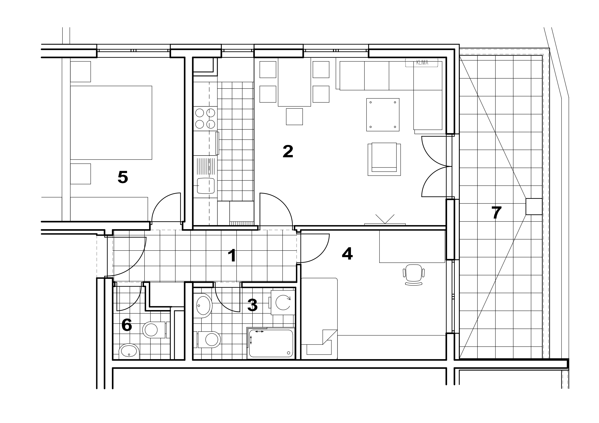
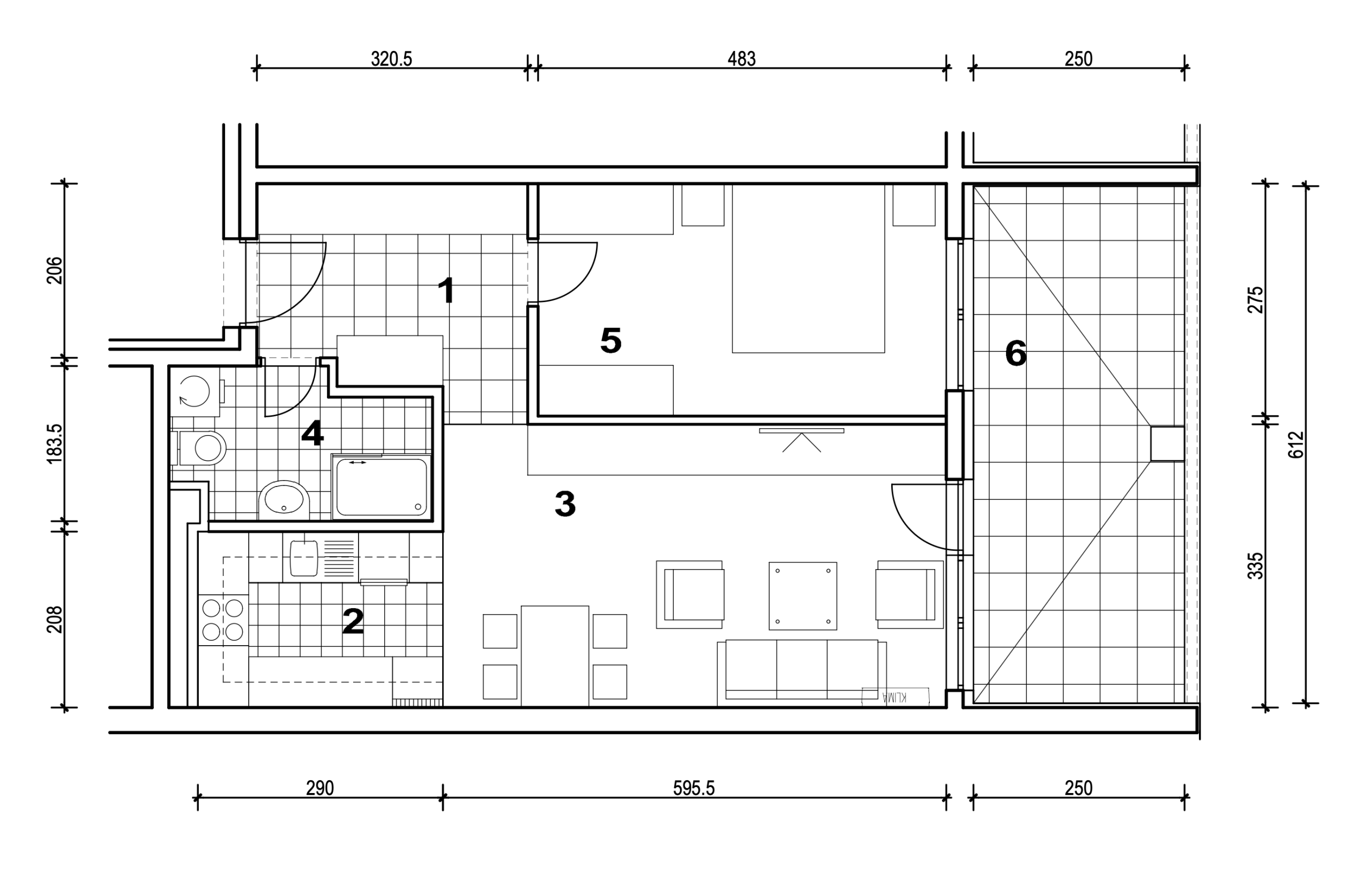
STAN M3C-17 | 3-soban | 68,15 m2 | PRODANO
Kvadratura:
| Ulaz | 6,28 m2 |
| Kuhinja + dnevni boravak | 25,27 m2 |
| Kupaonica | 4,18 m2 |
| Soba | 11,26 m2 |
| Soba | 11,32 m2 |
| Wc | 2,31 m2 |
| Balkon 0,5×15,06 | 7,53 m2 |
| 68,15 m2 |
Tlocrt:
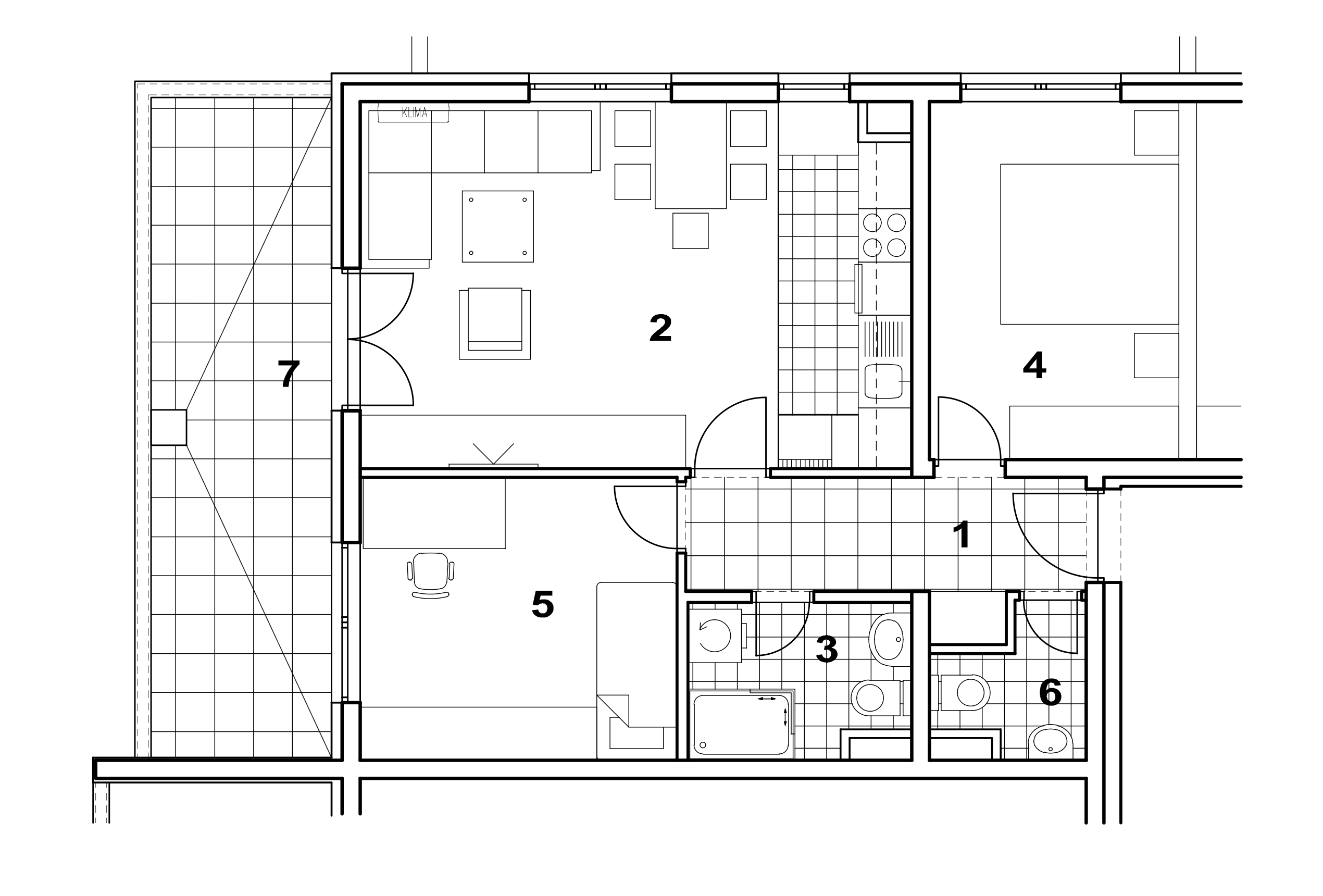
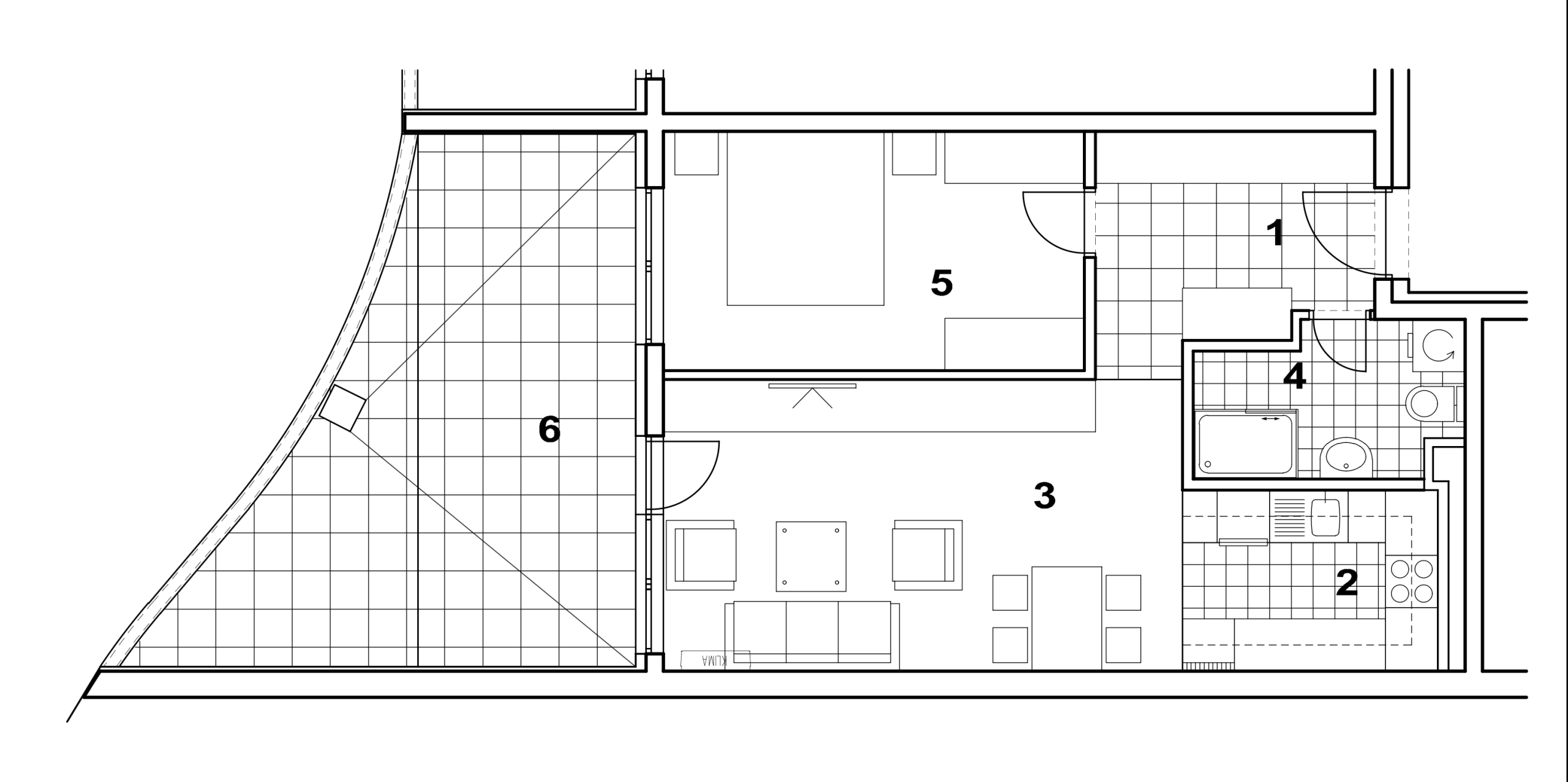
STAN M3C-18 | 3-soban | 68,29 m2 | REZERVIRANO
Kvadratura:
| Ulaz | 6,28 m2 |
| Kuhinja + dnevni boravak | 25,27 m2 |
| Kupaonica | 4,46 m2 |
| Soba | 11,26 m2 |
| Soba | 11,32 m2 |
| Wc | 2,17 m2 |
| Balkon 0,5×15,06 | 7,53 m2 |
| 68,29 m2 |
Tlocrt:
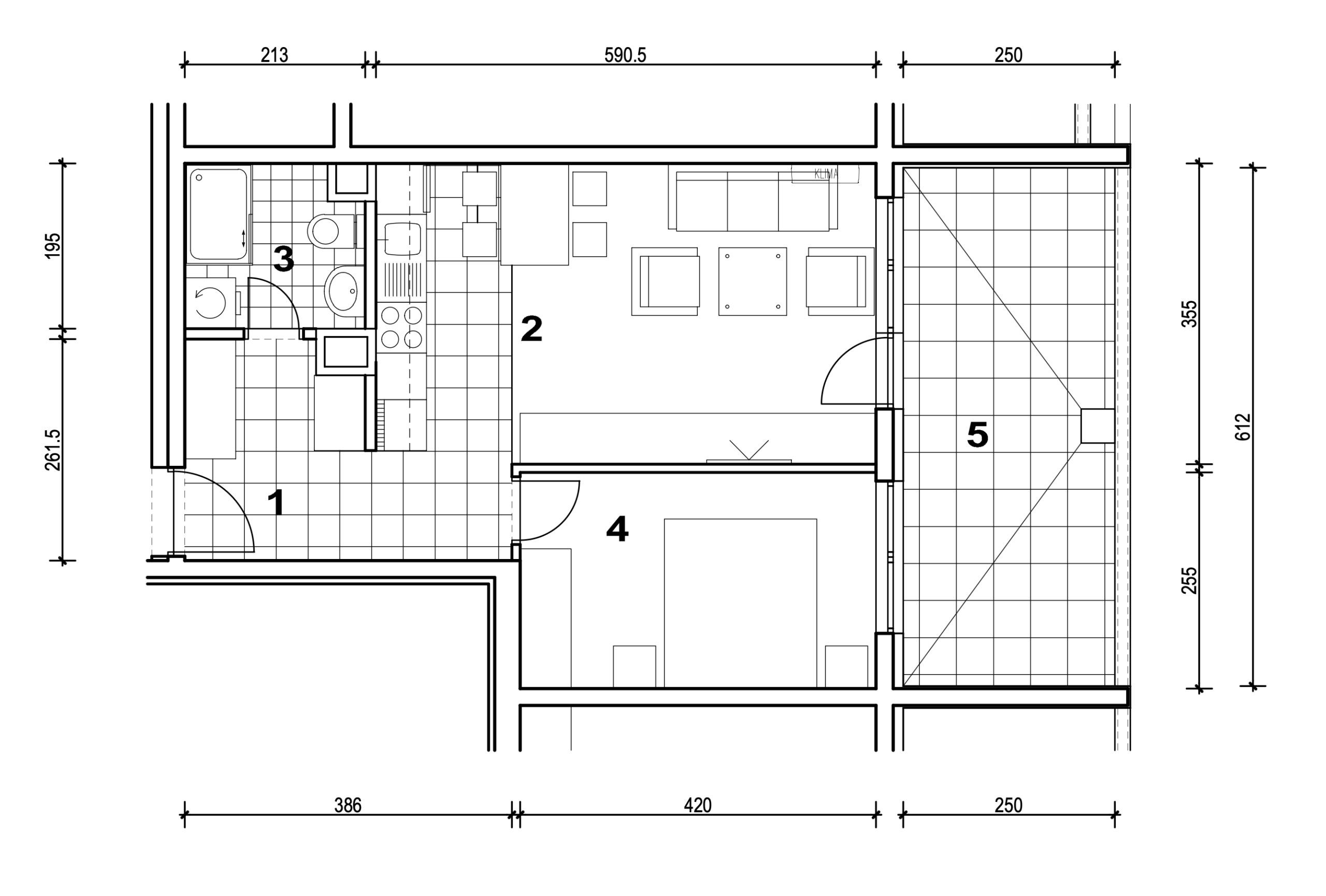
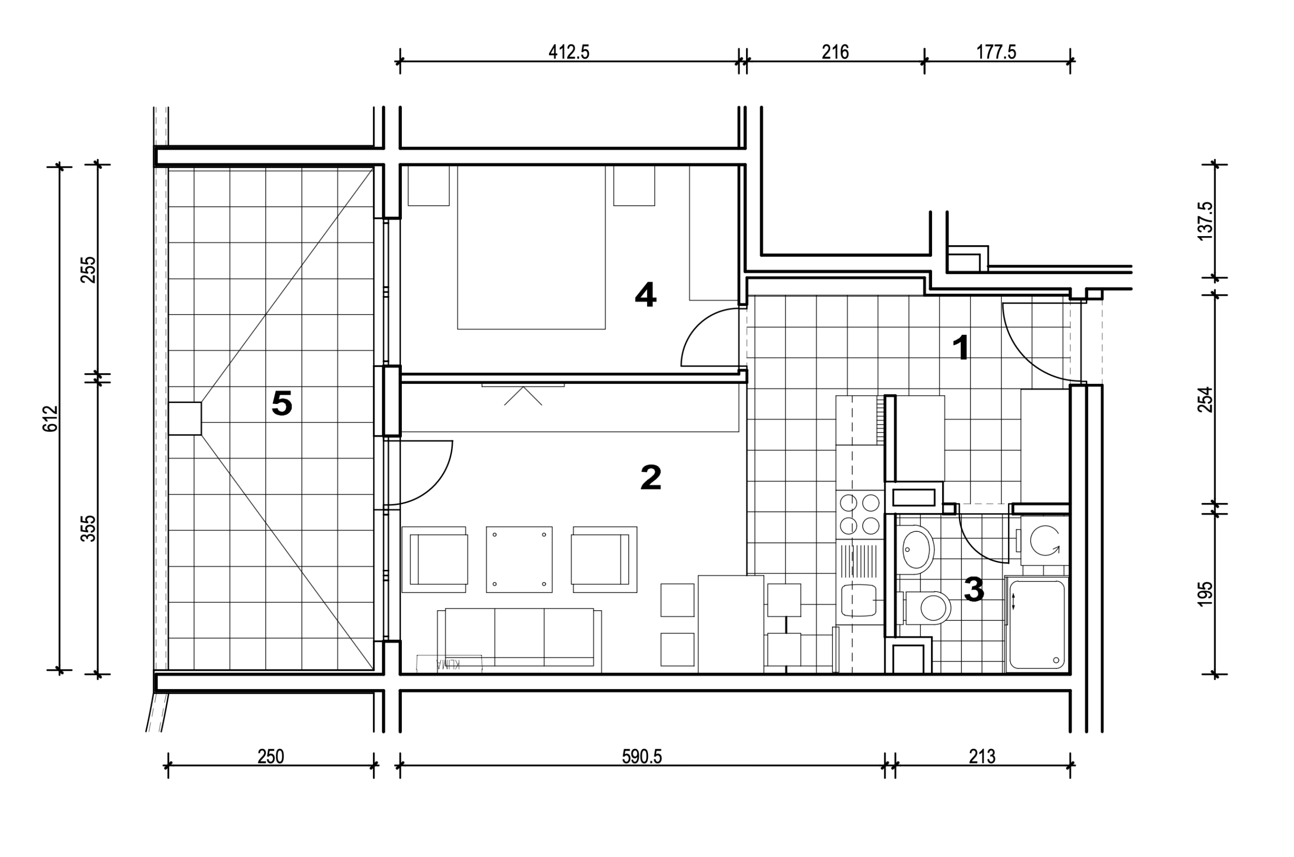
STAN M3C-19 | 2-soban | 54,42 m2 |
Kvadratura:
| Ulaz | 7,32 m2 |
| Kuhinja + dnevni boravak | 20,96 m2 |
| Kupaonica | 3,95 m2 |
| Soba | 10,71 m2 |
| Loggia 0,75×15,30 | 11,48 m2 |
| 54,42 m2 |
Tlocrt:
STAN M3C-20 | 2-soban | 54,42 m2 |
Kvadratura:
| Ulaz | 7,56 m2 |
| Kuhinja + dnevni boravak | 20,79 m2 |
| Kupaonica | 3,88 m2 |
| Soba | 10,71 m2 |
| Loggia 0,75×15,30 | 11,48 m2 |
| 54,42 m2 |
Tlocrt:
STAN M3C-21 | 2-soban | 63,62 m2 |
Kvadratura:
| Ulaz | 7,82 m2 |
| Kuhinja | 6,03 m2 |
| Dnevni boravak | 19,95 m2 |
| Kupaonica | 5,06 m2 |
| Soba | 13,28 m2 |
| Loggia 0,75×15,30 | 11,48 m2 |
| 63,62 m2 |
Tlocrt:
STAN M3C-22 | 2-soban | 67,71 m2 |
Kvadratura:
| Ulaz | 7,82 m2 |
| Kuhinja | 6,09 m2 |
| Dnevni boravak | 19,95 m2 |
| Kupaonica | 5,06 m2 |
| Soba | 13,28 m2 |
| Loggia/balkon 0,75×15,26+0,5×8,12 | 15,51 m2 |
| 67,71 m2 |
Tlocrt:
STAN M3C-23 | 2-soban | 54,56 m2 |
Kvadratura:
| Ulaz | 7,65 m2 |
| Kuhinja + dnevni boravak | 20,96 m2 |
| Kupaonica | 3,95 m2 |
| Soba | 10,52 m2 |
| Loggia 0,75×15,30 | 11,48 m2 |
| 54,56 m2 |
Tlocrt:







