Pregled stanova:
Napomena:
- Rok useljenja: 31.05.2027.
- uz kupnju stana obvezna je i kupovina parkirnog mjesta
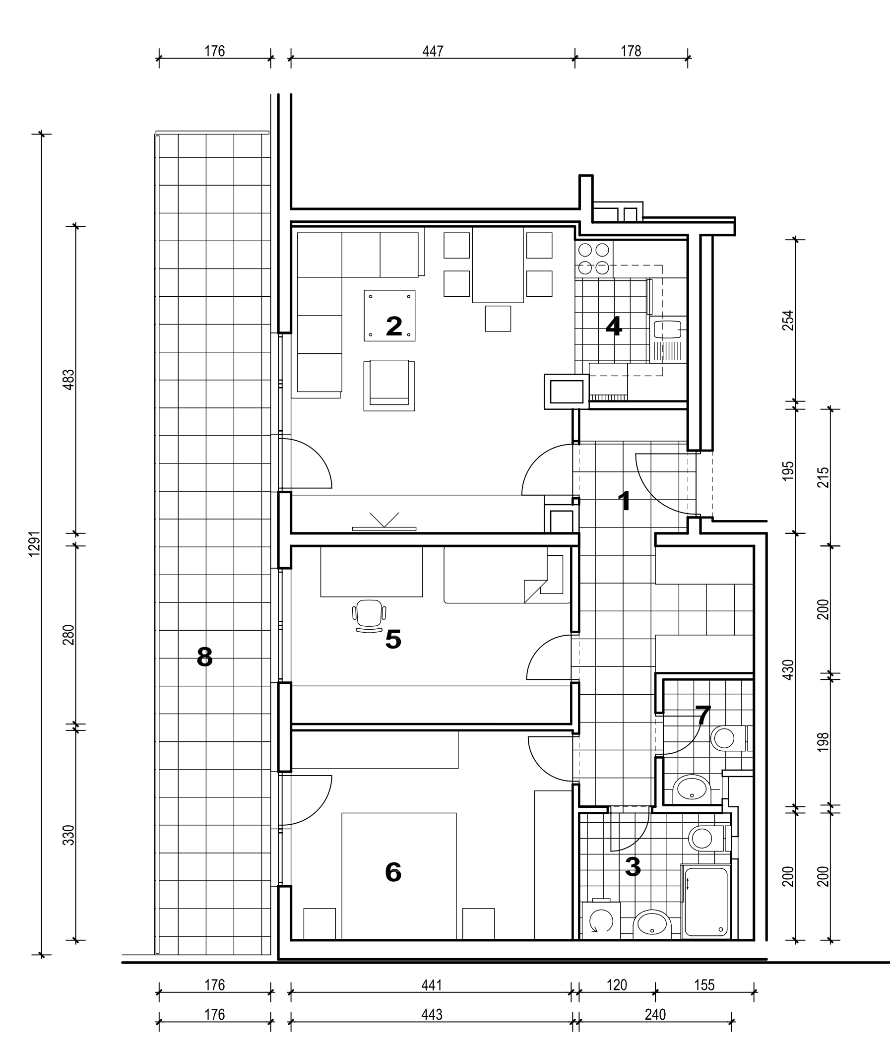
STAN M3C-44 | 4-soban | 103,46 m2 |
Kvadratura:
| Ulaz | 11,33 m2 |
| Dnevni boravak | 23,14 m2 |
| Kupaonica | 3,87 m2 |
| Kuhinja | 5,63 m2 |
| Soba | 10,20 m2 |
| Soba | 13,65 m2 |
| Soba | 12,84 m2 |
| Kupaonica | 4,21 m2 |
| Loggia 0,75×25,14 | 18,86 m2 |
| 103,46 m2 |
Tlocrt:
STAN M3C-45 | 4-soban | 104,13 m2 | REZERVIRANO
Kvadratura:
| Ulaz | 10,82 m2 |
| Dnevni boravak | 23,14 m2 |
| Kupaonica | 4,09 m2 |
| Kuhinja | 6,75 m2 |
| Soba | 10,04 m2 |
| Soba | 13,65 m2 |
| Soba | 12,84 m2 |
| Kupaonica | 4,21 m2 |
| Loggia 0,75×24,78 | 18,59m2 |
| 104,13 m2 |
Tlocrt:
STAN M3C-46 | 3-soban | 87,75 m2 | PRODANO
Kvadratura:
| Ulaz | 11,34 m2 |
| Dnevni boravak | 20,39 m2 |
| Kupaonica | 4,80 m2 |
| Kuhinja | 4,75 m2 |
| Soba | 12,33 m2 |
| Soba | 14,62 m2 |
| Wc | 2,54 m2 |
| Loggia 0,75×22,64 | 16,98 m2 |
| 87,75 m2 |
Tlocrt:
STAN M3C-47 | 3-soban | 88,29 m2 |
Kvadratura:
| Ulaz | 11,59 m2 |
| Dnevni boravak | 21,01 m2 |
| Kupaonica | 4,80 m2 |
| Kuhinja | 4,41 m2 |
| Soba | 12,33 m2 |
| Soba | 14,62 m2 |
| Wc | 2,54 m2 |
| Loggia 0,75×22,65 | 16,99 m2 |
| 88,29 m2 |
Tlocrt:



