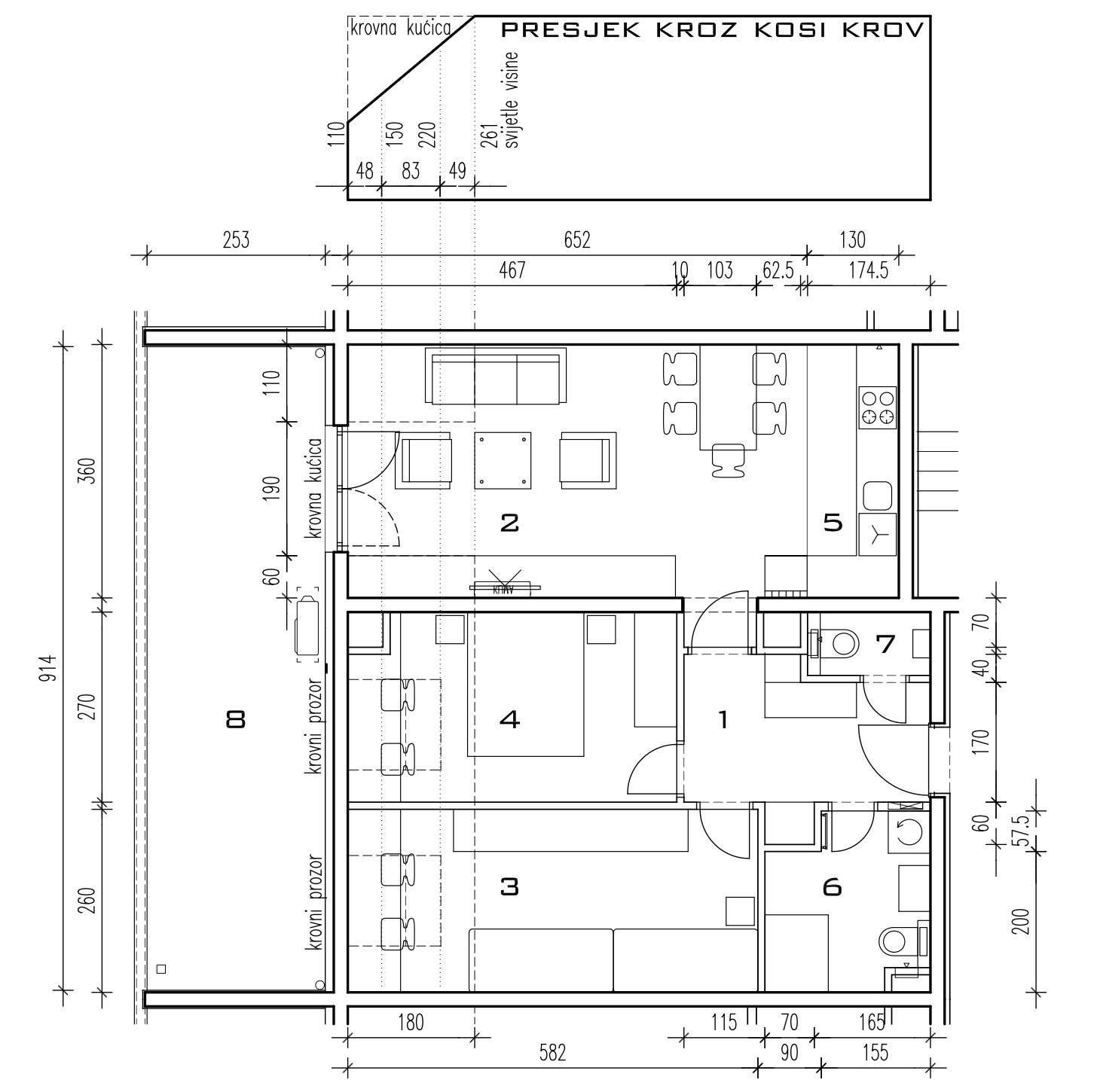
Pregled stanova:
Dokumentacija:
Napomena:
- rok završetka: 31.12.2026.
- uz kupnju stana obvezna je i kupovina parkirnog mjesta
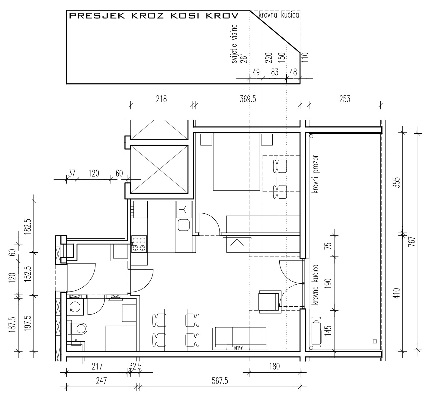
STAN M-A-92 | 2-soban | 52,66 m2 | PRODANO
Kvadratura:
| Ulaz | 5,38 m2 |
| Dnevni boravak | 20,76 m2 |
| Soba | 11,02 m2 |
| Kuhinja | 5,94 m2 |
| Kupaonica | 4,75 m2 |
| Otvorena terasa | 4,81 m2 |
| 52,66 m2 |
Tlocrt:
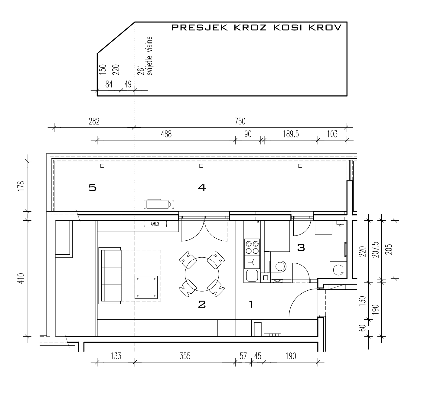
STAN M-A-93 | 1-soban | 40,18 m2 | PRODANO
Kvadratura:
| Ulaz + kuhinja | 7,26 m2 |
| Dnevni boravak | 18,95 m2 |
| Kupaonica | 6,04 m2 |
| Terasa | 6,68 m2 |
| Otvorena terasa | 1,26 m2 |
| 40,18 m2 |
Tlocrt:
STAN M-A-94 | 1-soban | 40,18 m2 | PRODANO
Kvadratura:
| Ulaz + kuhinja | 7,26 m2 |
| Dnevni boravak | 18,95 m2 |
| Kupaonica | 6,04 m2 |
| Terasa | 6,68 m2 |
| Otvorena terasa | 1,26 m2 |
| 40,18 m2 |
Tlocrt:
STAN M-A-95 | 2-soban | 50,72 m2 | PRODANO
Kvadratura:
| Ulaz | 5,43 m2 |
| Dnevni boravak | 19,18 m2 |
| Soba | 12,50 m2 |
| Kuhinja | 5,33 m2 |
| Kupaonica | 4,40 m2 |
| Otvorena terasa | 3,88 m2 |
| 50,72 m2 |
Tlocrt:
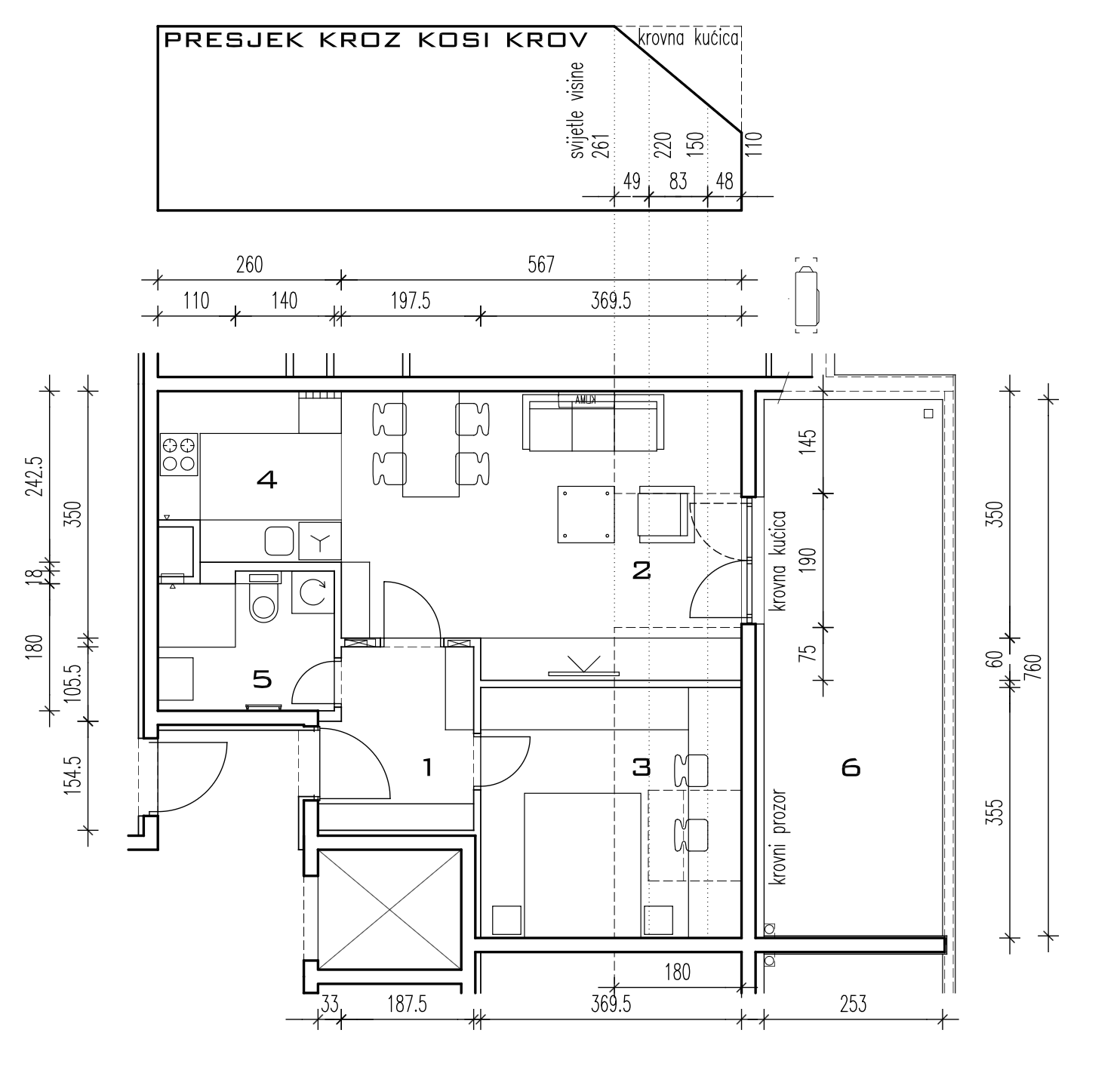
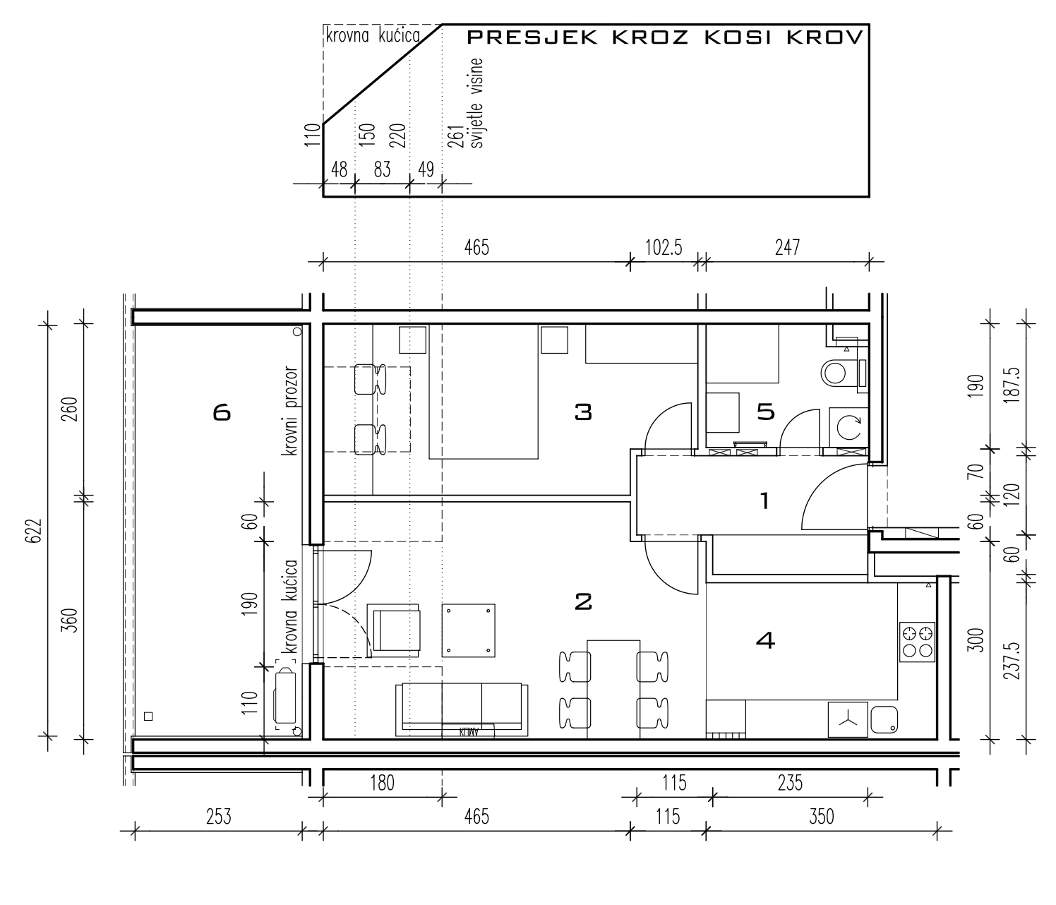
STAN M-A-96 | 3-soban | 71,89 m2 | PRODANO
Kvadratura:
| Ulaz | 7,03 m2 |
| Dnevni boravak | 23,17 m2 |
| Soba 1 | 13,59 m2 |
| Soba 2 | 10,87 m2 |
| Kuhinja | 4,68 m2 |
| Kupaonica | 5,36 m2 |
| WC | 1,41 m2 |
| Otvorena terasa | 5,78 m2 |
| 71,89 m2 |
Tlocrt:
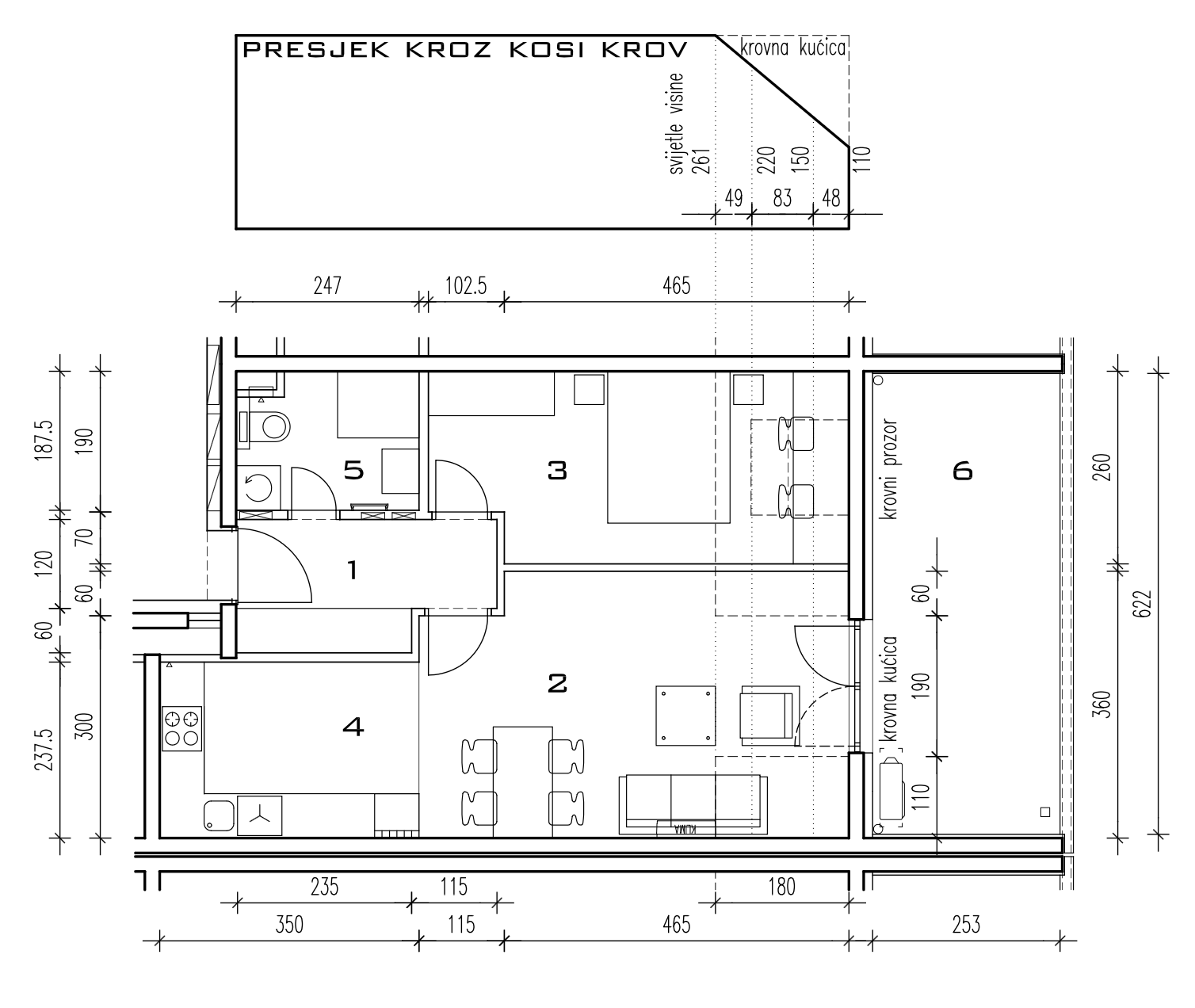
STAN M-A-97 | 2-soban | 51,18 m2 | PRODANO
Kvadratura:
| Ulaz | 5,65 m2 |
| Dnevni boravak | 19,18 m2 |
| Soba | 12,50 m2 |
| Kuhinja | 5,51 m2 |
| Kupaonica | 4,40 m2 |
| Otvorena terasa | 3,94 m2 |
| 51,18 m2 |
Tlocrt:
STAN M-A-98 | 2-soban | 51,18 m2 | PRODANO
Kvadratura:
| Ulaz | 5,65 m2 |
| Dnevni boravak | 19,18 m2 |
| Soba | 12,50 m2 |
| Kuhinja | 5,51 m2 |
| Kupaonica | 4,40 m2 |
| Otvorena terasa | 3,94 m2 |
| 51,18 m2 |
Tlocrt:
STAN M-A-99 | 2-soban | 53,96 m2 | PRODANO
Kvadratura:
| Ulaz | 5,63 m2 |
| Dnevni boravak | 19,18 m2 |
| Soba | 12,50 m2 |
| Kuhinja | 8,31 m2 |
| Kupaonica | 4,40 m2 |
| Otvorena terasa | 3,94 m2 |
| 53,96 m2 |
Tlocrt:
STAN M-A-100 | 2-soban | 53,98 m2 | PRODANO
Kvadratura:
| Ulaz | 5,65 m2 |
| Dnevni boravak | 19,18 m2 |
| Soba | 12,50 m2 |
| Kuhinja | 8,31 m2 |
| Kupaonica | 4,40 m2 |
| Otvorena terasa | 3,94 m2 |
| 53,98 m2 |
Tlocrt:
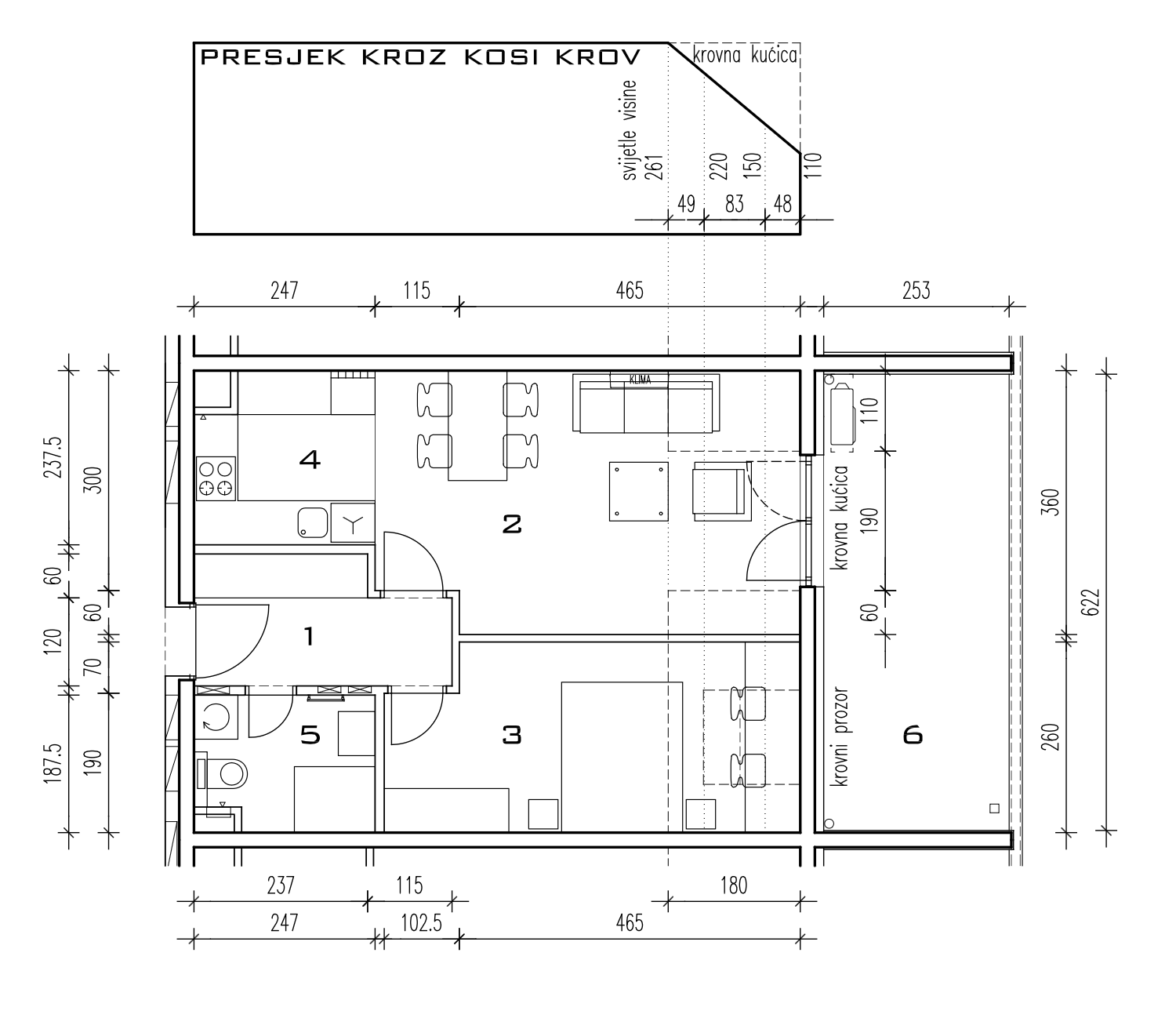
STAN M-A-101 | 2-soban | 51,18 m2 | PRODANO
Kvadratura:
| Ulaz | 5,65 m2 |
| Dnevni boravak | 19,18 m2 |
| Soba | 12,50 m2 |
| Kuhinja | 5,51 m2 |
| Kupaonica | 4,40 m2 |
| Otvorena terasa | 3,94 m2 |
| 51,18 m2 |
Tlocrt:
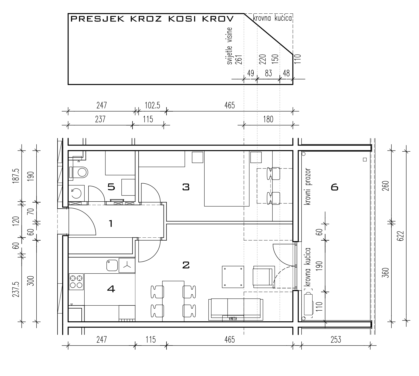
STAN M-A-102 | 2-soban | 51,18 m2 | PRODANO
Kvadratura:
| Ulaz | 5,65 m2 |
| Dnevni boravak | 19,18 m2 |
| Soba | 12,50 m2 |
| Kuhinja | 5,51 m2 |
| Kupaonica | 4,40 m2 |
| Otvorena terasa | 3,94 m2 |
| 51,18 m2 |
Tlocrt:
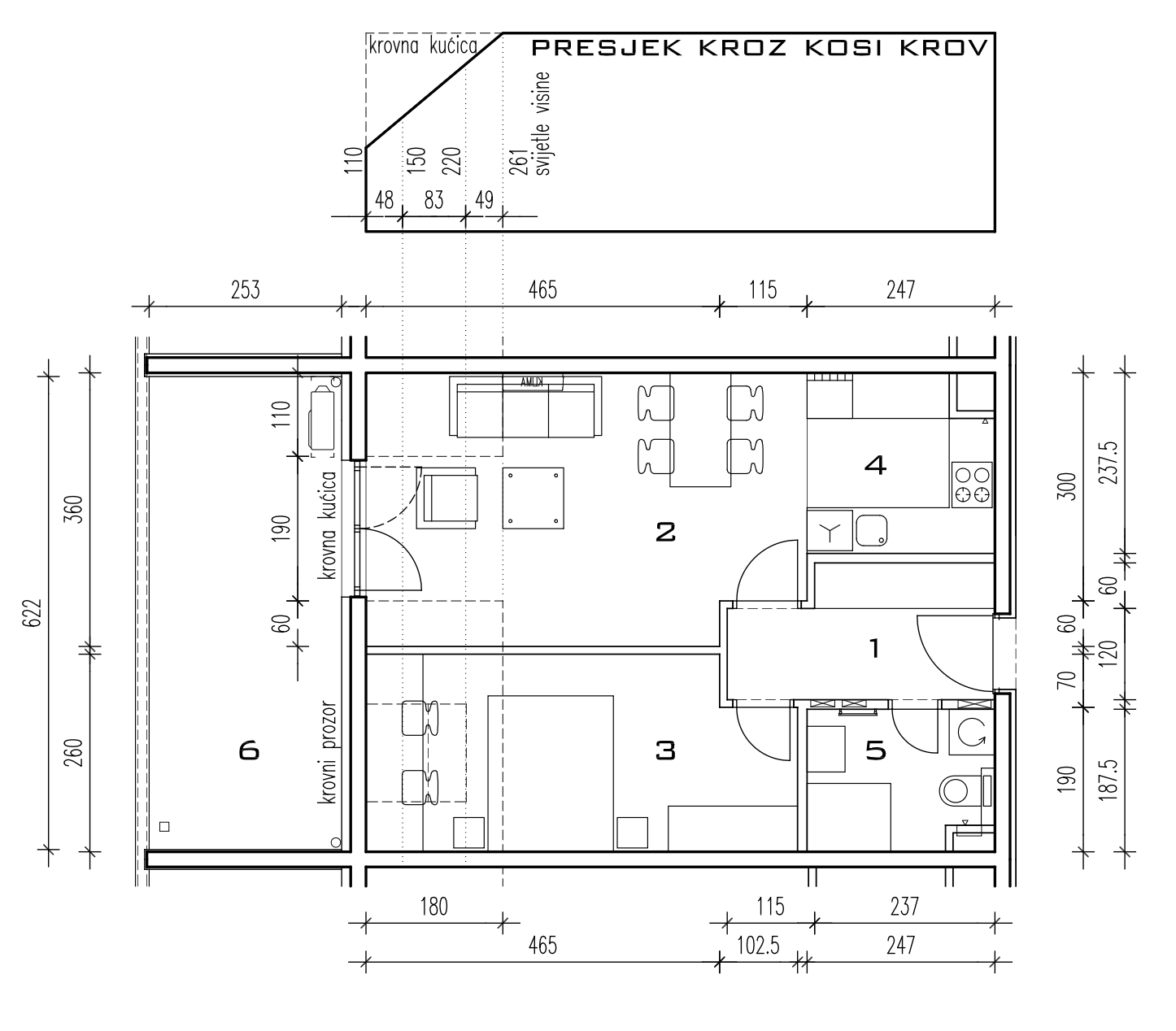
STAN M-A-103 | 2-soban | 48,86 m2 | PRODANO
Kvadratura:
| Ulaz | 3,33 m2 |
| Dnevni boravak | 21,28 m2 |
| Soba | 11,02 m2 |
| Kuhinja | 3,98 m2 |
| Kupaonica | 4,40 m2 |
| Otvorena terasa | 4,85 m2 |
| 48,86 m2 |
Tlocrt:











