Pregled stanova:
Dokumentacija:
Napomena:
- rok završetka: 31.12.2026.
- uz kupnju stana obvezna je i kupovina parkirnog mjesta
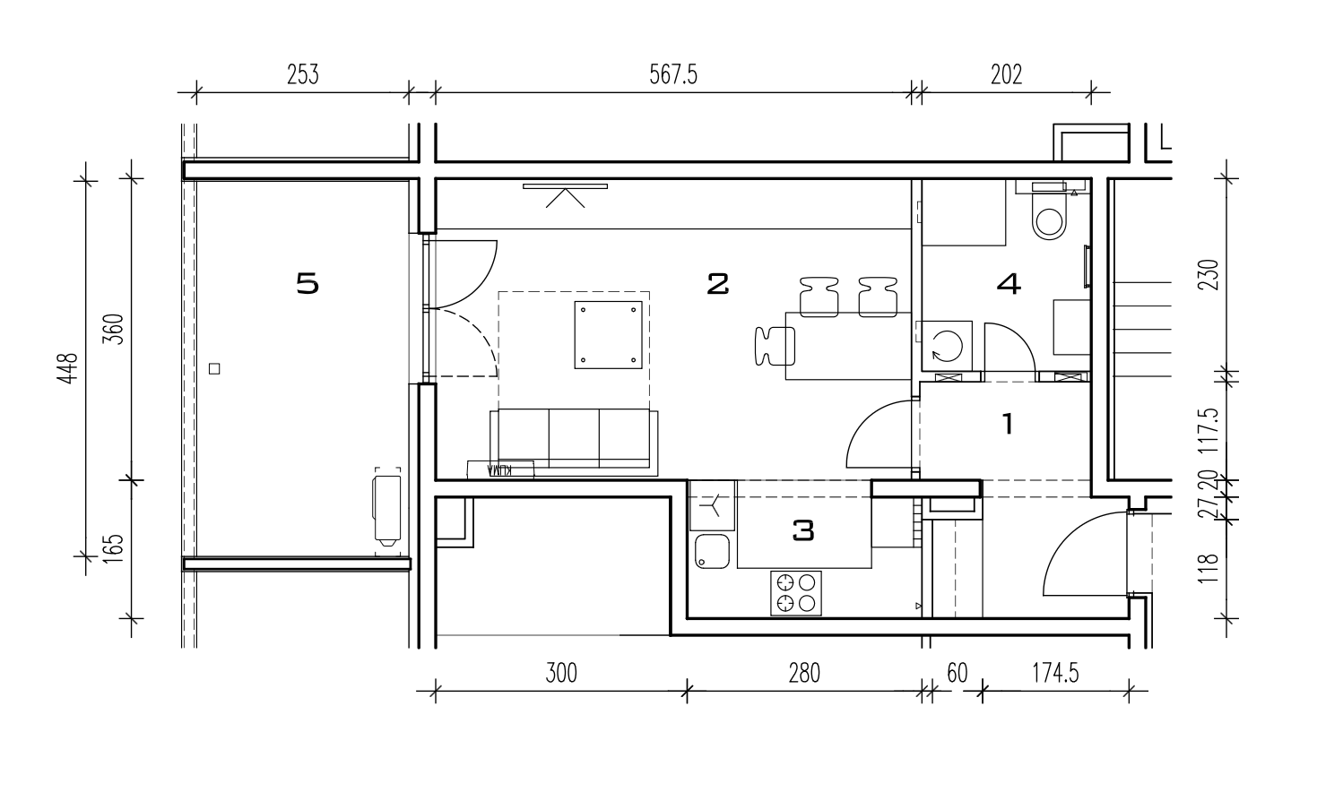
STAN M-A-27 | 2-soban | 65,77 m2 | PRODANO
Kvadratura:
| Ulaz | 5,38 m2 |
| Dnevni boravak | 22,06 m2 |
| Soba | 13,12 m2 |
| Kuhinja | 6,04 m2 |
| Kupaonica | 4,75 m2 |
| Loggia | 14,42 m2 |
| 65,77 m2 |
Tlocrt:
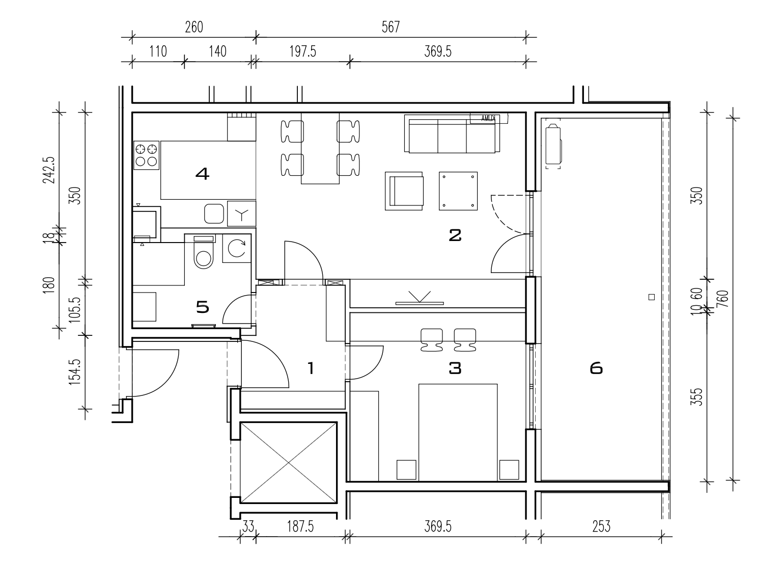
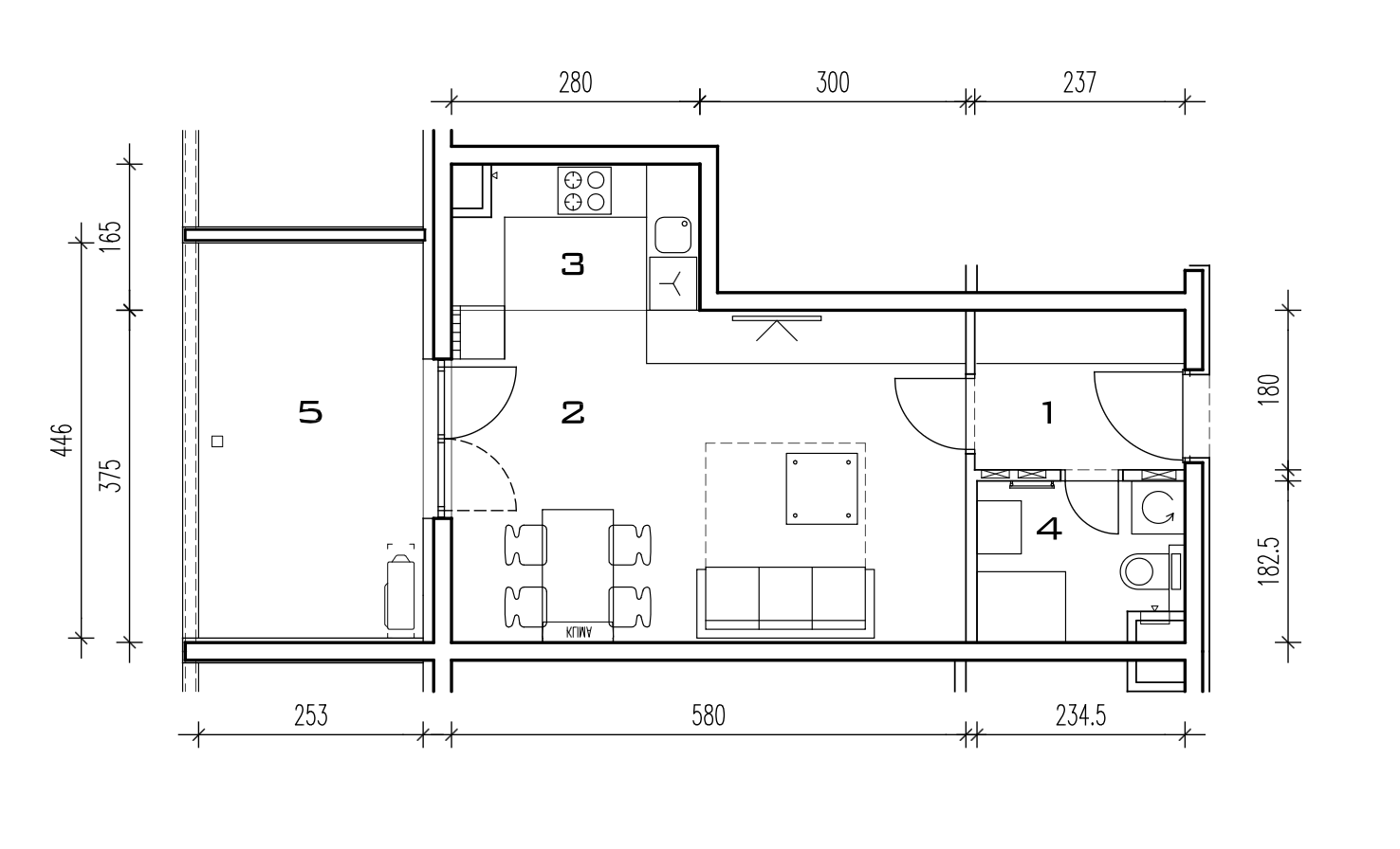
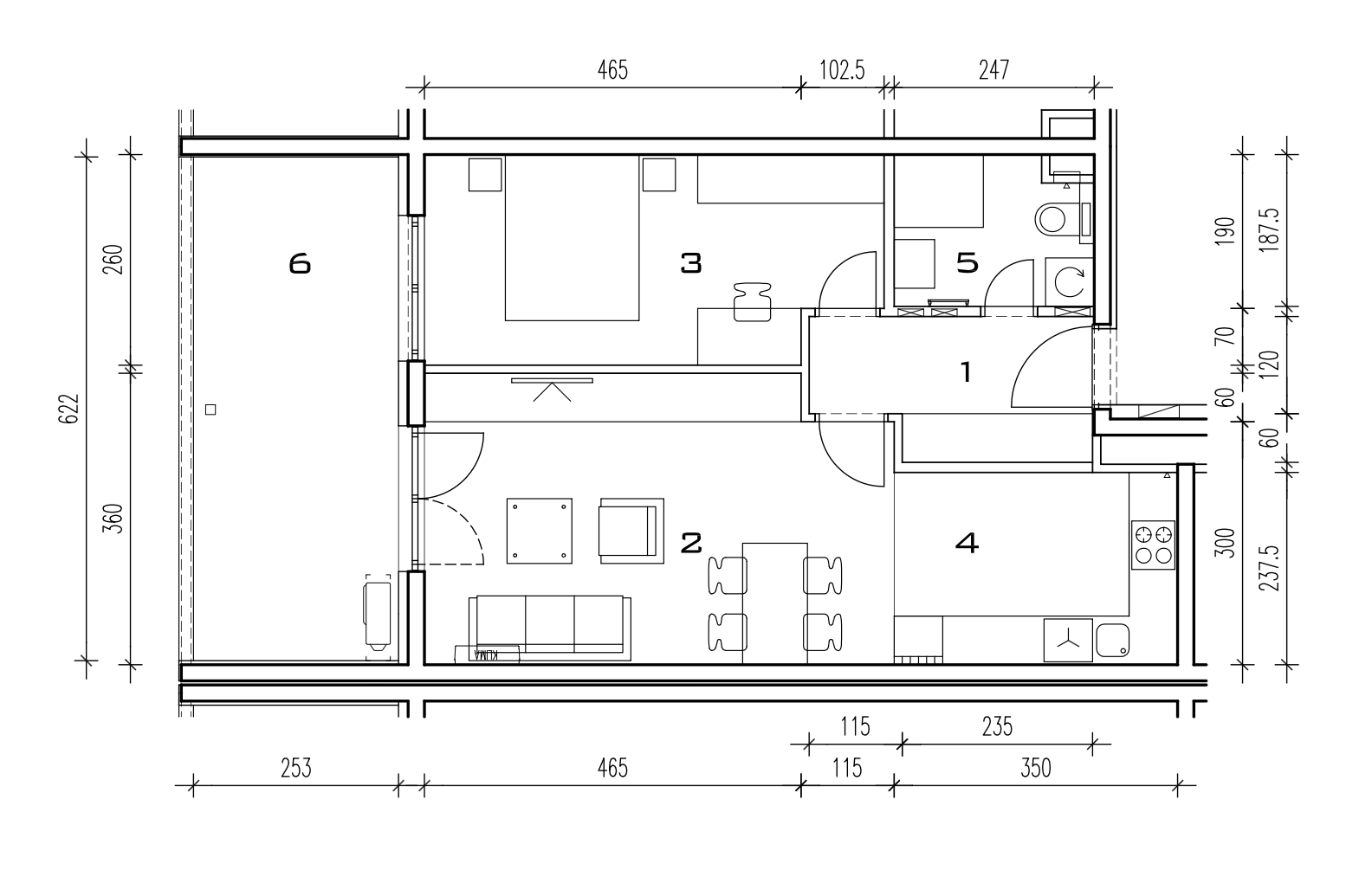
STAN M-A-28 | 3-soban | 85,35 m2 | PRODANO
Kvadratura:
| Ulaz | 6,38 m2 |
| Dnevni boravak | 25,59 m2 |
| Soba 1 | 15,07 m2 |
| Soba 2 | 12,54 m2 |
| Kuhinja | 3,37 m2 |
| Kupaonica | 4,71 m2 |
| WC | 2,10 m2 |
| Loggia | 15,59 m2 |
| 85,35 m2 |
Tlocrt:
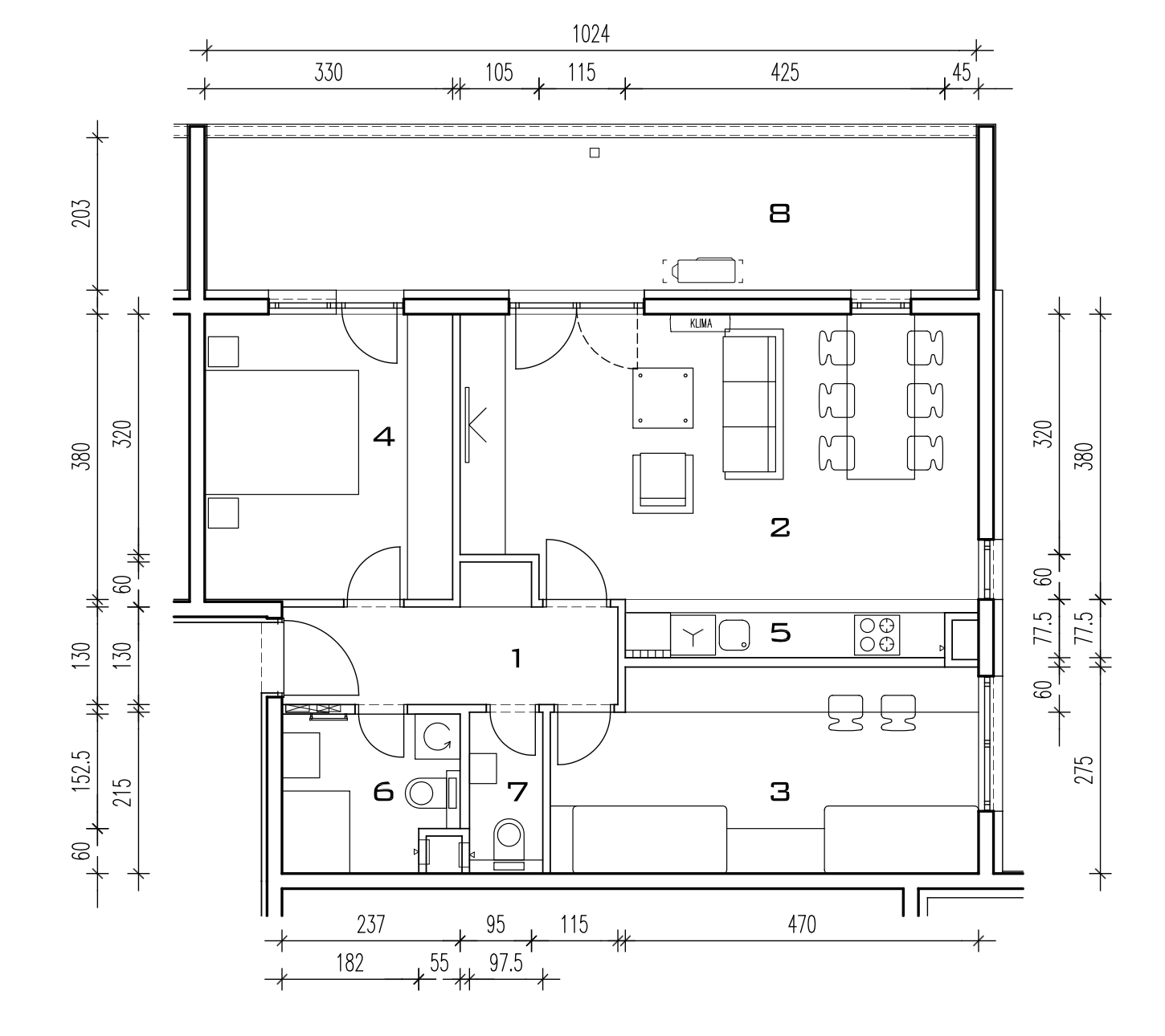
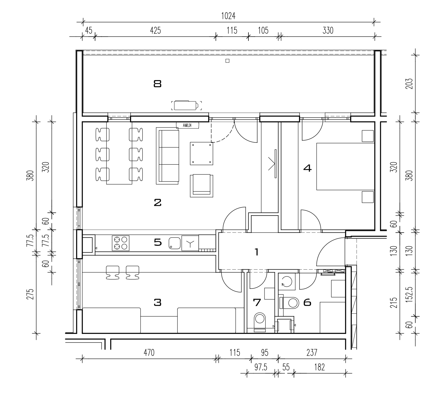
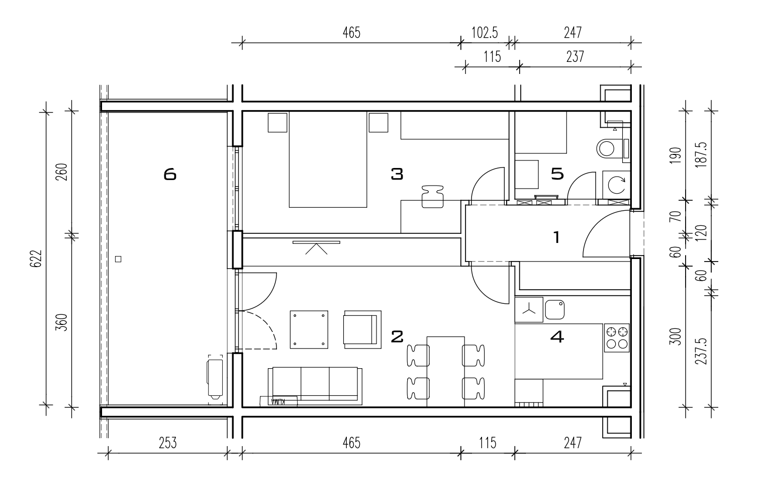
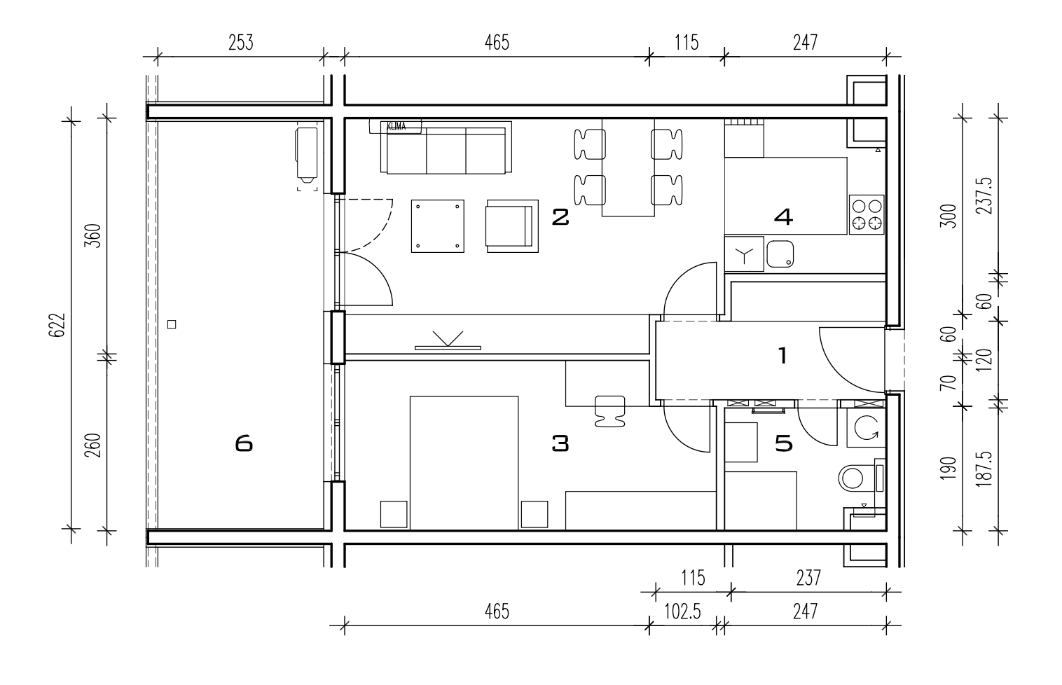
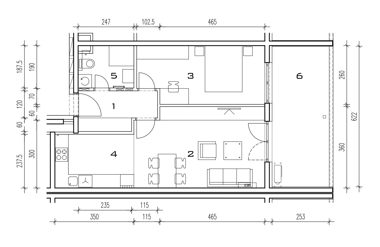
STAN M-A-29 | 3-soban | 85,35 m2 | PRODANO
Kvadratura:
| Ulaz | 6,38 m2 |
| Dnevni boravak | 25,59 m2 |
| Soba 1 | 15,07 m2 |
| Soba 2 | 12,54 m2 |
| Kuhinja | 3,37 m2 |
| Kupaonica | 4,71 m2 |
| WC | 2,10 m2 |
| Loggia | 15,59 m2 |
| 85,35 m2 |
Tlocrt:
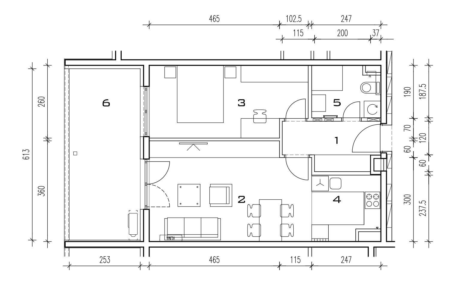
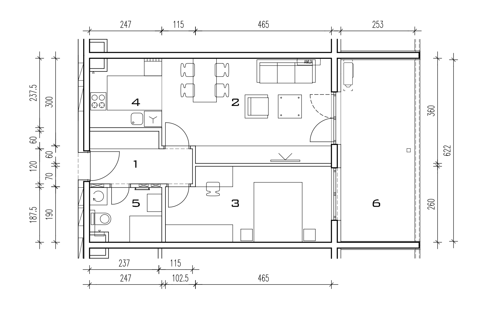
STAN M-A-30 | 2-soban | 61,15 m2 | PRODANO
Kvadratura:
| Ulaz | 5,43 m2 |
| Dnevni boravak | 20,19 m2 |
| Soba | 14,04 m2 |
| Kuhinja | 5,46 m2 |
| Kupaonica | 4,40 m2 |
| Loggia | 11,63 m2 |
| 61,15 m2 |
Tlocrt:
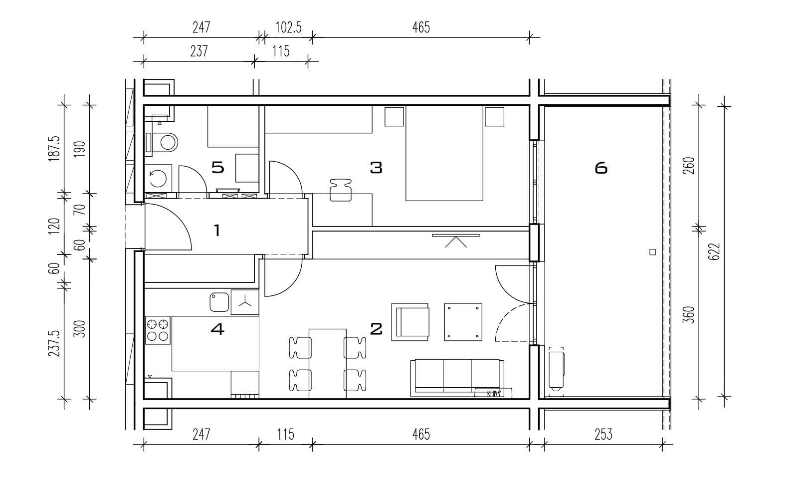
STAN M-A-31 | 1-soban | 43,98 m2 | PRODANO
Kvadratura:
| Ulaz | 5,90 m2 |
| Dnevni boravak | 20,43 m2 |
| Kuhinja | 4,50 m2 |
| Kupaonica | 4,65 m2 |
| Loggia | 8,50 m2 |
| 43,98 m2 |
Tlocrt:
STAN M-A-32 | 1-soban | 42,88 m2 | PRODANO
Kvadratura:
| Ulaz | 4,27 m2 |
| Dnevni boravak | 21,75 m2 |
| Kuhinja | 4,35 m2 |
| Kupaonica | 4,05 m2 |
| Loggia | 8,46 m2 |
| 42,88 m2 |
Tlocrt:
STAN M-A-33 | 2-soban | 61,69 m2 | PRODANO
Kvadratura:
| Ulaz | 5,65 m2 |
| Dnevni boravak | 20,19 m2 |
| Soba | 14,04 m2 |
| Kuhinja | 5,60 m2 |
| Kupaonica | 4,40 m2 |
| Loggia | 11,81 m2 |
| 61,69 m2 |
Tlocrt:
STAN M-A-34 | 2-soban | 61,69 m2 | PRODANO
Kvadratura:
| Ulaz | 5,65 m2 |
| Dnevni boravak | 20,19 m2 |
| Soba | 14,04 m2 |
| Kuhinja | 5,60 m2 |
| Kupaonica | 4,40 m2 |
| Loggia | 11,81 m2 |
| 61,69 m2 |
Tlocrt:
STAN M-A-35 | 2-soban | 64,38 m2 | PRODANO
Kvadratura:
| Ulaz | 5,63 m2 |
| Dnevni boravak | 20,19 m2 |
| Soba | 14,04 m2 |
| Kuhinja | 8,31 m2 |
| Kupaonica | 4,40 m2 |
| Loggia | 11,81 m2 |
| 64,38 m2 |
Tlocrt:
STAN M-A-36 | 2-soban | 64,40 m2 | PRODANO
Kvadratura:
| Ulaz | 5,65 m2 |
| Dnevni boravak | 20,19 m2 |
| Soba | 14,04 m2 |
| Kuhinja | 8,31 m2 |
| Kupaonica | 4,40 m2 |
| Loggia | 11,81 m2 |
| 64,40 m2 |
Tlocrt:
STAN M-A-37 | 2-soban | 61,69 m2 | PRODANO
Kvadratura:
| Ulaz | 5,65 m2 |
| Dnevni boravak | 20,19 m2 |
| Soba | 14,04 m2 |
| Kuhinja | 5,60 m2 |
| Kupaonica | 4,40 m2 |
| Loggia | 11,81 m2 |
| 61,69 m2 |
Tlocrt:
STAN M-A-38 | 2-soban | 61,69 m2 | PRODANO
Kvadratura:
| Ulaz | 5,65 m2 |
| Dnevni boravak | 20,19 m2 |
| Soba | 14,04 m2 |
| Kuhinja | 5,60 m2 |
| Kupaonica | 4,40 m2 |
| Loggia | 11,81 m2 |
| 61,69 m2 |
Tlocrt:
STAN M-A-39 | 2-soban | 61,97 m2 | PRODANO
Kvadratura:
| Ulaz | 3,33 m2 |
| Dnevni boravak | 22,58 m2 |
| Soba | 13,12 m2 |
| Kuhinja | 3,98 m2 |
| Kupaonica | 4,40 m2 |
| Loggia | 14,56 m2 |
| 61,97 m2 |
Tlocrt:












