Pregled stanova:
Dokumentacija:
Napomena:
- rok završetka: 31.12.2026.
- uz kupnju stana obvezna je i kupovina parkirnog mjesta
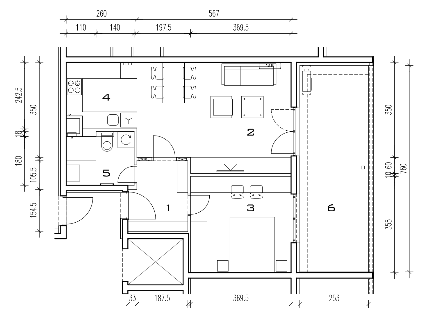
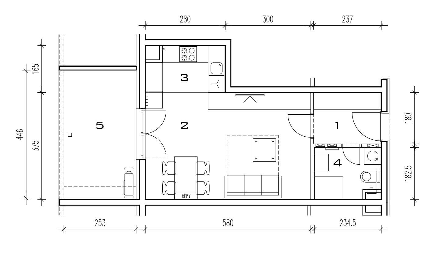
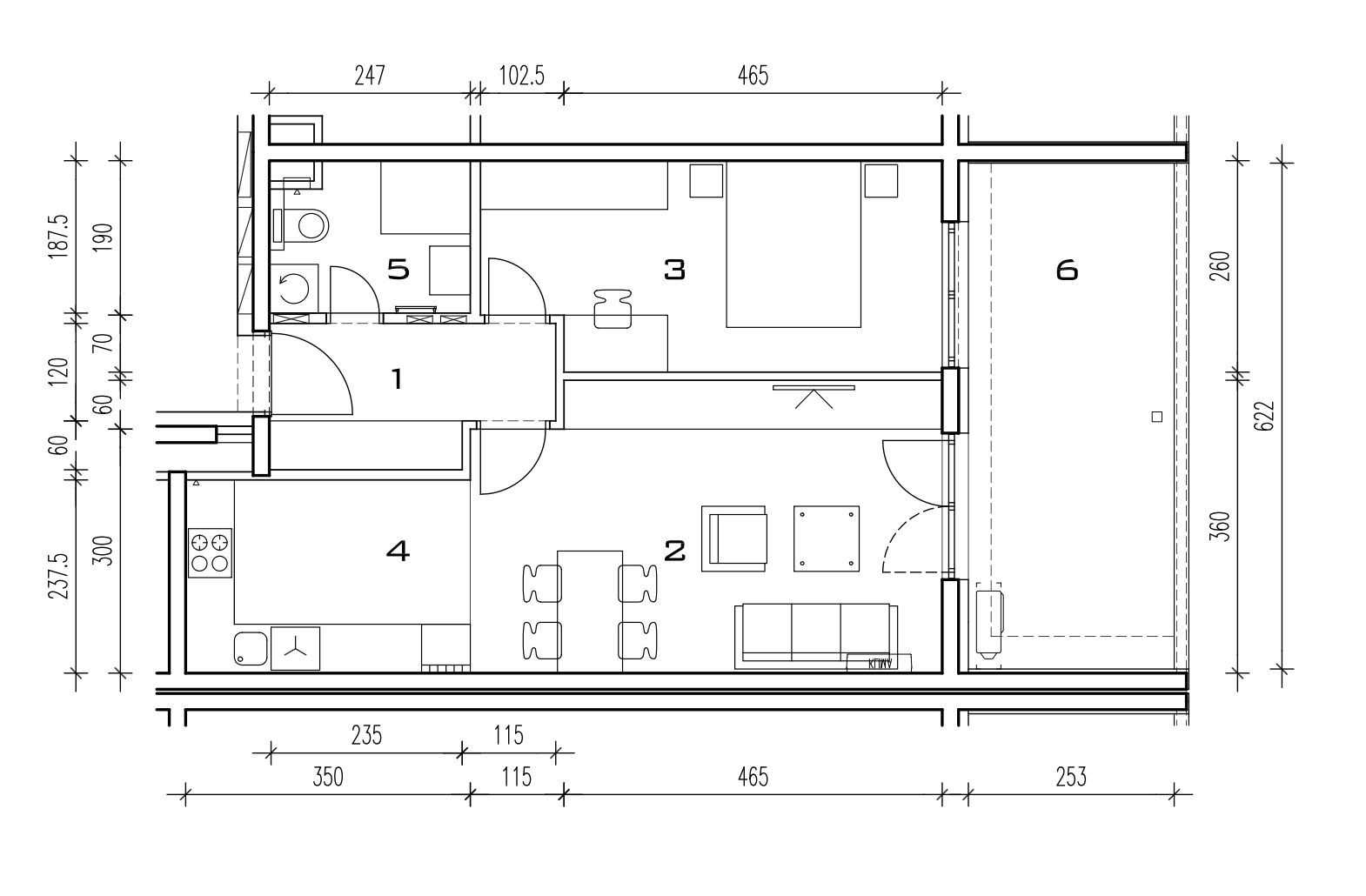
STAN M-A-79 | 2-soban | 65,67 m2 | PRODANO
Kvadratura:
| Ulaz | 5,38 m2 |
| Dnevni boravak | 22,06 m2 |
| Soba | 13,12 m2 |
| Kuhinja | 5,94 m2 |
| Kupaonica | 4,75 m2 |
| Loggia | 14,42 m2 |
| 65,67 m2 |
Tlocrt:
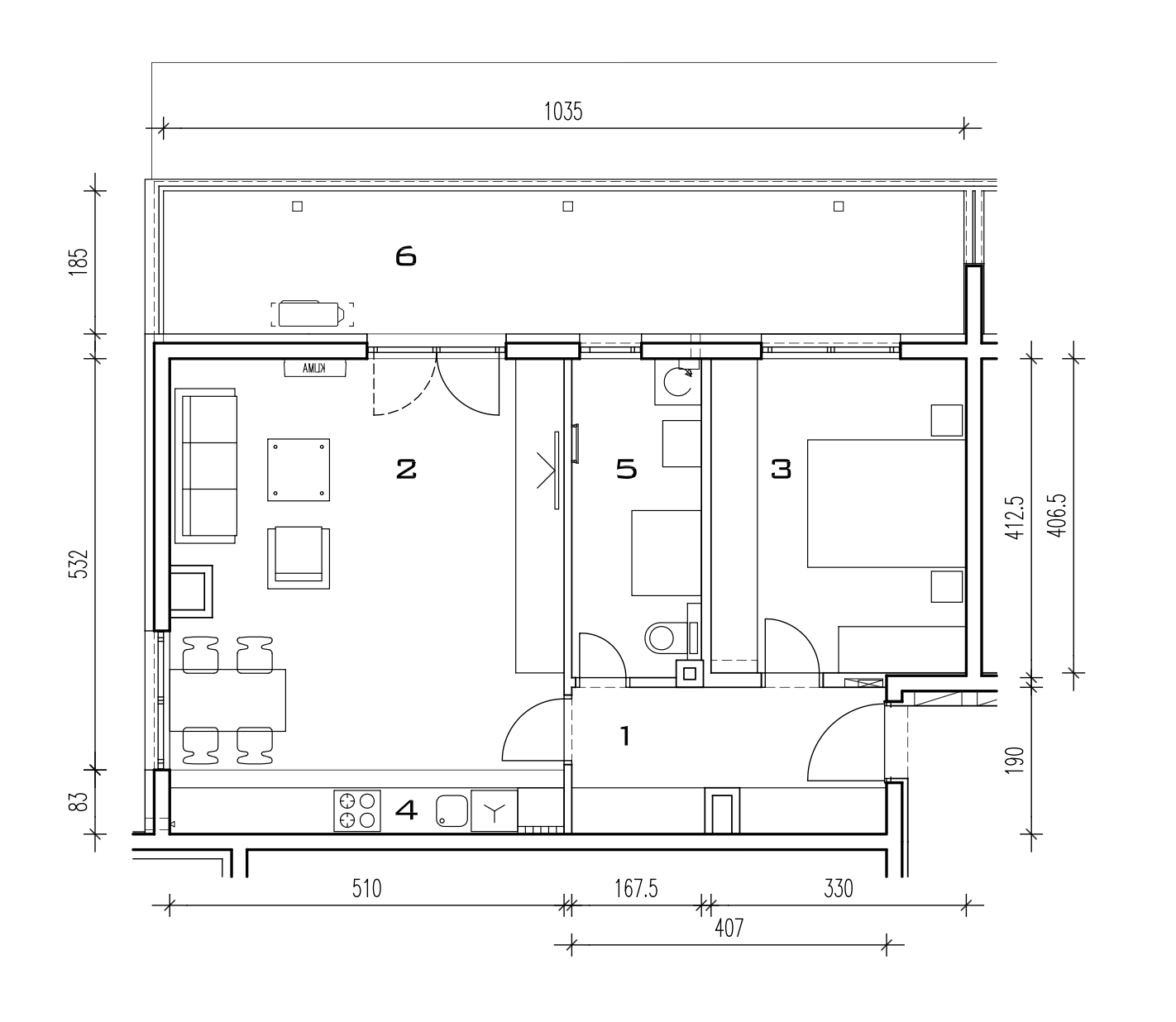
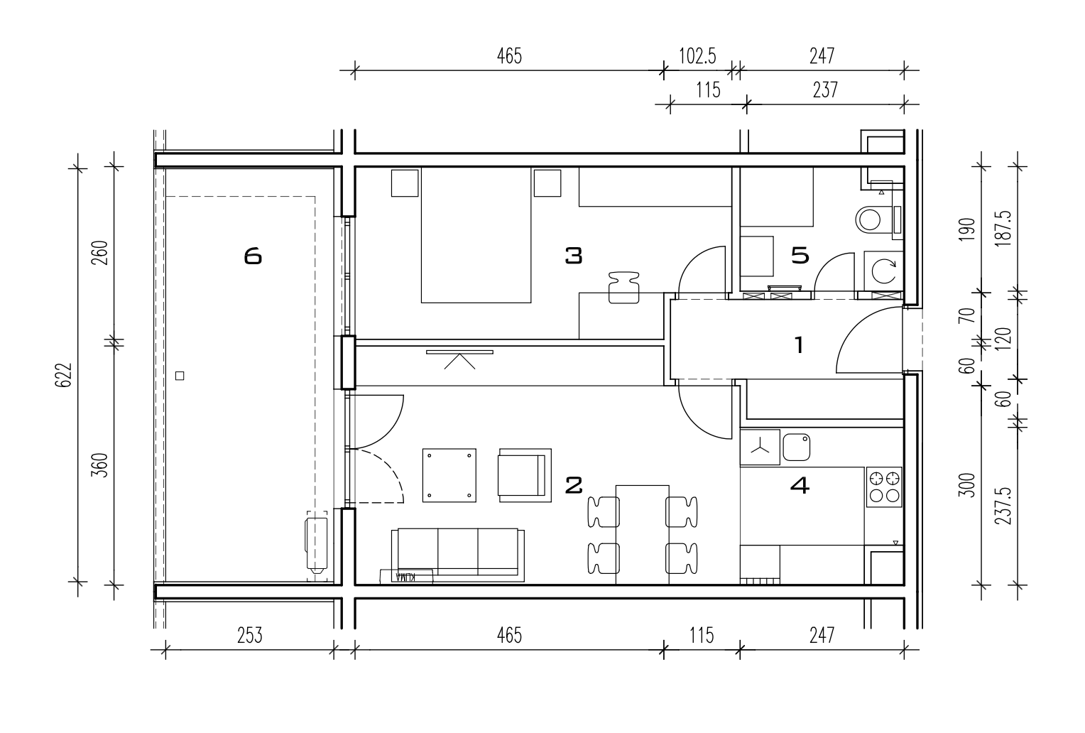
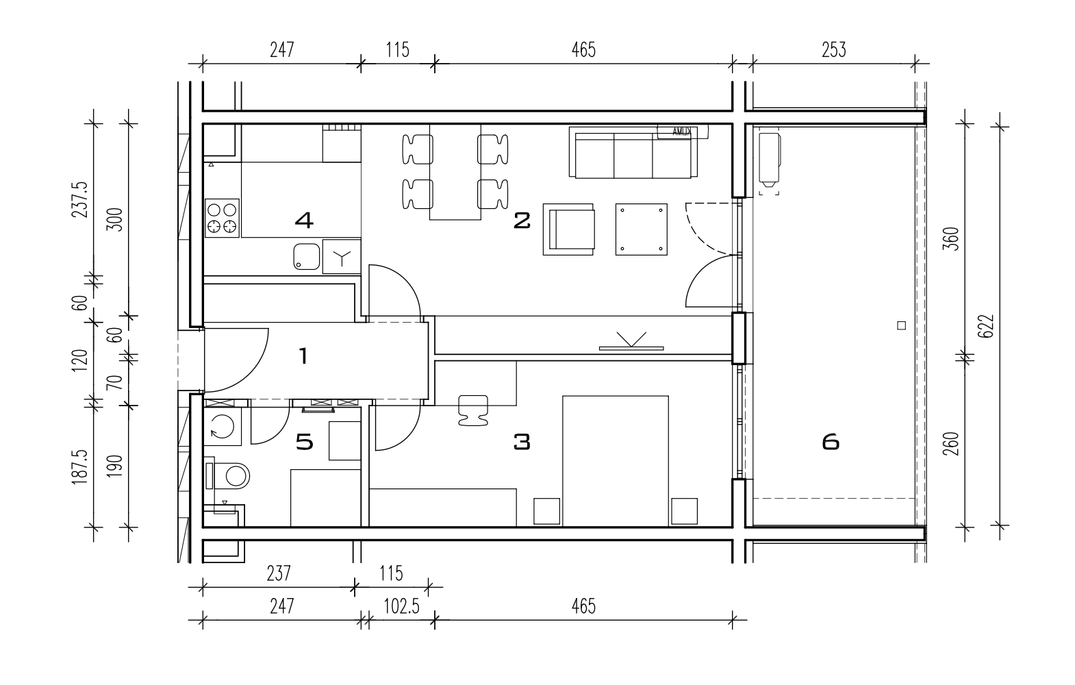
STAN M-A-80 | 2-soban | 68,25 m2 | PRODANO
Kvadratura:
| Ulaz | 7,46 m2 |
| Dnevni boravak | 26,73 m2 |
| Soba | 13,41 m2 |
| Kuhinja | 4,23 m2 |
| Kupaonica | 6,84 m2 |
| Loggia | 9,58 m2 |
| 68,25 m2 |
Tlocrt:
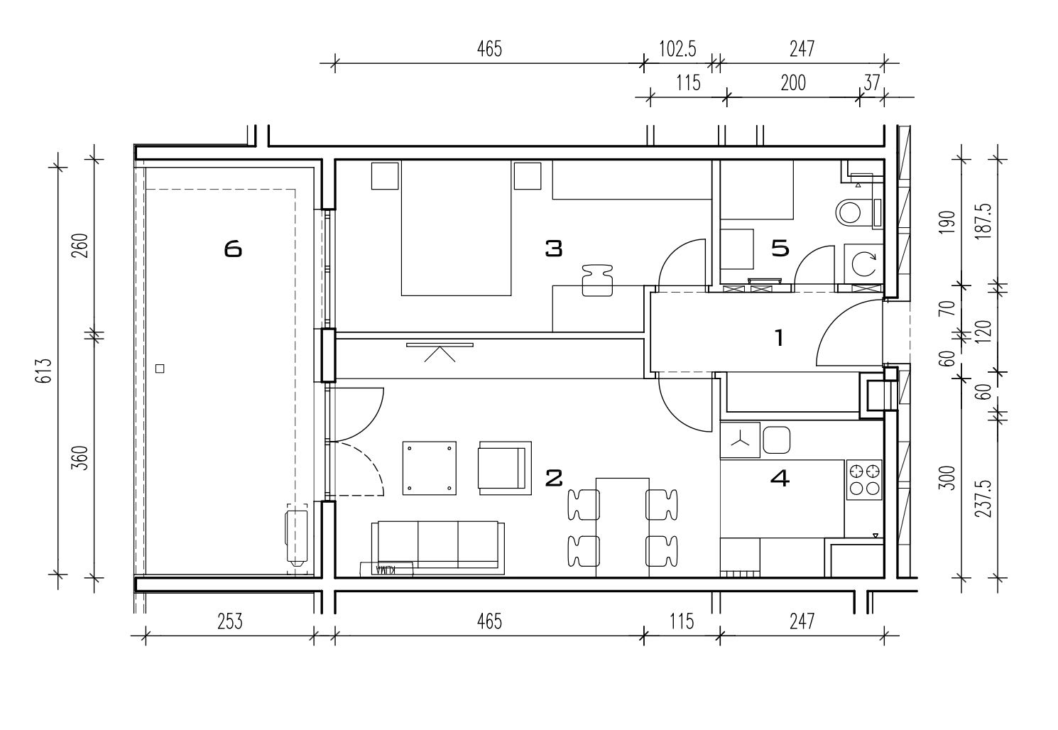
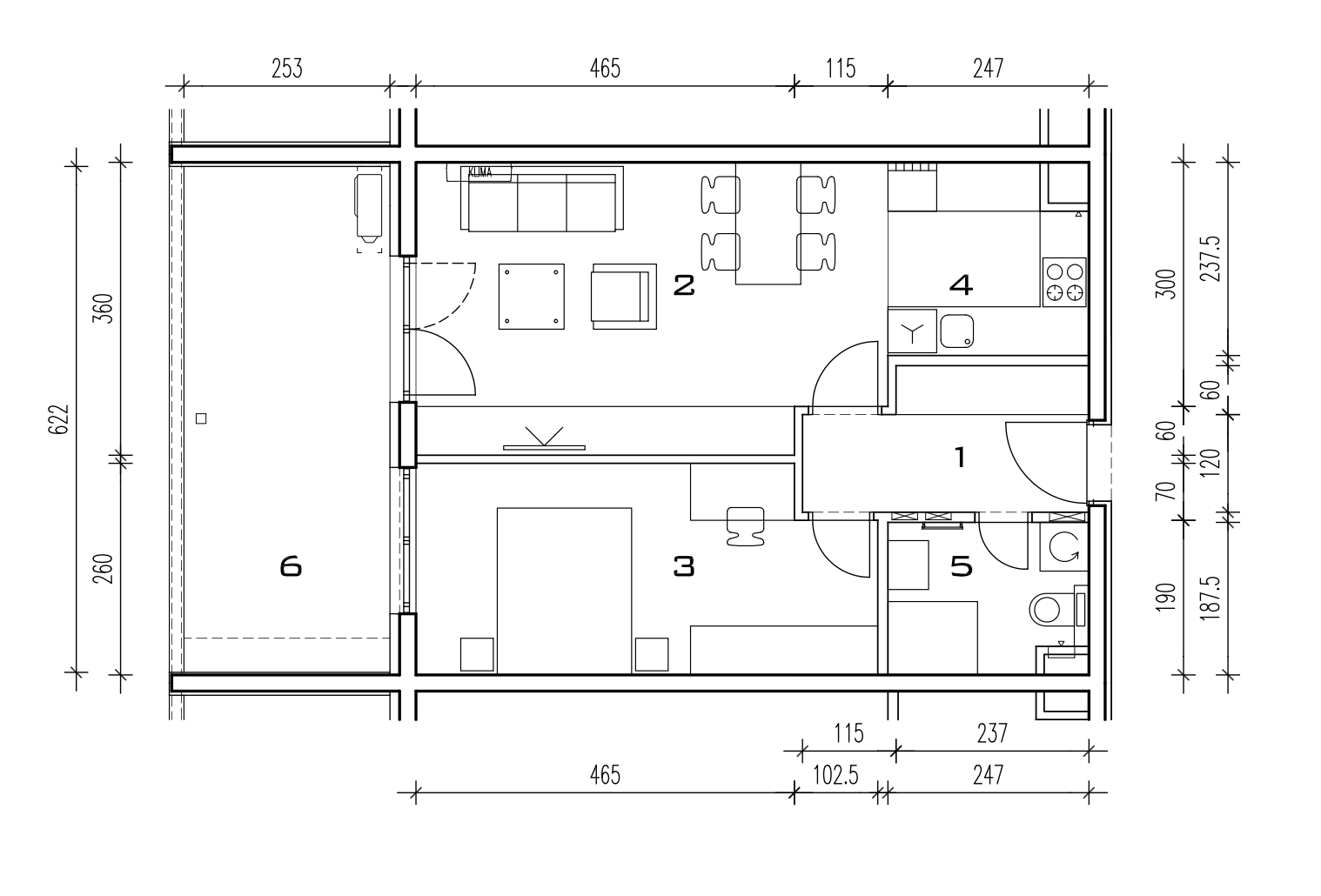
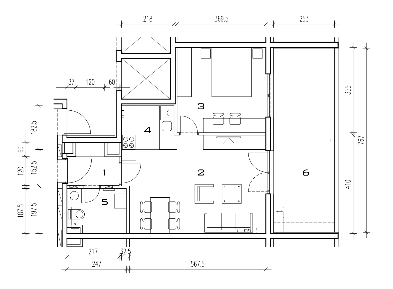
STAN M-A-81 | 2-soban | 68,25 m2 | PRODANO
Kvadratura:
| Ulaz | 7,46 m2 |
| Dnevni boravak | 26,73 m2 |
| Soba | 13,41 m2 |
| Kuhinja | 4,23 m2 |
| Kupaonica | 6,84 m2 |
| Loggia | 9,58 m2 |
| 68,25 m2 |
Tlocrt:
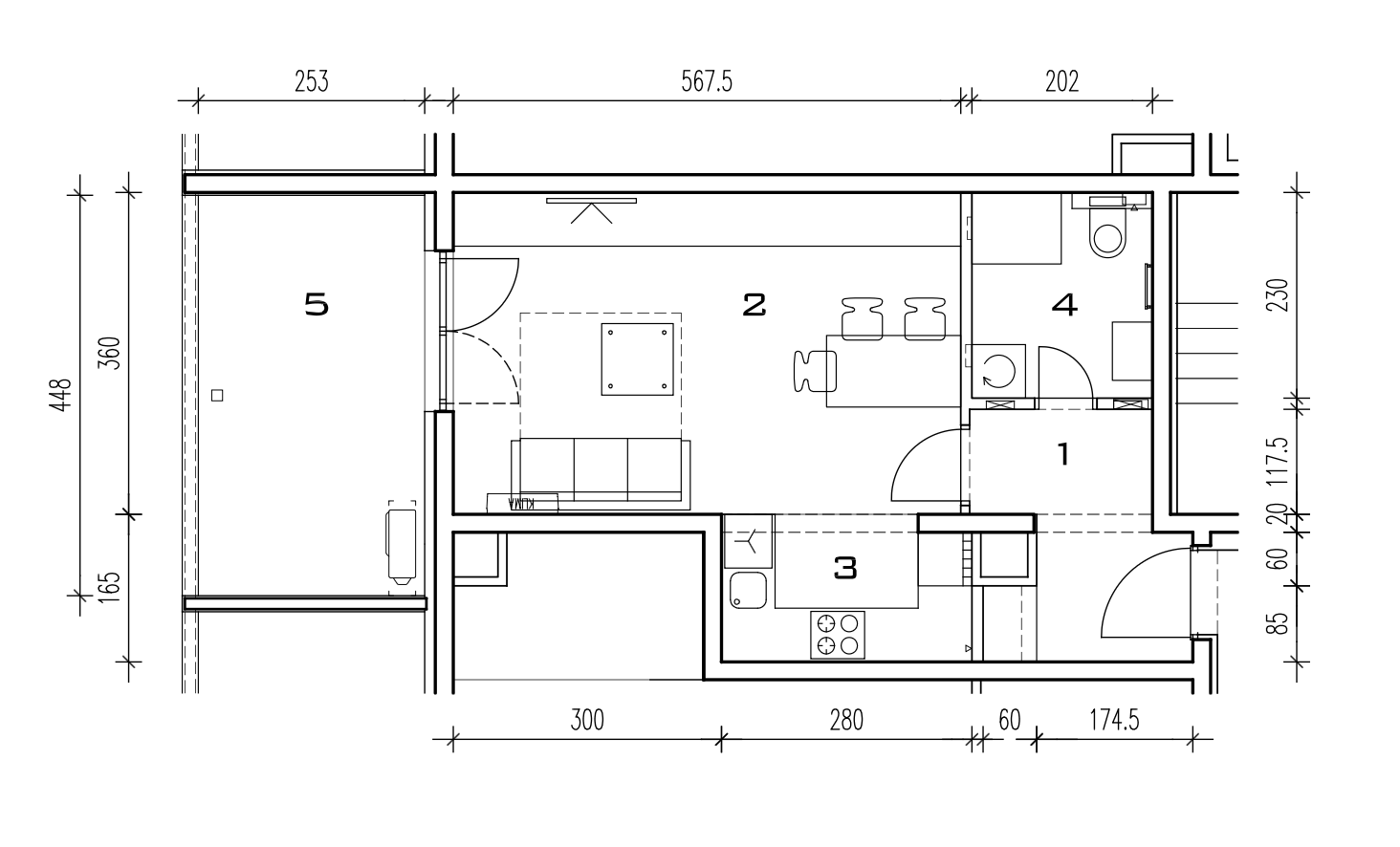
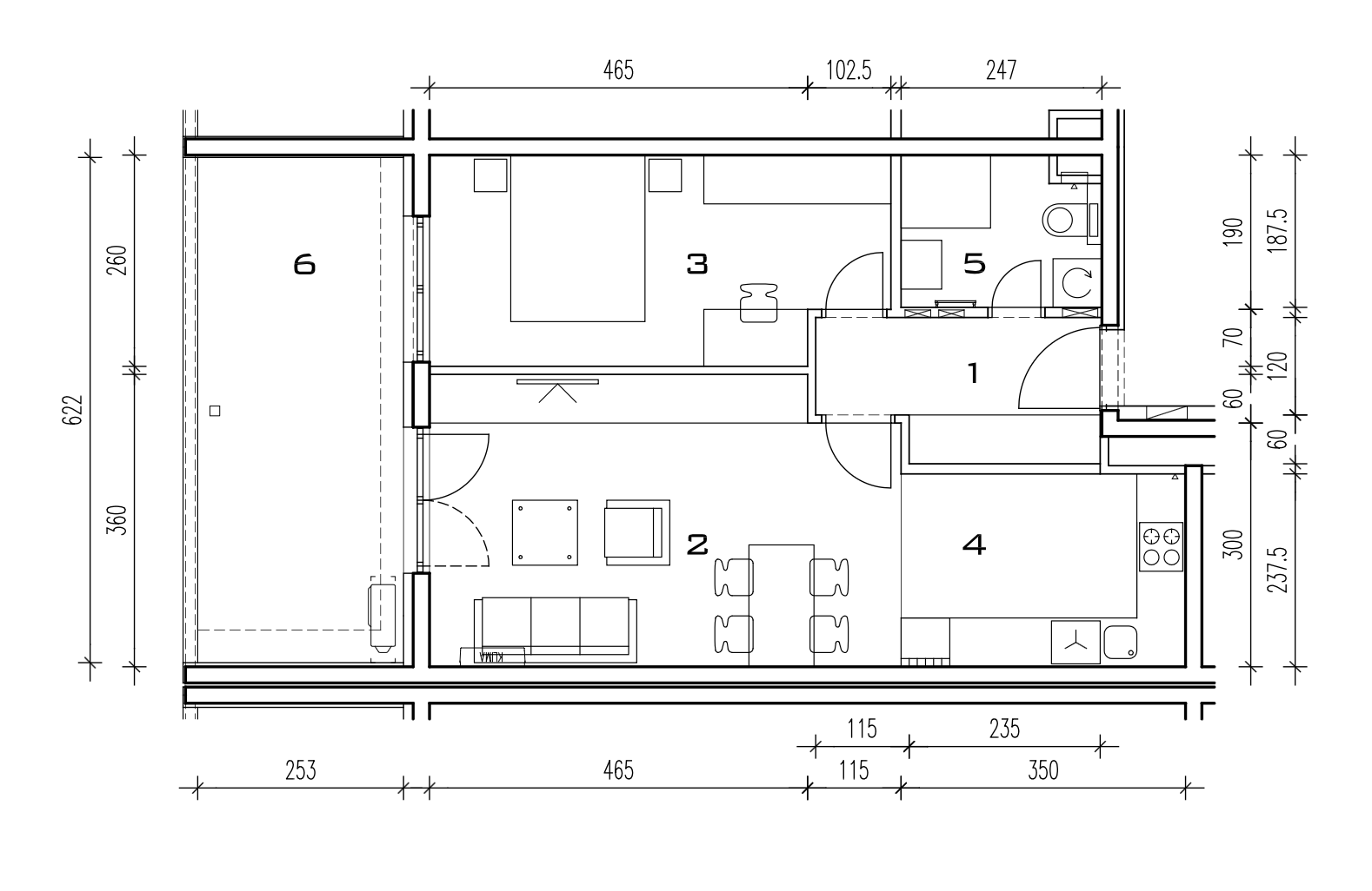
STAN M-A-82 | 2-soban | 61,02 m2 | PRODANO
Kvadratura:
| Ulaz | 5,43 m2 |
| Dnevni boravak | 20,19 m2 |
| Soba | 14,04 m2 |
| Kuhinja | 5,33 m2 |
| Kupaonica | 4,40 m2 |
| Loggia | 11,63 m2 |
| 61,02 m2 |
Tlocrt:
STAN M-A-83 | 1-soban | 43,78 m2 | PRODANO
Kvadratura:
| Ulaz | 5,70 m2 |
| Dnevni boravak | 20,43 m2 |
| Kuhinja | 4,50 m2 |
| Kupaonica | 4,65 m2 |
| Loggia | 8,50 m2 |
| 43,78 m2 |
Tlocrt:
STAN M-A-84 | 1-soban | 42,79 m2 | PRODANO
Kvadratura:
| Ulaz | 4,27 m2 |
| Dnevni boravak | 21,75 m2 |
| Kuhinja | 4,26 m2 |
| Kupaonica | 4,05 m2 |
| Loggia | 8,46 m2 |
| 42,79 m2 |
Tlocrt:
STAN M-A-85 | 2-soban | 61,60 m2 | PRODANO
Kvadratura:
| Ulaz | 5,65 m2 |
| Dnevni boravak | 20,19 m2 |
| Soba | 14,04 m2 |
| Kuhinja | 5,51 m2 |
| Kupaonica | 4,40 m2 |
| Loggia | 11,81 m2 |
| 61,60 m2 |
Tlocrt:
STAN M-A-86 | 2-soban | 61,60 m2 | PRODANO
Kvadratura:
| Ulaz | 5,65 m2 |
| Dnevni boravak | 20,19 m2 |
| Soba | 14,04 m2 |
| Kuhinja | 5,51 m2 |
| Kupaonica | 4,40 m2 |
| Loggia | 11,81 m2 |
| 61,60 m2 |
Tlocrt:
STAN M-A-87 | 2-soban | 64,38 m2 | PRODANO
Kvadratura:
| Ulaz | 5,63 m2 |
| Dnevni boravak | 20,19 m2 |
| Soba | 14,04 m2 |
| Kuhinja | 8,31 m2 |
| Kupaonica | 4,40 m2 |
| Loggia | 11,81 m2 |
| 64,38 m2 |
Tlocrt:
STAN M-A-88 | 2-soban | 64,40 m2 | PRODANO
Kvadratura:
| Ulaz | 5,65 m2 |
| Dnevni boravak | 20,19 m2 |
| Soba | 14,04 m2 |
| Kuhinja | 8,31 m2 |
| Kupaonica | 4,40 m2 |
| Loggia | 11,81 m2 |
| 64,40 m2 |
Tlocrt:
STAN M-A-89 | 2-soban | 61,60 m2 | PRODANO
Kvadratura:
| Ulaz | 5,65 m2 |
| Dnevni boravak | 20,19 m2 |
| Soba | 14,04 m2 |
| Kuhinja | 5,51 m2 |
| Kupaonica | 4,40 m2 |
| Loggia | 11,81 m2 |
| 61,60 m2 |
Tlocrt:
STAN M-A-90 | 2-soban | 61,60 m2 | PRODANO
Kvadratura:
| Ulaz | 5,65 m2 |
| Dnevni boravak | 20,19 m2 |
| Soba | 14,04 m2 |
| Kuhinja | 5,51 m2 |
| Kupaonica | 4,40 m2 |
| Loggia | 11,81 m2 |
| 61,60 m2 |
Tlocrt:
STAN M-A-91 | 2-soban | 61,97 m2 | PRODANO
Kvadratura:
| Ulaz | 3,33 m2 |
| Dnevni boravak | 22,58 m2 |
| Soba | 13,12 m2 |
| Kuhinja | 3,98 m2 |
| Kupaonica | 4,40 m2 |
| Loggia | 14,56 m2 |
| 61,97 m2 |
Tlocrt:












