Pregled stanova:
Dokumentacija:
- Rok isporuke: 29.01.2027.
- uz kupnju stana obvezna je i kupovina parkirnog mjesta
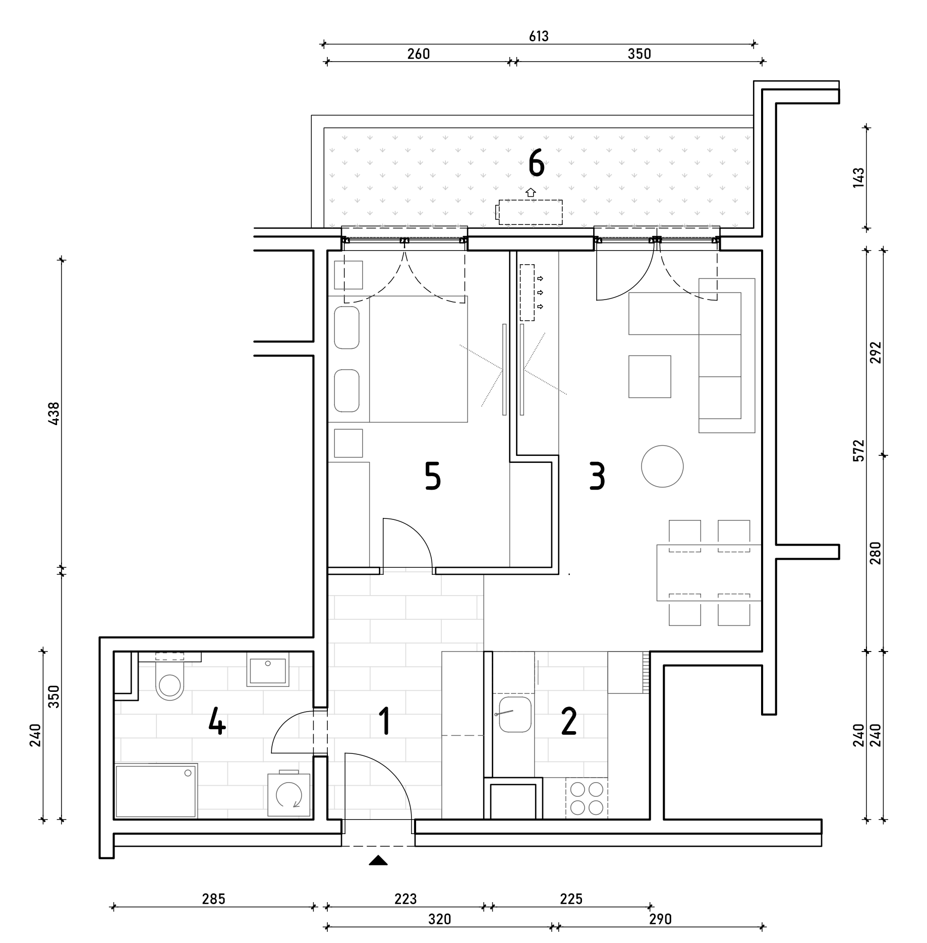
STAN A-1 | 2-soban | 51,53 m2 + Vrt |
Kvadratura:
| Hodnik | 7,80 m2 |
| Kuhinja | 4,96 m2 |
| Blagovaona + dnevni boravak | 19,52 m2 |
| Kupaonica | 6,60 m2 |
| Spavaća soba | 12,65 m2 |
| 51,53 m2 | |
| Vrt | 8,77 m2 |
Tlocrt:
STAN A-2 | 4-soban | 77,48 m2 + Vrt |
Kvadratura:
| Hodnik | 6,76 m2 |
| Kuhinja | 7,96 m2 |
| Blagovaona + dnevni boravak | 21,29 m2 |
| Kupaonica 1 | 4,25 m2 |
| Predprostor | 3,57 m2 |
| Kupaonica 2 | 4,64 m2 |
| Spavaća soba 1 | 10,92 m2 |
| Spavaća soba 2 | 9,96 m2 |
| Spavaća soba 3 | 8,13 m2 |
| 77,48 m2 | |
| Spremište 2 | 3,65 m2 |
| Vrt | 12,02 m2 |
Tlocrt:
STAN A-3 | 3-soban | 61,61 m2 + Vrt | PRODANO
Kvadratura:
| Hodnik | 3,80 m2 |
| Kuhinja | 7,10 m2 |
| Blagovaona + dnevni boravak | 22,92 m2 |
| Wc | 3,34 m2 |
| Kupaonica | 4,17 m2 |
| Spavaća soba 1 | 11,61 m2 |
| Spavaća soba 2 | 8,67 m2 |
| 61,61 m2 | |
| Spremište 1 | 3,56 m2 |
| Vrt | 7,97 m2 |
Tlocrt:
STAN A-4 | 2-soban | 48,30 m2 + Vrt | PRODANO
Kvadratura:
| Hodnik | 7,69 m2 |
| Kuhinja | 5,76 m2 |
| Blagovaona + dnevni boravak | 19,25 m2 |
| Kupaonica | 4,42 m2 |
| Spavaća soba | 11,18 m2 |
| 48,30 m2 | |
| Vrt | 12,69 m2 |
Tlocrt:
STAN A-5 | 2-soban | 49,23 m2 + Vrt |
Kvadratura:
| Hodnik | 4,39 m2 |
| Kuhinja + blagovaona + dnevni boravak | 26,26 m2 |
| Kupaonica | 5,02 m2 |
| Spavaća soba | 13,56 m2 |
| 49,23 m2 | |
| Vrt | 15,43 m2 |
Tlocrt:
STAN A-6 | 2-soban | 48,30 m2 + Vrt | PRODANO
Kvadratura:
| Hodnik | 7,69 m2 |
| Kuhinja | 5,76 m2 |
| Blagovaona + dnevni boravak | 19,25 m2 |
| Kupaonica | 4,42 m2 |
| Spavaća soba | 11,18 m2 |
| 48,30 m2 | |
| Vrt | 12,59 m2 |
Tlocrt:
STAN A-7 | 2-soban | 49,45 m2 + Vrt |
Kvadratura:
| Hodnik | 6,71 m2 |
| Kuhinja | 7,56 m2 |
| Blagovaona + dnevni boravak | 17,86 m2 |
| Kupaonica | 4,92 m2 |
| Spavaća soba | 12,40 m2 |
| 49,45 m2 | |
| Spremište 4 | 3,52 m2 |
| Vrt | 12,59 m2 |
Tlocrt:
STAN A-8 | 2-soban | 52,97 m2 + Vrt + PM| PRODANO
Kvadratura:
| Hodnik | 6,71 m2 |
| Kuhinja | 7,56 m2 |
| Blagovaona + dnevni boravak | 17,86 m2 |
| Kupaonica | 4,92 m2 |
| Spavaća soba | 12,40 m2 |
| 49,45 m2 | |
| Spremište 3 | 3,52 m2 |
| Vrt | 8,94 m2 |
| PM B 100 | 18,50 m2 |
Tlocrt:







