Pregled stanova:
Dokumentacija:
- Rok isporuke: 29.01.2027.
- uz kupnju stana obvezna je i kupovina parkirnog mjesta
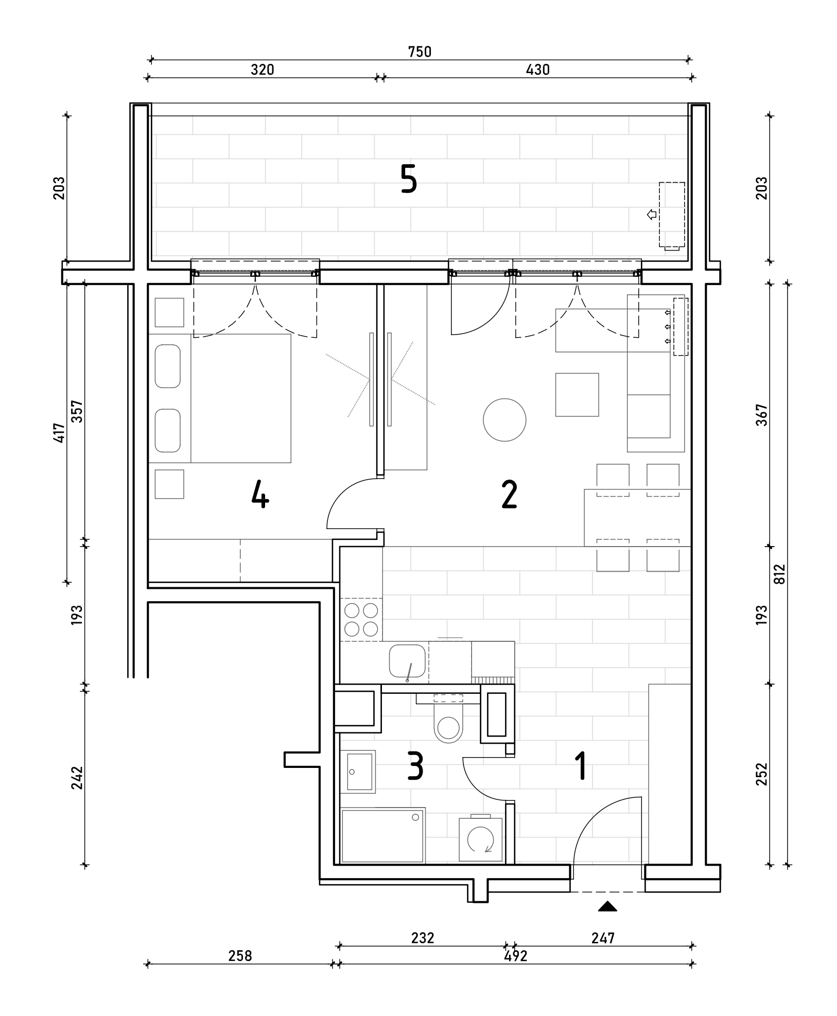
STAN A-69 | 2-soban | 60,89 m2 |
Kvadratura:
| Hodnik | 6,25 m2 |
| Kuhinja + blagovaona + dnevni boravak | 25,25 m2 |
| Kupaonica | 5,00 m2 |
| Spavaća soba | 12,97 m2 |
| Loggia 15,23×0,75 | 11,42 m2 |
| 60,89 m2 |
Tlocrt:
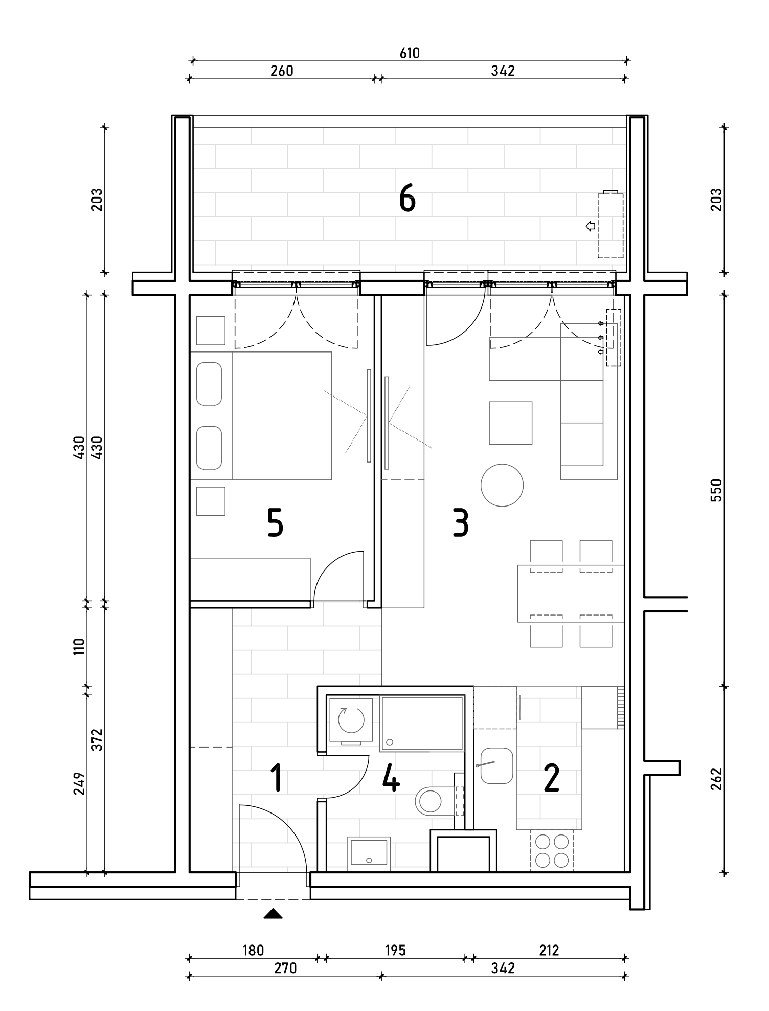
STAN A-70 | 2-soban | 57,41 m2 |
Kvadratura:
| Hodnik | 7,69 m2 |
| Kuhinja | 5,69 m2 |
| Blagovaona + dnevni boravak | 19,25 m2 |
| Kupaonica | 4,42 m2 |
| Spavaća soba | 11,18 m2 |
| Loggia 12,24×0,75 | 9,18 m2 |
| 57,41 m2 |
Tlocrt:
STAN A-71 | 4-soban + PM | 79,92 m2 | PRODANO
Kvadratura:
| Hodnik | 3,38 m2 |
| Kuhinja | 7,77 m2 |
| Blagovaona + dnevni boravak | 21,29 m2 |
| Kupaonica 1 | 4,25 m2 |
| Predprostor | 3,57 m2 |
| Kupaonica 2 | 4,64 m2 |
| Spavaća soba 1 | 10,92 m2 |
| Spavaća soba 2 | 9,96 m2 |
| Spavaća soba 3 | 8,13 m2 |
| Natkrivena terasa 12,02×0,50 | 6,01 m2 |
| 79,92 m2 | |
| PM B 104 | 12,50 m2 |
Tlocrt:
STAN A-72 | 3-soban + PM | 74,38 m2 | PRODANO
Kvadratura:
| Hodnik | 3,80 m2 |
| Kuhinja | 7,10 m2 |
| Blagovaona + dnevni boravak | 22,92 m2 |
| Wc | 3,34 m2 |
| Kupaonica | 4,17 m2 |
| Spavaća soba 1 | 11,61 m2 |
| Spavaća soba 2 | 8,67 m2 |
| Natkriveni balkon 25,54×0,50 | 12,77 m2 |
| 74,38 m2 | |
| PM B 110 | 12,50 m2 |
Tlocrt:
STAN A-73 | 2-soban | 57,52 m2 | PRODANO
Kvadratura:
| Hodnik | 7,69 m2 |
| Kuhinja | 5,69 m2 |
| Blagovaona + dnevni boravak | 19,25 m2 |
| Kupaonica | 4,42 m2 |
| Spavaća soba | 11,18 m2 |
| Loggia 12,38×0,75 | 9,29 m2 |
| 57,52 m2 |
Tlocrt:
STAN A-74 | 2-soban | 60,56 m2 | PRODANO
Kvadratura:
| Hodnik | 4,39 m2 |
| Kuhinja + blagovaona + dnevni boravak | 26,17 m2 |
| Kupaonica | 5,02 m2 |
| Spavaća soba | 13,56 m2 |
| Loggia 15,23×0,75 | 11,42 m2 |
| 60,56 m2 |
Tlocrt:
STAN A-75 | 2-soban | 57,52 m2 | PRODANO
Kvadratura:
| Hodnik | 7,69 m2 |
| Kuhinja | 5,69 m2 |
| Blagovaona + dnevni boravak | 19,25 m2 |
| Kupaonica | 4,42 m2 |
| Spavaća soba | 11,18 m2 |
| Loggia 12,38×0,75 | 9,29 m2 |
| 57,52 m2 |
Tlocrt:
STAN A-76 | 2-soban | 58,37 m2 | PRODANO
Kvadratura:
| Hodnik | 6,71 m2 |
| Kuhinja | 7,37 m2 |
| Blagovaona + dnevni boravak | 17,86 m2 |
| Kupaonica | 4,92 m2 |
| Spavaća soba | 12,40 m2 |
| Loggia 12,15×0,75 | 9,11 m2 |
| 58,37 m2 |
Tlocrt:
STAN A-77 | 2-soban | 58,37 m2 | PRODANO
Kvadratura:
| Hodnik | 6,71 m2 |
| Kuhinja | 7,37 m2 |
| Blagovaona + dnevni boravak | 17,86 m2 |
| Kupaonica | 4,92 m2 |
| Spavaća soba | 12,40 m2 |
| Loggia 12,15×0,75 | 9,11 m2 |
| 58,37 m2 |
Tlocrt:
STAN A-78 | 2-soban | 56,90 m2 |
Kvadratura:
| Hodnik | 7,69 m2 |
| Kuhinja | 5,36 m2 |
| Blagovaona + dnevni boravak | 18,81 m2 |
| Kupaonica | 4,57 m2 |
| Spavaća soba | 11,18 m2 |
| Loggia 12,38×0,75 | 9,29 m2 |
| 56,90 m2 |
Tlocrt:









