8. kat

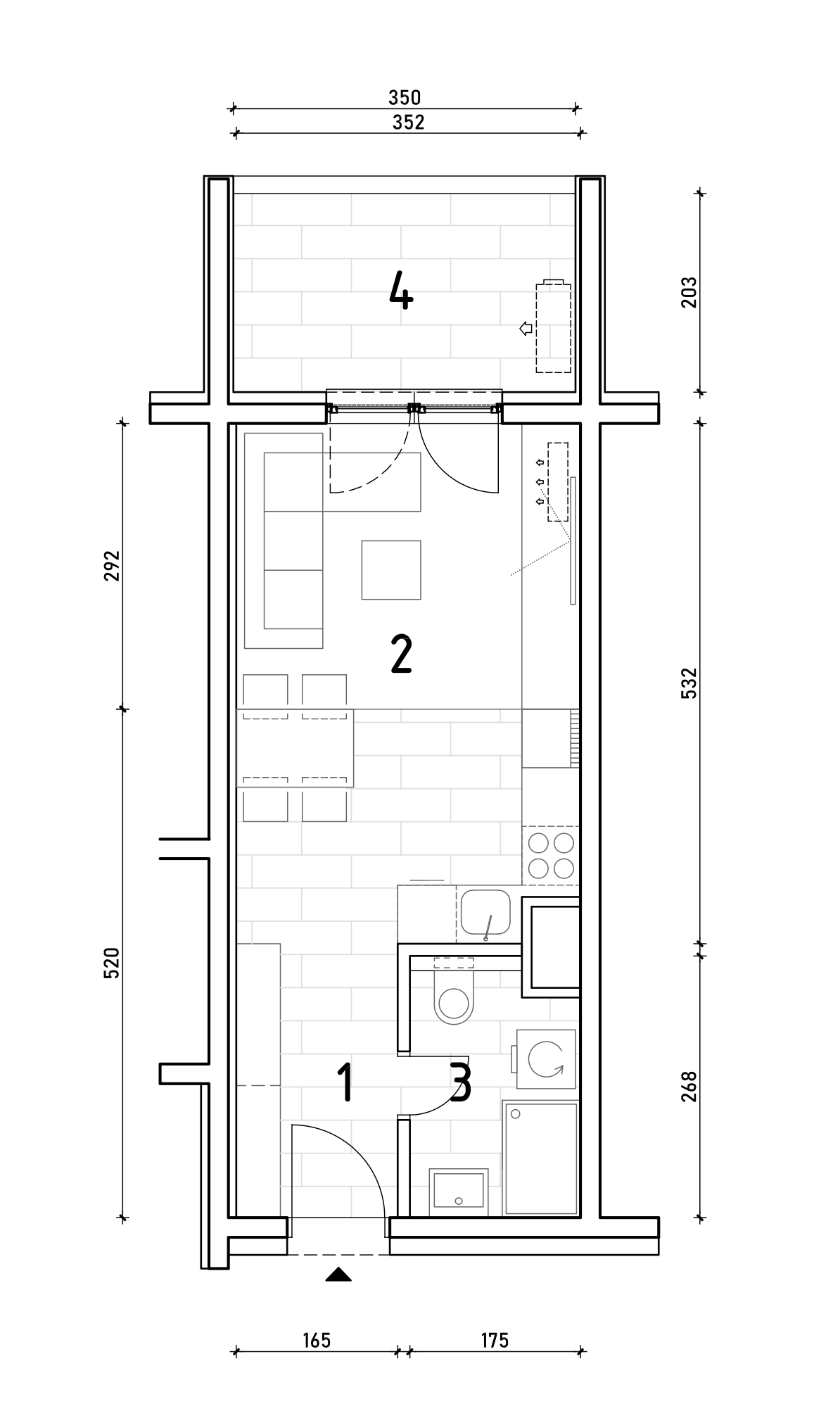
STAN B-80 | 1-soban | 32,80 m2 | PRODANO

Kvadratura: 


Hodnik4,62 m2
Kuhinja + blagovaona + dnevni boravak18,44 m2
Kupaonica4,41 m2
Loggia 7,11×0,755,33 m2
 32,80 m2

Preuzmite katalog stana – PDF

Tlocrt:


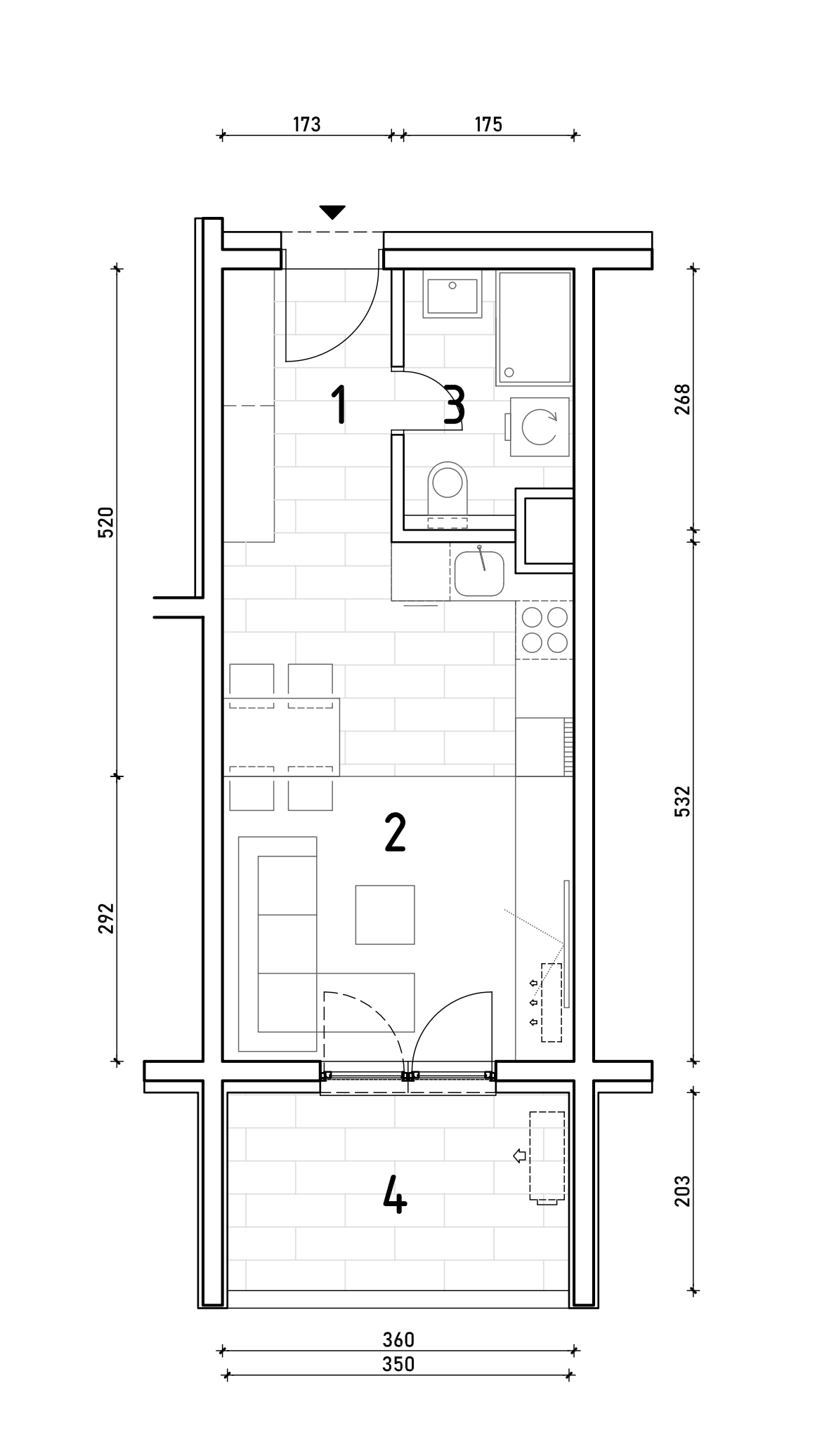
STAN B-81 | 2-soban | 58,30 m2 |

Kvadratura:


Hodnik6,71 m2
Kuhinja7,30 m2
Blagovaona + dnevni boravak17,86 m2
Kupaonica4,92 m2
Spavaća soba12,40 m2
Loggia 12,15×0,759,11 m2
 58,30 m2

Preuzmite katalog stana – PDF

Tlocrt:


STAN B-82 | 2-soban | 58,30 m2 |

Kvadratura:


Hodnik6,71 m2
Kuhinja7,30 m2
Blagovaona + dnevni boravak17,86 m2
Kupaonica4,92 m2
Spavaća soba12,40 m2
Loggia 12,15×0,759,11 m2
 58,30 m2

Preuzmite katalog stana – PDF

Tlocrt:


STAN B-83 | 1-soban | 33,44 m2 | PRODANO

Kvadratura: 


Hodnik4,84 m2
Kuhinja + blagovaona + dnevni boravak18,86 m2
Kupaonica4,41 m2
Loggia 7,11×0,755,33 m2
 33,44 m2

Preuzmite katalog stana – PDF

Tlocrt:


STAN B-84 | 2-soban | 60,54 m2 |

Kvadratura:


Hodnik4,39 m2
Kuhinja + blagovaona + dnevni boravak25,97 m2
Kupaonica5,20 m2
Spavaća soba13,56 m2
Loggia 15,23×0,7511,42 m2
 60,54 m2

Preuzmite katalog stana – PDF

Tlocrt:


STAN B-85 | 2-soban | 57,52 m2 |

Kvadratura:


Hodnik7,69 m2
Kuhinja5,69 m2
Blagovaona + dnevni boravak19,25 m2
Kupaonica4,42 m2
Spavaća soba11,18 m2
Loggia 12,38×0,759,29 m2
 57,52 m2

Preuzmite katalog stana – PDF

Tlocrt:


STAN B-86 | 3-soban + PM | 74,38 m2 |

Kvadratura: 


Hodnik3,80 m2
Kuhinja7,10 m2
Blagovaona + dnevni boravak22,92 m2
Wc3,34 m2
Kupaonica4,17 m2
Spavaća soba 111,61 m2
Spavaća soba 28,67 m2
Natkriveni balkon 25,54×0,5012,77 m2
 74,38 m2
  
PM B 8318,50 m2

Preuzmite katalog stana – PDF

Tlocrt:


STAN B-87 | 4-soban + PM | 79,84 m2 |

Kvadratura: 


Hodnik3,38 m2
Kuhinja7,69 m2
Blagovaona + dnevni boravak21,29 m2
Kupaonica 14,25 m2
Predprostor3,57 m2
Kupaonica 24,64 m2
Spavaća soba 110,92 m2
Spavaća soba 29,96 m2
Spavaća soba 38,13 m2
Natkriveni balkon 12,02×0,506,01 m2
 79,84 m2
  
PM B 8912,50 m2

Preuzmite katalog stana – PDF

Tlocrt:


STAN B-88 | 2-soban | 57,41 m2 |

Kvadratura:


Hodnik7,69 m2
Kuhinja5,69 m2
Blagovaona + dnevni boravak19,25 m2
Kupaonica4,42 m2
Spavaća soba11,18 m2
Loggia 12,24×0,759,18 m2
 57,41 m2

Preuzmite katalog stana – PDF

Tlocrt:


STAN B-89 | 2-soban | 60,89 m2 |

Kvadratura:


Hodnik6,25 m2
Kuhinja + blagovaona + dnevni boravak25,25 m2
Kupaonica5,00 m2
Spavaća soba12,97 m2
Loggia 15,23×0,7511,42 m2
 60,89 m2

Preuzmite katalog stana – PDF

Tlocrt:


Mijenjati se mogu samo keramičke pločice s napomenom da su vaše istih dimenzija kao i naše, u protivnom imamo pravo zaračunati dodatak za postavu ili odbiti postavljanje pločica.

Kupac je dužan, preinake vezane uz keramičke pločice, na vrijeme dogovoriti s voditeljem gradilišta, u protivnom izmjena keramike više nije moguća.

Prodavatelj isključivo prodaje nekretninu prema projektu nekretnine, a predmet kupoprodaje ne mogu biti nikakvi dodatni radovi ili izmjena opreme ili izmjene tlocrta nekretnine izvan standarda Prodavatelja.

Svaka promjena u stanu neovlašteno izvršena od strane Kupca će za posljedicu imati obvezu vraćanja u prvobitno stanje o trošku Kupca, uz naknadu tom promjenom sve prouzročene štete.

Obavijest

Trenutno nema dostupnih obavijesti.

Kontakt osobe:


Naziv poslovniceVoditelj poslovniceAdresa
TelefonRadno vrijeme poslovnice
SveticeAna KopajtićDivka Budaka 1D, 10 000 Zagreb091/ 494 1454Ponedjeljak – 12:00-19:00
Utorak – 9:00-16:00
Srijeda – 12:00-19:00
Četvrtak – 9:00-16:00
Petak – 9:00-16:00
Subota – Ne radi
Nedjelja – Ne radi
ŠpanskoMihovil LeticaFranceska Tenchinija 2A, 10 000 Zagreb091/ 219 1761Ponedjeljak – 12:00-19:00
Utorak – 9:00-16:00
Srijeda – 12:00-19:00
Četvrtak – 9:00-16:00
Petak – 9:00-16:00
Subota – Ne radi
Nedjelja – Ne radi
Mobilna poslovnica- bank@workAndrea TroharUlica grada Vukovara 284, 10 000 Zagreb091/ 219 1332Ponedjeljak – 8:00-16:00
Utorak – 8:00-16:00
Srijeda – 8:00-16:00
Četvrtak – 8:00-16:00
Petak – 8:00-16:00
Subota – Ne radi
Nedjelja – Ne radi

Mijenjati se mogu samo keramičke pločice s napomenom da su vaše istih dimenzija kao i naše, u protivnom imamo pravo zaračunati dodatak za postavu ili odbiti postavljanje pločica.

Kupac je dužan, preinake vezane uz keramičke pločice, na vrijeme dogovoriti s voditeljem gradilišta, u protivnom izmjena keramike više nije moguća.

Prodavatelj isključivo prodaje nekretninu prema projektu nekretnine, a predmet kupoprodaje ne mogu biti nikakvi dodatni radovi ili izmjena opreme ili izmjene tlocrta nekretnine izvan standarda Prodavatelja.

Svaka promjena u stanu neovlašteno izvršena od strane Kupca će za posljedicu imati obvezu vraćanja u prvobitno stanje o trošku Kupca, uz naknadu tom promjenom sve prouzročene štete.

Poštovani Kupci,

Od dana 28.04.2022. godine na snazi su nova pravila za izmjene/preinake u stanovima.

Mijenjati se mogu keramičke pločice s napomenom da su vaše istih dimenzija kao i naše, u protivnom imamo pravo zaračunati dodatak za postavu ili odbiti postavljanje pločica.

Kupac je dužan, preinake vezane uz keramičke pločice, na vrijeme dogovoriti s voditeljem gradilišta, u protivnom u slučaju kasne reakcije izmjena keramike više nije moguća.

Prodavatelj isključivo prodaje nekretninu prema projektu nekretnine, a predmet kupoprodaje ne mogu biti nikakvi dodatni radovi ili izmjena opreme ili izmjene tlocrta nekretnine izvan standarda Prodavatelja.

Svaka promjena u stanu neovlašteno izvršena od strane Kupca će za posljedicu imati obvezu vraćanja u prvobitno stanje o trošku Kupca, uz naknadu tom promjenom sve prouzročene štete.

GIP PIONIR d.o.o.

Kontakt osobe:

Centar Adresa Grad Direktor Centra Mobitel Mail
REGIONALNI CENTAR SREDIŠNJA HRVATSKA
Jurišićeva Jurišićeva ulica 4 Zagreb Nikolina Mlinarić 091 4800 197 Nikoina.Mlinaric@hpb.hr
Varšavska Varšavska ulica 9 Zagreb Ivana Peraić 091/607 2648 Ivana.Peraic@hpb.hr
Velika Gorica Trg kralja Petra Krešimira IV br 1 Velika Gorica Tomica Gašparac 091 6072 858 Tomica.Gasparac@hpb.hr
Velika Gorica 2 Slavka Kolara 2 Velika Gorica Tomica Gašparac 091 6072 858 Tomica.Gasparac@hpb.hr
HOTO Hoto trg 1 Strmec Anna Maria Brleković 091 4800 283 AnnaMaria.Brlekovic@hpb.hr
VMD Strojarska cesta 16 Zagreb Edita Jasprica 091 4800 280 edita.jasprica@hpb.hr
Dubrava Avenija Dubrava 47 Zagreb Filip Krajinović 091 4800 150 Filip.Krajinovic@hpb.hr
Zaprešić Trg žrtava fašizma 8 Zaprešić Davorka Sudar 091 488 8362 Davorka.Sudar@hpb.hr
Britanski trg Ilica 81 Zagreb Lara Crnički 091 4800 147 lara.crnicki@hpb.hr
Ilica Ilica 304 Zagreb Dejan Novosel 091/4801 295 dejan.novosel@hpb.hr
Gajnice Argentinska ulica 4 Zagreb Ivana kondres 091 6448 776 ivana.kondres@hpb.hr
Vrbani Horvaćanska cesta 75 Zagreb Sanja Šujster 091 6072 654 sanja.sujster@hpb.hr
Sesvete Trg Dragutina Domjanića 8 Sesvete Jela Gašpar 091 6072 643 Jela.Gaspar@hpb.hr
Maksimir Maksimirska cesta 105 Zagreb Ivana Lozančić 091 4801 827 ivana.lozancic@hpb.hr
Savska Savska cesta 58 Zagreb Petra Stipaničev 091 4801 147 petra.stipanicev@hpb.hr
Karlovac Ulica dr. Vladka Mačeka 1 Karlovac Irena Mirić 091 607 2629 Irena.Miric@hpb.hr
Špansko Trg Ivana Kukuljevića 5 Zagreb Sanja Šujster 091 6072 654 Sanja.Sujster@hpb.hr
Središće Ulica Ivana Šibla 15 Zagreb Dino Bandalo 091 4800 407 Dino.Bandalo@hpb.hr
Novi Zagreb Resselova b.b. Zagreb Tajana Brezovečki Fistrić 0961 4801 117 tajana.fistric@hpb.hr
Dugo Selo Ulica Josipa Zorića 28 Dugo Selo Domagoj Zeleničić 091/6393-427 domagoj.zelenicic@hpb.hr
Sisak Ulica Stjepana i Antuna Radića 34 Sisak Karmela Babić 091 4800 187 karmela.babic@hpb.hr
REGIONALNI CENTAR SJEVERNA HRVATSKA
Varaždin Ivana Kukuljevića 9a Varaždin Tanja Novak 091 6072 899 Tanja.Novak@hpb.hr
Bjelovar Trg Eugena Kvaternika 1 Bjelovar Alemka Golić 091 4800 641 alemka.golic@hpb.hr
Čakovec Otokara Keršovanija 1 Čakovec Mihaela Obrstar 091 6072 947 Mihaela.Obrstar@hpb.hr
Zabok Zivtov trg 11 Zabok Danijela Kunštić Maček 091/4801-310 danijela.kunsticmacek@hpb.hr
Križevci Trg svetog Florijana 15 Križevci Zoran Jurkić 091 480 0108 zoran.jurkic@hpb.hr
Koprivnica Florijanski trg 13 Koprivnica Đorđe Obranović 091 6072 979 Dorde.Obranovic@hpb.hr
REGIONALNI CENTAR SLAVONIJA
Osijek Ulica Hrvatske Republike 21 Osijek Senka Mažar 091 480 1400 senka.mazar@hpb.hr
Osijek 2 Prolaz J. Benešića 2 Osijek Stanko Kolarević 091/4801-601 stanko.kolarevic@hpb.hr
Ispoatava Beli Manastir Trg Slobode 38 Beli Manastir Stanko Kolarević 091/4801-602 stanko.kolarevic@hpb.hr
Vinkovci Trg dr. Franje Tuđmana 2 Vinkovci Miroslav Madžarac 091 6072 606 Miroslav.Madzarac@hpb.hr
Vukovar J. J. Strossmayera 16 Vukovar Željka Horvatin Horvat 091 4805 051 Zeljka.HorvatinHorvat@hpb.hr
Valpovo Trg Kralja Tomislava 17 Valpovo Maja Degiacinto 091 607 2006 Maja.Degicinto@hpb.hr
Ispostava Donji Miholjac Vukovarska 4 Donji Miholjac Maja Degiacinto 091 607 2006 Maja.Degicinto@hpb.hr
Virovitica Trg Kralja Zvonimira 3 Virovitica Tanja Fašajić 091 6072 931 Tanja.Fasajic@hpb.hr
Đakovo Bana Josipa Jelačića 8 Đakovo Gabrijela Prša 091 6072 614 Gabrijela.Prsa@hpb.hr
Ispostava Našice J. J. Strossmayera 2 Našice Gabrijela Prša 091 6072 614 Gabrijela.Prsa@hpb.hr
Požega Cehovska 8 Požega Matija Lovrić 091 2539 001 Matija.Lovric@hpb.hr
Slavonski Brod Kralja Petra Krešimira IV br. 3 Slavonski Brod Ivana Pinojtić 091 639 3418 Ivana.Pinojtic@hpb.hr
REGIONALNI CENTAR ISTRA I KVARNER
Pula Anticova 7 Pula Aleksandra Pliško 098 299 481 Aleksandra.Plisko@hpb.hr
Poreč Trg Slobode 14 Poreč Iva Grabrović 091 480 0125 Iva.grabrovic@hpb.hr
Rijeka 2 Uljarska 4a Rijeka Zdenka Tupanjac 091 4804 426 zdenka.tupanjac@hpb.hr
REGIONALNI CENTAR DALMACIJA – SJEVER
Zadar Put Murvice 12 D Zadar Tomislav Milin 091 4800 037 Tomislav.Milin@hpb.hr
Zadar 2 Ulica Andrije Hebranga 2 Zadar Branka Sorić 091 480 0035 Branka.Soric@hpb.hr
Zadar 3 112. brigade 1 Zadar Jure Milat 091 6393-438 jure.milat@hpb.hr
Gospić Trg Stjepana Radića 18 Gospić Ivana Pavelić Šaban 091 607 2891 ivana.pavelic@hpb.hr
Šibenik Ante Starčevića 4 Šibenik Nikolina Šarin 098 590 156 Nikolina.Sarin@hpb.hr
Vidici Stjepana Radića 137 Šibenik Branka Čović 098 238 222 Branka.Covic@hpb.hr
Vodice Herfordska ulica b.b. Vodice Helena Milošević 099 8068 637 Helena.Milosevic@hpb.hr
Dalmare Velimira Škorpika 23 Šibenik Martina Barišić 091 480 0029 Martina.Barisic@hpb.hr
Knin Ul. Gospe Vel. Hrv. Krsnog Zavjeta 9 Knin Ivan Stjepan Bajan 091 6072 602 Ivan-Stjepan.Bajan@hpb.hr
REGIONALNI CENTAR DALMACIJA – JUG
Split 1 Domovinskog rata 49 Split Kristina Prkačin 091 607 2013 Kristina.Prkacin@hpb.hr
Split 3 Ruđera Boškovića 18a Split Rose-Anne Omrčen 091 559 5524 Rose-Anne.Omrcen@hpb.hr
Split 4 Poljička cesta 12 Split Slađana Bakota 091 4801 149 mirela.prajo@hpb.hr
Trogir Kardinala Alojzija Stepinca 42 Trogir Martin Prcela 091 6072 689 Martin.Prcela@hpb.hr
Solin Kralja Zvonimira 87a Solin Darija Milas 091 6072 689 Darija.Milas@hpb.hr
Kaštel Stari Ivana Danila 12 Kaštel Stari Martin Prcela 091 6072 935 Martin.Prcela@hpb.hr
Sinj Trg Kralja Tomislava 1 Sinj Zoran Klepo 091 6072 662 Zoran.Klepo@hpb.hr
Trilj Bana Josipa Jelačića 8 Trilj Tomislav Marić 091 607 2837 tomislav.maric@hpb.hr
Imotski Šetalište Stjepana Radića 19 Imotski Ružica Lončar 091 4804 431 Ruzica.Loncar@hpb.hr
Makarska Trg 4. Svibnja 533 1 Makarska Sanja Beus 091 4801 349 Sanja.Beus@hpb.hr
Metković Splitska ulica 3/3 Metković Marina Odak 091/4801-407 marina.odak@hpb.hr
Dubrovnik Dr. Ante Starčevića 24 Dubrovnik Nagorka Šarić 091 4800 425 Nagorka.Saric@hpb.hr
Konavle Gruda 43 Gruda Ivana Antonijević 091 607 2967 Ivana.Antonijevic@hpb.hr
Ispostava Cavtat Trumbićev put 10 Cavtat Ivana Antonijević 091 607 2967 Ivana.Antonijevic@hpb.hr
Ploče Ulica Vladimira Nazora 53 Ploče Tiana Šunjić 091 4800 719 Tiana.Sunjic@hpb.hr