Pregled stanova:
Napomena:
- Rok useljenja: 30.09.2026.
- uz kupnju stana obvezna je i kupovina parkirnog mjesta
STAN B-41 | 2-soban | 53,21 m2 | PRODANO
Kvadratura:
| Hodnik | 4,00 m2 |
| Kuhinja | 7,30 m2 |
| Blagovaona + dnevni boravak | 16,42 m2 |
| Kupaonica | 5,10 m2 |
| Spavaća soba | 10,80 m2 |
| Loggia 12,79×0,75 | 9,59 m2 |
| 53,21 m2 |
Tlocrt:
STAN B-42 | 1-soban | 35,38 m2 | PRODANO
Kvadratura:
| Hodnik | 3,91 m2 |
| Kuhinja + blagovaona + dnevni boravak | 21,12 m2 |
| Kupaonica | 5,02 m2 |
| Loggia 7,11×0,75 | 5,33 m2 |
| 35,38 m2 |
Tlocrt:
STAN B-43 | 1-soban | 35,38 m2 | PRODANO
Kvadratura:
| Hodnik | 3,91 m2 |
| Kuhinja + blagovaona + dnevni boravak | 21,12 m2 |
| Kupaonica | 5,02 m2 |
| Loggia 7,11×0,75 | 5,33 m2 |
| 35,38 m2 |
Tlocrt:
STAN B-44 | 2-soban | 48,86 m2 | PRODANO
Kvadratura:
| Hodnik | 4,00 m2 |
| Kuhinja + blagovaona + dnevni boravak | 18,71 m2 |
| Kupaonica | 4,41 m2 |
| Spavaća soba | 12,15 m2 |
| Loggia 12,79×0,75 | 9,59 m2 |
| 48,86 m2 |
Tlocrt:
STAN B-45 | 2-soban | 59,42 m2 | PRODAN
Kvadratura:
| Hodnik | 7,40 m2 |
| Kuhinja | 5,26 m2 |
| Blagovaona + dnevni boravak | 20,59 m2 |
| Kupaonica | 4,48 m2 |
| Spavaća soba | 12,20 m2 |
| Loggia 12,65×0,75 | 9,49 m2 |
| 59,42 m2 |
Tlocrt:
STAN B-46 | 3-soban + PM | 70,42 m2 | PRODANO
Kvadratura:
| Hodnik | 9,33 m2 |
| Kuhinja | 7,79 m2 |
| Blagovaona + dnevni boravak | 17,34 m2 |
| Wc | 2,07 m2 |
| Kupaonica | 4,79 m2 |
| Spavaća soba 1 | 11,55 m2 |
| Spavaća soba 2 | 9,13 m2 |
| Natkriveni balkon 16,48×0,50 | 8,24 m2 |
| 70,42 m2 | |
| PM B25 | 12,50 m2 |
Tlocrt:
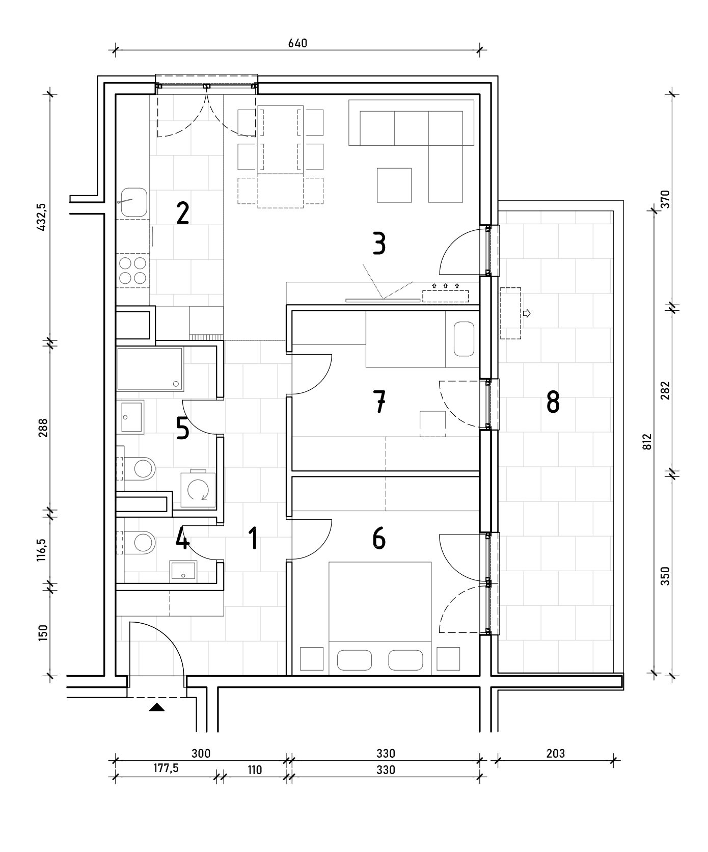
STAN B-47 | 4-soban + PM | 81,53 m2 | REZERVIRANO
Kvadratura:
| Hodnik | 9,33 m2 |
| Kuhinja | 7,79 m2 |
| Blagovaona + dnevni boravak | 17,34 m2 |
| Wc | 2,07 m2 |
| Kupaonica | 4,79 m2 |
| Spavaća soba 1 | 13,44 m2 |
| Spavaća soba 2 | 8,25 m2 |
| Spavaća soba 3 | 8,18 m2 |
| Natkriveni balkon 20,67×0,50 | 10,34 m2 |
| 81,53 m2 | |
| PM B32 | 12,50 m2 |
Tlocrt:
STAN B-48 | 2-soban | 54,92 m2 | PRODANO
Kvadratura:
| Hodnik | 7,72 m2 |
| Kuhinja | 6,39 m2 |
| Blagovaona + dnevni boravak | 14,35 m2 |
| Kupaonica | 5,77 m2 |
| Spavaća soba | 11,20 m2 |
| Loggia 12,65×0,75 | 9,49 m2 |
| 54,92 m2 |
Tlocrt:







