Pregled stanova:
Dokumentacija:
- Rok useljenja: 30.09.2026.
- uz kupnju stana obvezna je i kupovina parkirnog mjesta
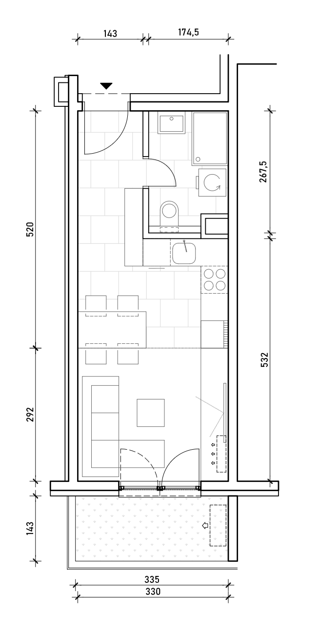
STAN A-1 | 1-soban | 33,53 m2 + Vrt | PRODANO
Kvadratura:
| Hodnik | 6,84 m2 |
| Kuhinja | 5,69 m2 |
| Blagovaona + dnevni boravak | 15,04 m2 |
| Kupaonica | 5,96 m2 |
| 33,53 m2 | |
| Vrt | 6,08 m2 |
Tlocrt:
STAN A-2 | 3-soban | 73,53 m2 |
Kvadratura:
| Hodnik | 9,22 m2 |
| Kuhinja | 6,64 m2 |
| Blagovaona + dnevni boravak | 20,39 m2 |
| Wc | 2,07 m2 |
| Kupaonica | 4,86 m2 |
| Spavaća soba 1 | 13,40 m2 |
| Spavaća soba 2 | 8,58 m2 |
| Loggi 4,78×0,75 | 3,59 m2 |
| 73,53 m2 |
Tlocrt:
STAN A-3 | 2-soban | 64,49 m2 |
Kvadratura:
| Hodnik | 9,22 m2 |
| Kuhinja | 6,64 m2 |
| Blagovaona + dnevni boravak | 21,85 m2 |
| Wc | 2,07 m2 |
| Kupaonica | 4,79 m2 |
| Spavaća soba | 11,55 m2 |
| Loggia 4,78×0,75 | 3,59 m2 |
| 64,49 m2 |
Tlocrt:
STAN A-4 | 2-soban | 50,02 m2 + Vrt | PRODANO
Kvadratura:
| Hodnik | 7,40 m2 |
| Kuhinja | 5,35 m2 |
| Blagovaona + dnevni boravak | 20,59 m2 |
| Kupaonica | 4,48 m2 |
| Spavaća soba | 12,20 m2 |
| 50,02 m2 | |
| Vrt | 11,49 m2 |
Tlocrt:
STAN A-5 | 2-soban | 39,37 m2 + Vrt | PRODANO
Kvadratura:
| Hodnik | 4,00 m2 |
| Kuhinja + blagovaona + dnevni boravak | 18,81 m2 |
| Kupaonica | 4,41 m2 |
| Spavaća soba | 12,25 m2 |
| 39,37 m2 | |
| Vrt | 11,71 m2 |
Tlocrt:
STAN A-6 | 1-soban | 25,98 m2 + Vrt | PRODANO
Kvadratura:
| Hodnik | 4,00 m2 |
| Kuhinja + blagovaona + dnevni boravak | 17,56 m2 |
| Kupaonica | 4,42 m2 |
| 25,98 m2 | |
| Vrt | 4,79 m2 |
Tlocrt:





